Parcela - MOTOVUN - 203.000 EUR
| Lokacija | MOTOVUN, Istrska |
| Cena € | 203.000 |
| Površina | 718 m2 |
| Oddaljenost od morja | 24000 m |
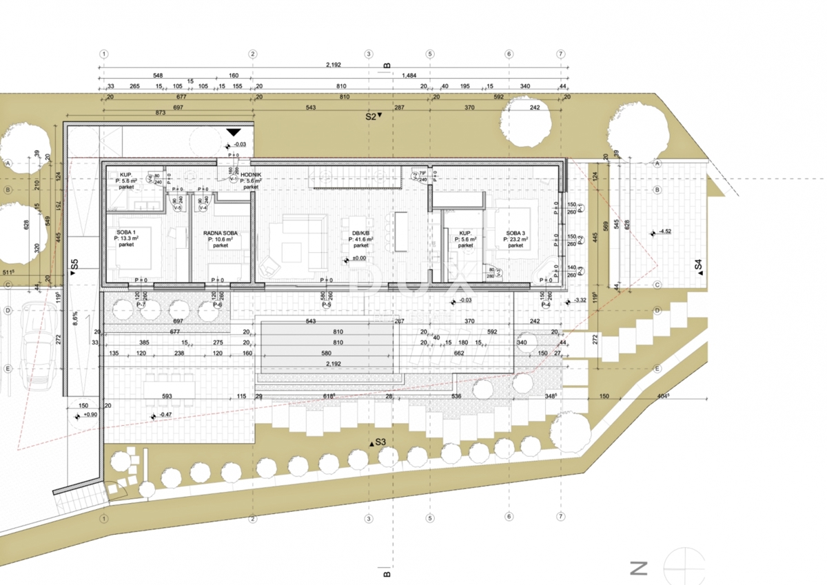
ISTRA, MOTOVUN - Zemljišče z gradbenim dovoljenjem in panoramskim razgledom Motovun je priljubljena turistična destinacija, ki je danes znana kot središče hedonistov z vsega sveta. Starodavno istrsko akropolsko mesto, ki se nahaja na vrhu 277 metrov visokega hriba, ki dominira nad dolino reke Mirne, je eno najlepših starih mest v Sredozemlju. Do njega vodi najdaljše istrsko stopnišče s 1052 stopnicami. Motovun je mesto-spomenik na Unescovem seznamu svetovne dediščine. Motovun in njegovo občino, ki se razprostira na 33,58 km², delata posebna zaradi biotske raznovrstnosti, bogate flore in posebnih mikroklimatskih značilnosti. Zaradi svojih specifičnih geomorfoloških značilnosti s številnimi hribi pritegne pozornost s svojo naravno lepoto in nepozabnimi panoramskimi razgledi, ki napolnijo dušo. Nedaleč od tega slikovitega istrskega srednjeveškega mesta se prodaja zemljišče z gradbenim dovoljenjem in panoramskim razgledom. Mikrolokacija ponuja pristno doživetje majhnega istrskega mesteca, intimnost, oddih od vsakega napornega napora in oddih od hrupa, hkrati pa je bližina dinamičnih istrskih mest z vrsto ugodnosti. Katastrska parcela je relativno pravilne pravokotne oblike, teren je rahlo nagnjen in delno čist, električna, vodna in komunikacijska infrastruktura pa se nahaja ob zemljišču. Zemljišče ima veljavno gradbeno dovoljenje za gradnjo stanovanjskega objekta, ki s svojo arhitekturo ne moti okolja, temveč ustvarja sinergijo naravnega okolja in sodobne arhitekture ter bazen. Zasnovana je kot udobna samostojna hiša z eno stanovanjsko enoto, ki se razteza čez dve nadstropji. Zaradi svoje mikrolokacije, konfiguracije, ustreznega lastništva in dokumentacije to zemljišče ponuja izjemno priložnost za gradnjo družinske hiše ali počitniške hiše. Prodajalec predmetne nepremičnine je pravna oseba in DDV je vključen v navedeno ceno. Spoštovani klienti, agencijska provizija se obračunava v skladu s Splošnimi pogoji poslovanja: http://www.dux-nekretnine.hr/opci-uvjeti-poslovanja
ID: 1268692