Parcela - MOMJAN - 450.000 EUR
| Lokacija | MOMJAN, BUJE, Istrska |
| Cena € | 450.000 |
| Površina | 2649 m2 |
| Oddaljenost od morja | 10000 m |
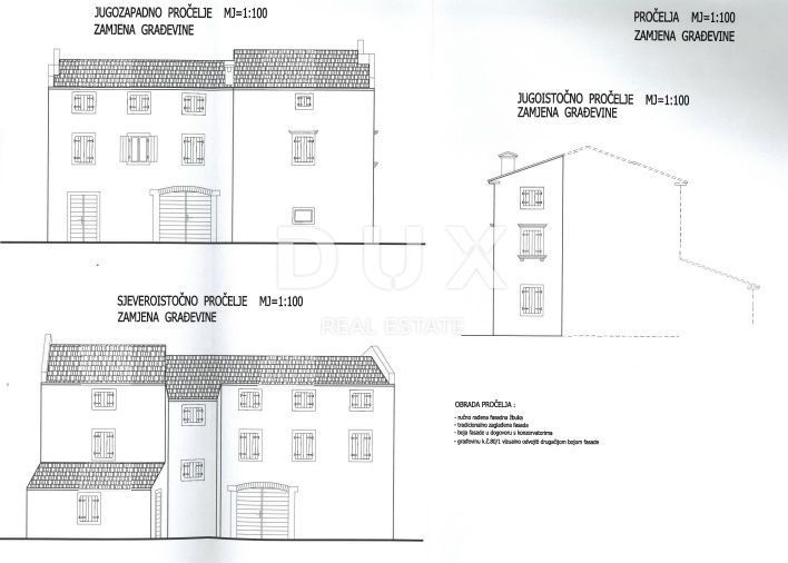
ISTRA, MOMJAN – Privlačno zemljišče z razgledom in kamnitimi stavbami Momjan je slikovito istrsko mestece z bogato zgodovino, naseljeno že od prazgodovine. Leži na hribih, obdanih z vinogradi, in je znano po odlični malvaziji in zelo cenjenem muškatu. Tu se harmonično prepletajo narava, tradicija in miren način življenja. Območje je bogato s sprehajalnimi potmi, vinskim cestami in lovišči, lokalna kulinarika in topla gostoljubnost pa ustvarjata idealno okolje za sprostitev in razvoj podeželskega turizma. Nepremičninska agencija Dux ponosno predstavlja izjemno privlačno zemljišče, ki je na trgu redko na voljo. Skupna površina 2649 m² gradbenega zemljišča ponuja izjemen potencial, posebno pa ga dela čudovit panoramski razgled na nežno istrsko naravo. Na zemljišču je več avtentičnih kamnitih ruševin, zabeleženih pred letom 1968, ki skupaj predstavljajo približno 800 m² bivalne površine. Za to nepremičnino je že pridobljeno gradbeno dovoljenje za gradnjo hotela s šestimi prostornimi spalnicami s kopalnicami, veliko restavracijo, profesionalno kuhinjo, pomožnimi skladiščnimi prostori in sanitarnimi objekti. Vse komunalne prispevke so plačane, kar bodočemu lastniku omogoča takojšen začetek adaptacije obstoječih objektov. V dodatnem samostoječem objektu je predvidena gradnja wellness centra s savnami in drugimi ugodnostmi za popolno počitniško vzdušje. Nadaljevanje zemljišča ponuja dovolj prostora za realizacijo različnih zunanjih ugodnosti ali gradnjo še dveh samostojnih vil z bazeni, iz katerih bi se ponujal prav tako očarljiv razgled na okoliške hribe in zelenje. Zemljišče že ima priključke za elektriko, mestni vodovod in kanalizacijo, dostop pa je možen z dveh strani. Ta nepremičnina predstavlja izjemno investicijsko priložnost in kombinacijo pristne istrske arhitekture, vrhunske lokacije in že pripravljene projektne dokumentacije, ki omogoča hitro uresničitev vaših idej. Spoštovane stranke, provizija agencije se zaračunava v skladu s Splošnimi pogoji poslovanja www.dux-nekretnine.hr/opci-uvjeti-poslovanja
ID: 1234246