Stanovanje - MEJAŠI - 240.660 EUR
| Lokacija | MEJAŠI, SPLIT, Splitsko-dalmatinska |
| Cena € | 240.660 |
| Površina | 53 m2 |
| Število sob | 3 |
| Število kopalnic | 2 |
| Oddaljenost od morja | 0 m |
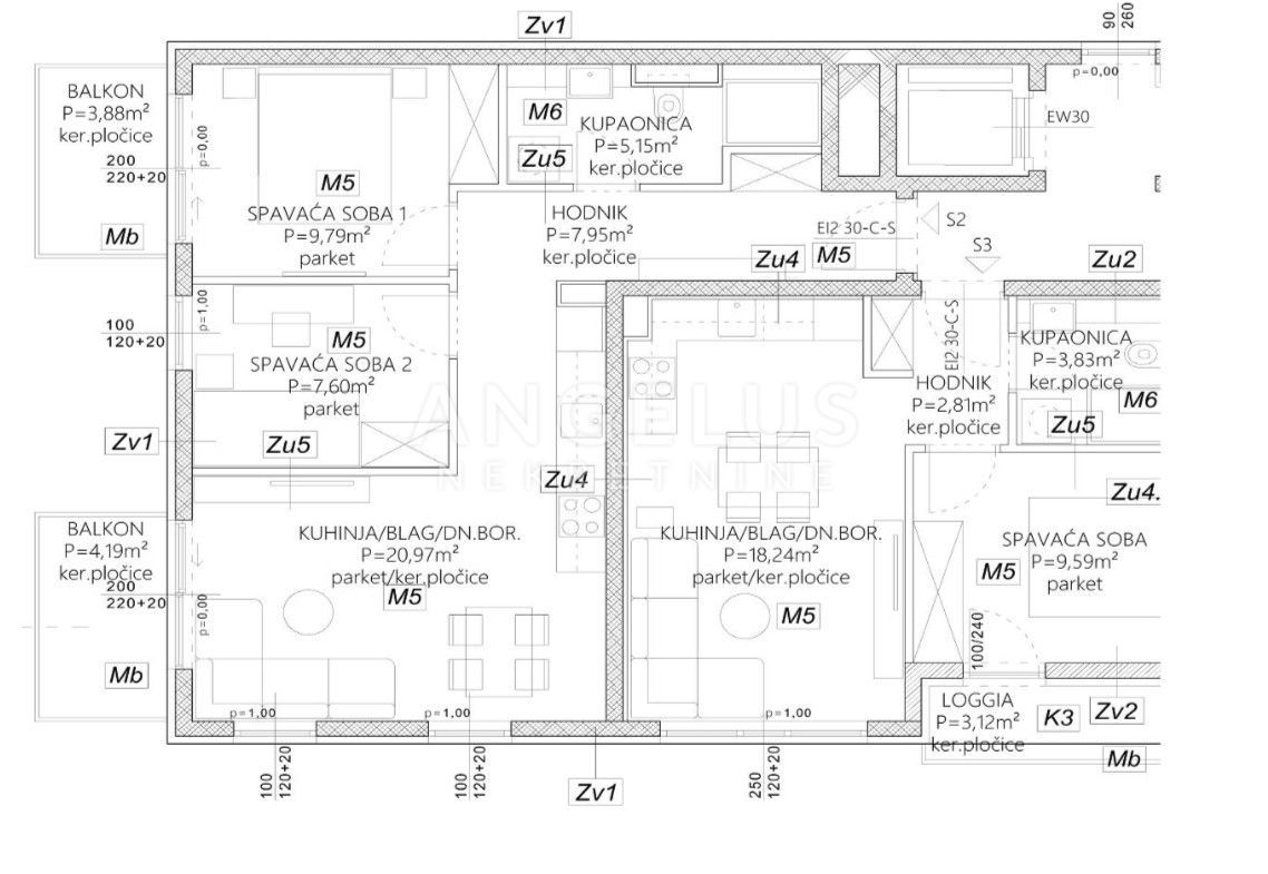
Nepremičninska agencija Angelus nepremičnine ponuja naprodaj dvosobno stanovanje velikosti 53,48 m2 v NOVOGRADNJI v Splitu - četrt Mejaši LOKACIJA Stanovanje se nahaja na zelo mirni lokaciji, v jugovzhodnem delu Splita in ima odlične povezave z drugimi deli mesta. Izjemno urbano območje mesta, ki ima vse, kar potrebujete za udobno življenje. V neposredni bližini so osnovna šola, vrtci, različne trgovine, otroški parki, lekarna, postaja javnega prevoza. Stavba je oddaljena od pomembnih komunalnih in prometnih točk: Javni prevoz - 50 m, Center mesta (Riva) - 4 km, Avtocesta Zagreb-Split - 20 km, Letališče Split - 25 km. OPIS: Naprodaj je dvosobno stanovanje v novogradnji s skupno neto površino 53,48 m2, ki se nahaja v drugem nadstropju manjše stanovanjsko-poslovne stavbe, orientirane v smeri Z-J. Stanovanje je sestavljeno iz predsobe, kuhinje in jedilnice z dnevno sobo, dveh spalnic, kopalnice, stranišča in dveh balkonov. Stavba ima čudovito arhitekturo in visoko energetsko učinkovitost, grajena je po sodobnih standardih iz zelo kakovostnih materialov, z vso potrebno opremo, ki vključuje: prvovrstno hidro in toplotno izolacijo, protivlomna in protipožarna vrata, kakovostno notranje stavbno pohištvo, elegantne ploščice in lesena tla ter vgrajeno klimatsko napravo. Stavba ima eno kletno garažo s parkirnimi mesti, pritličje in tri nadstropja. Stavba ima dvigalo in zaprto garažo s parkirnimi mesti, pritličje in tri nadstropja. Cena parkirnega mesta v kleti je 20.000 evrov. Investitor je pridobil gradbeno dovoljenje. Predvideni datum začetka gradnje je 11/2025. Plačilo se izvede v dveh fazah: 30 % celotne cene ob podpisu predhodne pogodbe, preostalih 70 % ob izdaji uporabnega dovoljenja in etažne lastnine. Pomembno je omeniti, da lahko kupec pri tem načinu plačila preostalih 70 % financira s kreditom. STANOVANJE S2 Hodnik 7,95 m2 Soba 1 9,79 m2 Soba 2 7,60 m2 Kopalnica 5,15 m2 Dnevna soba z jedilnico in kuhinjo 20,97 m2 Balkon (3,88 x 0,25) 4,19 m2 (1,05 m2) Balkon (6,73 x 0,25) 3,88 m2 (0,97 m2) SKUPAJ: 59,53 m2 (53,48 m2) KUPEC NE PLAČA 3 % DAVKA NA PRENOS NEPREMIČNIN! Nepremičnina ima velik potencial, pa naj bo to prostor za mirno in kakovostno življenje ali kot naložba za oddajanje. Za vsa vprašanja in informacije ali za dogovor o ogledu nepremičnine nas kontaktirajte še danes, na povezavi https://angelusnekretnine.hr/o-nama pa si lahko ogledate naše Splošne pogoje poslovanja. Za več informacij se obrnite na našega agenta na mobilno številko 091 429 0199. Vaš Angelus nepremičnine d.o.o.
ID: 1237918