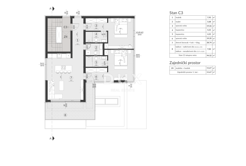
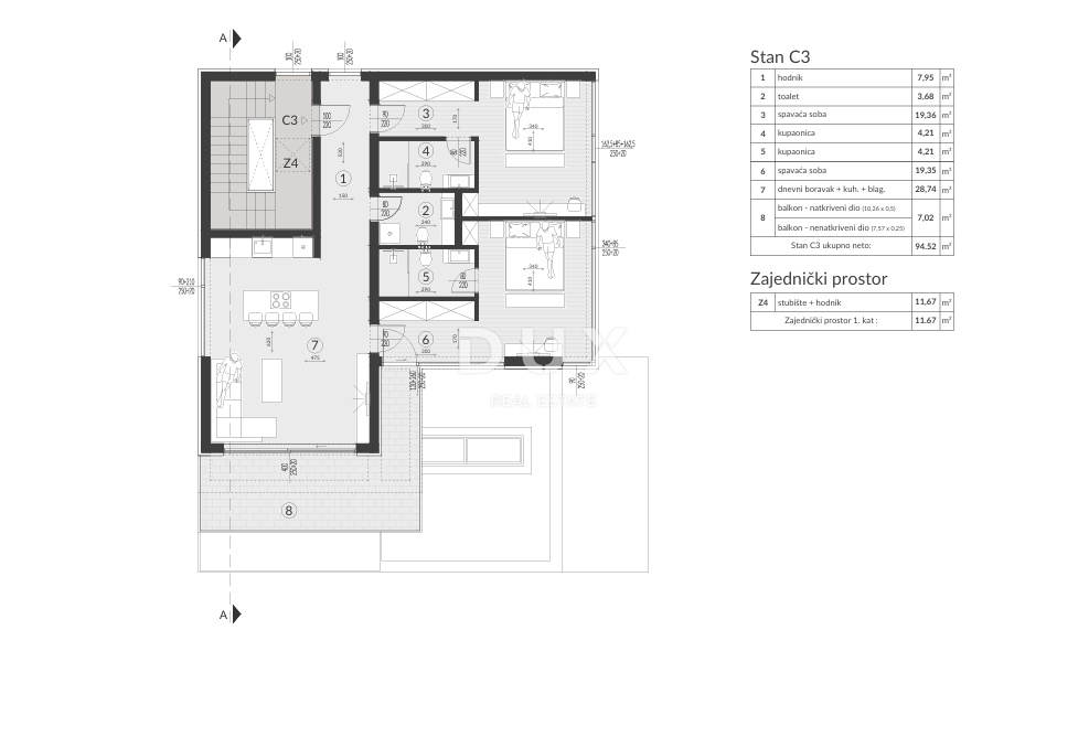
Stanovanje - MEDULIN - 520.000 EUR
| Lokacija | MEDULIN, Istrska |
| Cena € | 520.000 |
| Površina | 94 m2 |
| Število sob | 3 |
| Število kopalnic | 2 |
| Oddaljenost od morja | 1200 m |
ISTRA, MEDULIN - Luksuzni penthouse s pogledom na Medulinski zaliv Medulin - nekoč majhna ribiška vasica, ki je zaradi svoje privlačne lokacije postala ena najbolj znanih turističnih destinacij v Istri. Uživajte v raznolikosti skalnatih, prodnatih in peščenih plaž ter se prepustite čaru narave. Kraj je primeren za miren in romantičen oddih, nekaj zase pa bodo našli tudi ljubitelji športa. Nogomet, jahanje, tenis, jadranje, mini golf, letenje, kegljanje, odbojka na mivki ali potapljanje - Medulin ponuja pravo doživetje za vsakogar. Lega stavbe in samega apartmaja zagotavljata obilo dnevne svetlobe skozi steklene stene, ki obdajajo celotno stanovanje in ponujajo nepozaben razgled na Medulinski zaliv. Dobro zasnovan tloris in razporeditev ločujeta zasebni od družabnega dela apartmaja. Ob vhodu v stanovanje je hodnik, iz katerega pridemo v prostorno dnevno sobo odprtega tipa, povezano z moderno kuhinjo in jedilnico, iz vsakega kota sobe pa se odpira pogled na morje. Zasebni del apartmaja skriva dve spalnici z lastnimi kopalnicami in eno stranišče za goste. Dnevna soba ima tudi dostop do prostorne terase, obdane s stekleno ograjo, kjer lahko bodoči lastniki uživajo v edinstvenem panoramskem razgledu na morje in Medulinski zaliv. Na dvorišču stavbe sta dve zasebni parkirni mesti. Stanovanje bo opremljeno z vrhunskimi materiali priznanih mednarodnih proizvajalcev. V notranjosti bo uporabljen travertin, ki ima naraven, topel videz v zemeljskih tonih in daje sobam ter zunanjim prostorom mediteransko in rustikalno vzdušje. Sodoben dizajn stanovanj z visokimi okni Schüco in steklenim balkonom zagotavlja veliko svetlobe. Vgrajene so aluminijaste električne žaluzije. Klimatske naprave so vgrajene v spuščeni strop, tako da so vidne le diskretne prezračevalne odprtine. To zagotavlja estetsko čist koncept prostora. Zrak se porazdeli skozi več prezračevalnih odprtin, kar omogoča udobno hlajenje ali ogrevanje brez prepiha. Ker je glavna enota vgrajena v strop, deluje tišje kot stenske enote. Nakup nepremičnine v tej fazi omogoča bodočim lastnikom, da izberejo keramiko in jo prilagodijo svojim željam. Ta posebna nepremičnina v Medulinu je pravi biser in pameten nakup za udobno življenje in bivanje ter za donosnost naložbe prek turizma. Spoštovani klienti, provizija agencije se zaračunava v skladu s Splošnimi pogoji poslovanja. www.dux-nekretnine.hr/opci-uvjeti-poslovanja
ID: 1224820