Stanovanje - MARČELJI - 164.500 EUR
| Lokacija | MARČELJI, VIŠKOVO, Primorsko-goranska |
| Cena € | 164.500 |
| Površina | 57 m2 |
| Število sob | 3 |
| Število kopalnic | 2 |
| Bližina prevoza | DA |
| Oddaljenost od morja | 0 m |
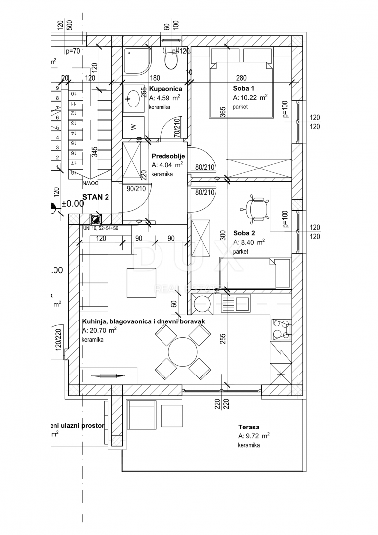
RIJEKA, VIŠKOVO - stanovanje 2. (57 m2) V NOVOGRADNJI 2S+DB, MESTNA STAVBA VIŠKOVO! PRILOŽNOST! Stavba v gradnji. Predviden zaključek del je pomlad 2026. Navedena cena vključuje eno parkirno mesto, na željo kupca pa je mogoče kupiti tudi drugo parkirno mesto. Stanovanje 2 - pritličje Vhodna dvorana: 4,04 m2 Kuhinja, jedilnica in dnevna soba: 20,70 m2 Terasa: 9,72 m2 · Soba_1: 10,22 m2 Soba_2: 8,40 m2 Kopalnica: 4,59 m2 Stanovanje 2 skupna neto površina: 57,67 m2 Stavba je izključno stanovanjske narave. Vsebovala bo 6 stanovanj s pripadajočimi shrambami v kleti in zunanjimi parkirnimi mesti. V kleti je 6 shramb za 6 stanovanj. V pritličju sta 2 stanovanji. V 1. nadstropju sta 2 stanovanji. V 2. nadstropju sta 2 stanovanji. ZUNANJI VIDEZ IN OKOLJSKI RAZVOJ: Stavba ima preproste in funkcionalne volumne. Fasade so zmerno horizontalno in vertikalno razčlenjene. Fasada bo zaključena s sodobnimi materiali, v nekaterih odtenkih bele in sive barve. Zunanje stavbno pohištvo bo iz PVC-ja, v črni barvi. Ograje balkonov bodo steklene. Tip strehe je ravna streha. Nepozidani del gradbene parcele bo urejen kot površina za vozila in pešce, površina za dostop do stavbe, površina za pešce in zelena površina. Površina za vozila in pešce ter površina za dostop do stavbe bosta tlakovana. Površina za pešce bo tlakovana z betonskimi elementi, zelene površine pa bodo travnate in hortikulturno urejene z zasaditvijo nizkih in visokih avtohtonih rastlin. KONSTRUKCIJA: Konstrukcija stavbe je iz opečnih blokov, razen kletnih sten, ki so iz armiranega betona. Zidovi iz opečnih blokov so obdani z vertikalnimi in horizontalnimi armiranobetonskimi cerklažami. Medetažne konstrukcije so polne armiranobetonskih plošč. Stopnišča in podesti so polne armiranobetonskih plošč. Stebri, nosilci in preklade so iz armiranega betona. Temelji in nadtemeljni zidovi so iz armiranega betona. Strešna konstrukcija je masivna armiranobetonska plošča. INSTALACIJE: Stavba bo imela inštalacije za oskrbo s sanitarno vodo in odvodnjavanje, inštalacije za odvodnjavanje meteorne vode, inštalacije za odvodnjavanje kondenzata iz termotehničnih inštalacij, električne inštalacije visokega in nizkega toka (telefon in domofon) ter strojne inštalacije za ogrevanje, hlajenje in prezračevanje. MIKROLOKACIJA: Občina Viškovo se nahaja severozahodno od Reke in predstavlja eno najbolj propulzivnih območij, ne le v Primorsko-goranski županiji, temveč tudi na državni ravni. Občina Viškovo je z državnimi cestami povezana prek glavnega križišča Škurinje in prek novo odprtega križišča Rujevica (obvoznica Reke), kar olajša tranzit in dostop do same občine. Skozi občino poteka skupno 5 županijskih in 4 lokalne ceste. Občina Viškovo se nahaja zelo blizu meje s Slovenijo (mejni prehod Rupa) in je zato lahko in hitro dostopna za Slovence in Italijane, delno pa se opira tudi na Opatijo kot močno turistično središče. Naselje Viškovo je upravno središče občine. Ob glavni cesti se nahajajo vse pomembne ustanove: občina, pošta, osnovna šola, vrtci, knjižnica, ustanove primarne zdravstvene oskrbe, lekarne, banke, cerkev, turistična skupnost, bencinske črpalke in številne trgovine z živili, pa tudi različne storitvene dejavnosti. NEPREMIČNINE NA ODLIČNI IN EDINSTVENI LOKACIJI Z VELIKIM POTENCIALOM! Vsekakor nepremičnina za družinsko življenje, primerna pa je tudi kot naložba v obliki turizma. Bodite korak pred drugimi in izkoristite to redko priložnost! Spoštovane stranke, provizija agencije se obračunava v skladu s Splošnimi pogoji poslovanja: www.dux-nekretnine.hr/opci-uvjeti-poslovanja
ID: 1248122