Stanovanje - MANDRE - 635.000 EUR
| Lokacija | MANDRE, PAG, Zadarska |
| Cena € | 635.000 |
| Površina | 155 m2 |
| Število sob | 7 |
| Število kopalnic | 3 |
| Blizu plaže | DA |
| Oddaljenost od morja | 0 m |
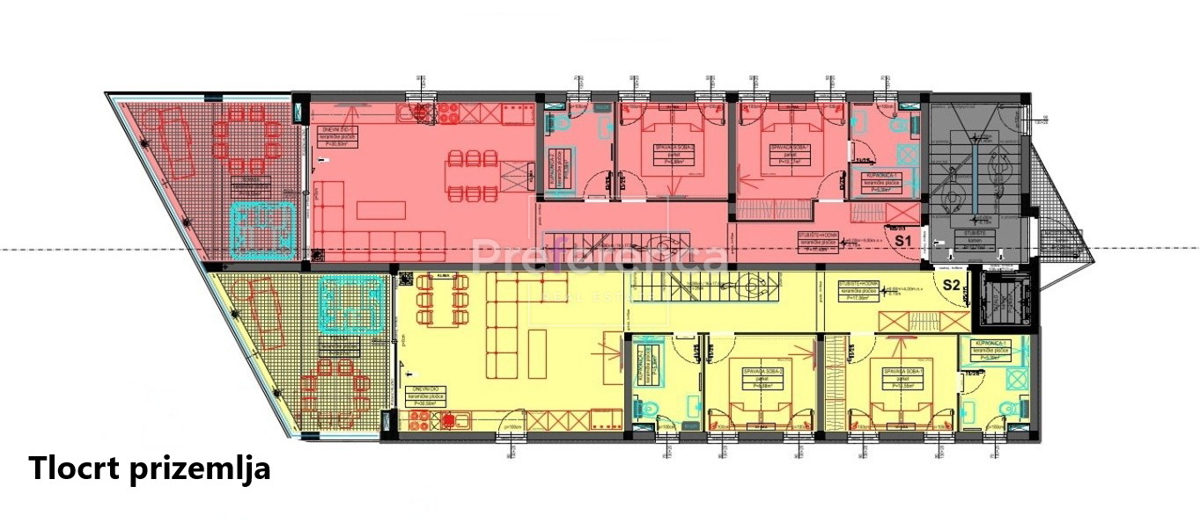
PRVI VRSTNI RED OB MORJU – EKSKLUZIVNA NOVOGRADNJA Z DVIGALOM – DVOSTANOVANJSKO STANOVANJE S1 V ponudbi je dvostanovanjsko stanovanje S1 v ekskluzivni novogradnji v prvem vrstnem redu ob morju v Mandrami, ki se nahaja v sodobni stavbi z dvigalom, zasnovani za visoko raven udobja in dolgoročno kakovost bivanja. Projekt izstopa s sodobno arhitekturo, vrhunsko izvedbo in izjemno lokacijo tik ob morju. Velika steklena stena z dvigno-drsnimi ALU okni zagotavlja obilico naravne svetlobe in prijetno bivanje skozi vse leto, talno gretje in klimatizacija pa prispevata k visokemu standardu bivanja. Načrtovani zaključek del: poletje 2026 RAZPOREDITEV – DVOSTANOVANJSKO STANOVANJE Stanovanje je razporejeno na dveh etažah, z jasno delitvijo prostorov, ki omogoča več zasebnosti in funkcionalnosti. SPODNJA ETAŽA (KLET) - vhodni prostor s stopniščem - shramba - kopalnica - dve spalnici Tišji del stanovanja, primeren za počitek ali bivanje gostov. ZGORNJA ETAŽA (PRIZEMLJE) - vhodni prostor s stopniščem - dve spalnici - dve kopalnici - prostorna dnevna soba s kuhinjo in jedilnico - izhod na teraso in vrt Glavni bivalni prostor z poudarkom na odprtosti in svetlobi. Stanovanje ima vhod na dveh etažah – iz kleti in pritličja, kar omogoča fleksibilno uporabo prostorov in lažje ločevanje con. Pripadajo mu dve parkirni mesti in zasebni vrt.
ID: 1276157