Stanovanje - MANDRE - 635.000 EUR
| Lokacija | MANDRE, PAG, Zadarska |
| Cena € | 635.000 |
| Površina | 155 m2 |
| Število sob | 7 |
| Število kopalnic | 3 |
| Blizu plaže | DA |
| Oddaljenost od morja | 0 m |
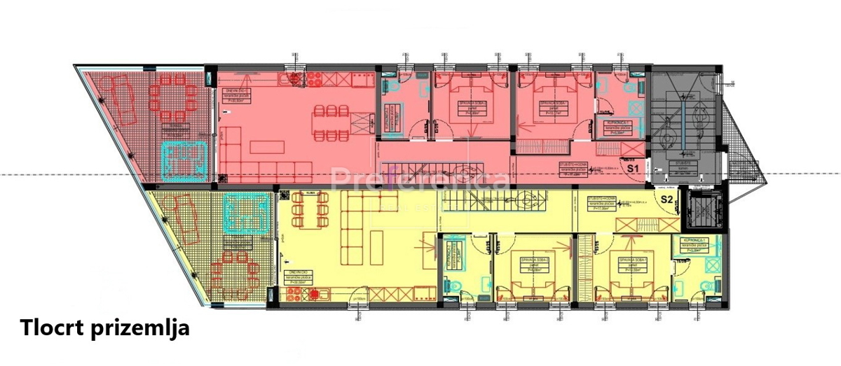
PRVI VRSTNI RED OB MORJU – EKSKLUZIVNA NOVOGRADNJA Z DVIGALOM – DVOSTANOVANJSKO STANOVANJE S2 V ponudbi je dvostanovanjsko stanovanje S2 skupne neto površine 77,77 m2, s pripadajočimi površinami skupne obračunske površine približno 154 m2, locirano v ekskluzivni novogradnji v prvem vrstnem redu ob morju v Mandrami. Objekt je sodoben, opremljen z dvigalom in zasnovan za visoko raven udobja ter dolgoročno kakovost bivanja. Projekt izstopa po sodobni arhitekturi, vrhunski izvedbi in izjemni lokaciji tik ob morju. Velika steklena stena z dvigno-drsnimi ALU okni zagotavlja obilico naravne svetlobe in prijetno bivanje skozi vse leto, talno gretje in klimatizacija pa prispevata k visokemu standardu bivanja. Predviden zaključek del: pred poletjem 2026 RAZPORED – DVOSTANOVANJSKO STANOVANJE Stanovanje je razporejeno na dveh etažah, z jasno ločitvijo prostorov, ki omogoča več zasebnosti in funkcionalnosti. SPODNJA ETAŽA (KLET) - vhodni prostor s stopniščem - shramba - kopalnica - spalnica - dnevna soba s kuhinjo in jedilnico Ta etaža lahko deluje kot samostojna enota, idealna za goste ali ločeno bivanje. ZGORNJA ETAŽA (PRIZEMLJE) - vhodni prostor s stopniščem - dve spalnici - dve kopalnici - prostorna dnevna soba s kuhinjo in jedilnico - izhod na pokrito teraso Iz dnevnega prostora je izhod na pokrito teraso površine 18,07 m2, ki je dvignjena glede na raven ulice, kar zagotavlja več zasebnosti in prijetnejše bivanje na prostem. Iz terase je dostop do zasebnega vrta skupne površine 74,17 m2, ki nudi dovolj prostora za bivanje, druženje ali ureditev po lastnih željah. Iz vrta je omogočen direkten dostop do parkirnih mest, kar vsakodnevno uporabo naredi zelo praktično. Stanovanje ima vhod z obeh etaž – iz kleti in pritličja, kar omogoča fleksibilno uporabo prostora in enostavno ločevanje con. Za več informacij in ogled nas prosim kontaktirajte.
ID: 1276155