Stanovanje - MANDRE - 393.040 EUR
| Lokacija | MANDRE, PAG, Zadarska |
| Cena € | 393.040 |
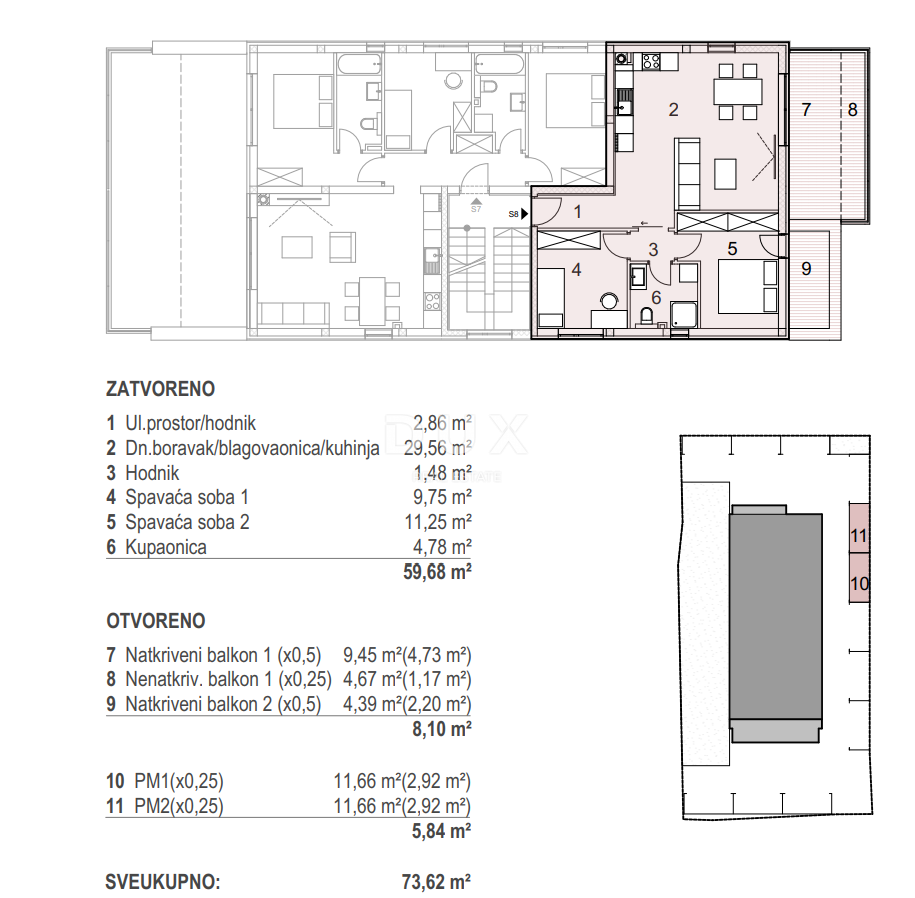
| Površina | 98 m2 |
| Število sob | 4 |
| Število kopalnic | 2 |
| Oddaljenost od morja | 80 m |
OTOK PAG, MANDRE - Moderna novogradnja s pogledom na morje 80 metrov od plaže! S7 Privlačno stanovanje S7 naprodaj v novogradnji, ki se nahaja v Mandrah, le 80 metrov od čudovite plaže. Stavba vsebuje skupno osem modernih stanovanj, zgrajenih s poudarkom na kakovosti, udobju in sodobnem načinu življenja. Stanovanje S7 se nahaja v drugem nadstropju in je sestavljeno iz treh spalnic, dveh kopalnic s talnim ogrevanjem, prostorne dnevne sobe s kuhinjo in jedilnico ter pokrite terase s pogledom na morje, idealne za sprostitev v toplih poletnih večerih. Stanovanju pripadata tudi dve parkirni mesti. Ta novogradnja predstavlja popolno kombinacijo modernega dizajna in mediteranskega šarma - idealna za počitnice, pa tudi kot naložba za najem v turistični sezoni. Mandre so slikovita ribiška vasica na otoku Pag, znana po čistem morju, urejenih plažah in mirnem vzdušju. Otok Pag navdušuje s svojo edinstveno naravo, bogato gastronomsko ponudbo, paškim sirom in vinom ter pristnim dalmatinskim duhom. Za več informacij in ogled te nepremičnine nas kontaktirajte – vaš novi dom ob morju vas čaka v Mandrah! Spoštovane stranke, provizija agencije se obračunava v skladu s Splošnimi pogoji poslovanja: www.dux-nekretnine.hr/opci-uvjeti-poslovanja
ID: 1228235