Stanovanje - MANDRE - 322.280 EUR
| Lokacija | MANDRE, PAG, Zadarska |
| Cena € | 322.280 |
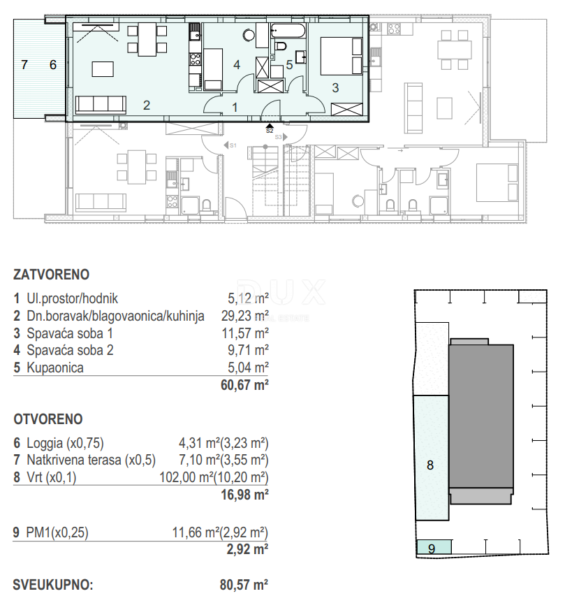
| Površina | 80 m2 |
| Število sob | 3 |
| Število kopalnic | 1 |
| Oddaljenost od morja | 80 m |
OTOK PAG, MANDRE - Moderna novogradnja v pritličju 80 metrov od plaže! S2 Privlačno stanovanje S2 naprodaj v novogradnji, ki se nahaja v Mandrah, le 80 metrov od čudovite plaže. Stavba vsebuje skupno osem modernih stanovanj, zgrajenih s poudarkom na kakovosti, udobju in sodobnem načinu življenja. Stanovanje S2 se nahaja v pritličju in je sestavljeno iz dveh spalnic, kopalnice s talnim ogrevanjem, prostorne dnevne sobe s kuhinjo in jedilnico ter pokrite terase, idealne za sprostitev v toplih poletnih večerih. Stanovanju pripada tudi vrt, ki zagotavlja dodaten prostor za zasebnost in uživanje na prostem, ter eno parkirno mesto. Vse sobe so opremljene s klimatsko napravo, stanovanja v prvem in drugem nadstropju pa ponujajo čudovit razgled na morje. Ta novogradnja predstavlja popolno kombinacijo modernega dizajna in mediteranskega šarma - idealna za počitnice, pa tudi kot naložba za najem med turistično sezono. Mandre so slikovita ribiška vasica na otoku Pag, znana po čistem morju, urejenih plažah in mirnem vzdušju. Otok Pag navdušuje s svojo edinstveno naravo, bogato gastronomsko ponudbo, paškim sirom in vinom ter pristnim dalmatinskim duhom. Za več informacij in ogled nepremičnine nas prosim kontaktirajte – vaš novi dom ob morju vas čaka v Mandrah! Spoštovani klienti, provizija agencije se obračunava v skladu s Splošnimi pogoji poslovanja: www.dux-nekretnine.hr/opci-uvjeti-poslovanja
ID: 1228241