Stanovanje - MANDRE - 288.156 EUR
| Lokacija | MANDRE, PAG, Zadarska |
| Cena € | 288.156 |
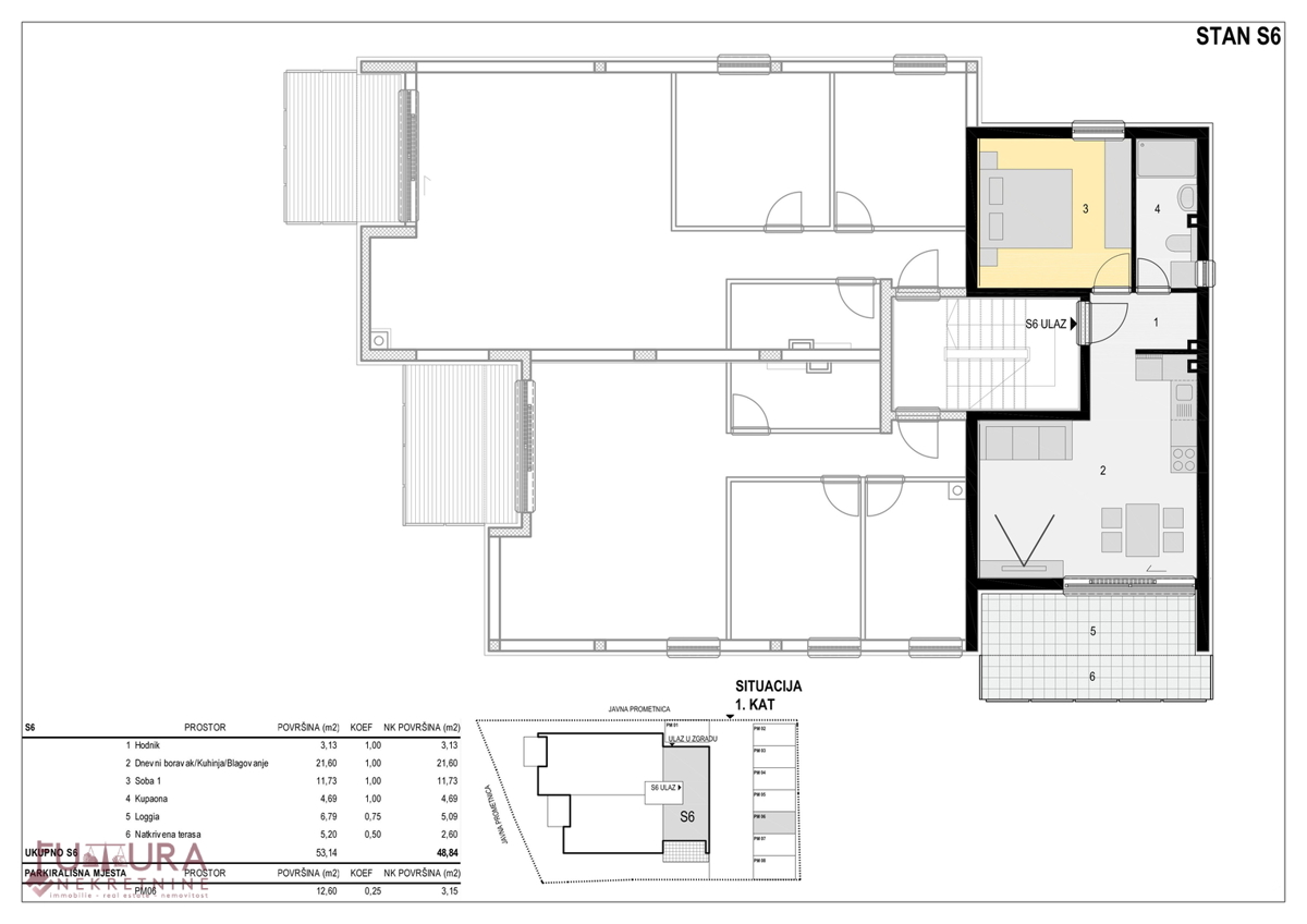
| Površina | 48 m2 |
| Število sob | 1 |
| Število kopalnic | 1 |
| Blizu plaže | DA |
| Oddaljenost od morja | 0 m |
Pag - Mandre, prodaja enosobnega apartmaja velikosti 48,84 m2 v prvem nadstropju stanovanjske stavbe s skupno osmimi apartmaji, zgrajene leta 2026, kakovostna gradnja, Schuco dvoslojna stekla v celotni stavbi, Marazzi keramika v celotni stavbi, Hansgrohe armature, Laufen sanitarna oprema itd.... Sestavljen je iz: ene spalnice, dnevne sobe + kuhinje + jedilnice, hodnika, kopalnice in terase. IZ APARTMAJA SE ODPRIRA ODPRT POGLED NA MORJE!!! Nahaja se na odlični lokaciji, 15 m od morja in plaže (prva vrsta), v bližini vseh potrebnih vsebin za prijeten oddih!!! Vključeno je parkirno mesto, ki je BREZPLAČNO. Dokumentacija je urejena. Načrtovan vselitveni rok je 04/2026.
ID: 1246840