Stanovanje - MANDRE - 180.120 EUR
| Lokacija | MANDRE, PAG, Zadarska |
| Cena € | 180.120 |
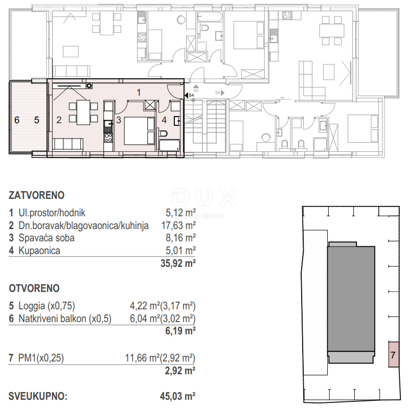
| Površina | 45 m2 |
| Število sob | 2 |
| Število kopalnic | 1 |
| Oddaljenost od morja | 80 m |
OTOK PAG, MANDRE - Moderna novogradnja s pogledom na morje 80 metrov od plaže! S4 Privlačno stanovanje S4 naprodaj v novogradnji, ki se nahaja v Mandrah, le 80 metrov od čudovite plaže. Stavba vsebuje skupno osem modernih stanovanj, zgrajenih s poudarkom na kakovosti, udobju in sodobnem načinu življenja. Stanovanje S4 se nahaja v prvem nadstropju in je sestavljeno iz spalnice, kopalnice s talnim ogrevanjem, dnevne sobe s kuhinjo in jedilnico ter pokrite terase, idealne za sprostitev v toplih poletnih večerih. Stanovanju pripada tudi parkirno mesto. Vse sobe so opremljene s klimatsko napravo, stanovanja v prvem in drugem nadstropju pa ponujajo čudovit pogled na morje. Ta novogradnja predstavlja popolno kombinacijo modernega dizajna in mediteranskega šarma - idealna za počitnice, pa tudi kot naložba za najem v turistični sezoni. Mandre so slikovita ribiška vasica na otoku Pag, znana po čistem morju, urejenih plažah in mirnem vzdušju. Otok Pag navdušuje s svojo edinstveno naravo, bogato gastronomsko ponudbo, paškim sirom in vinom ter pristnim dalmatinskim duhom. Za več informacij in ogled nepremičnine nas prosim kontaktirajte – vaš novi dom ob morju vas čaka v Mandrah! Spoštovani klienti, provizija agencije se obračunava v skladu s Splošnimi pogoji poslovanja: www.dux-nekretnine.hr/opci-uvjeti-poslovanja
ID: 1228239