Stanovanje - MANDRE Vprašaj za ceno
| Lokacija | MANDRE, PAG, Zadarska |
| Cena € | Cena na upit |
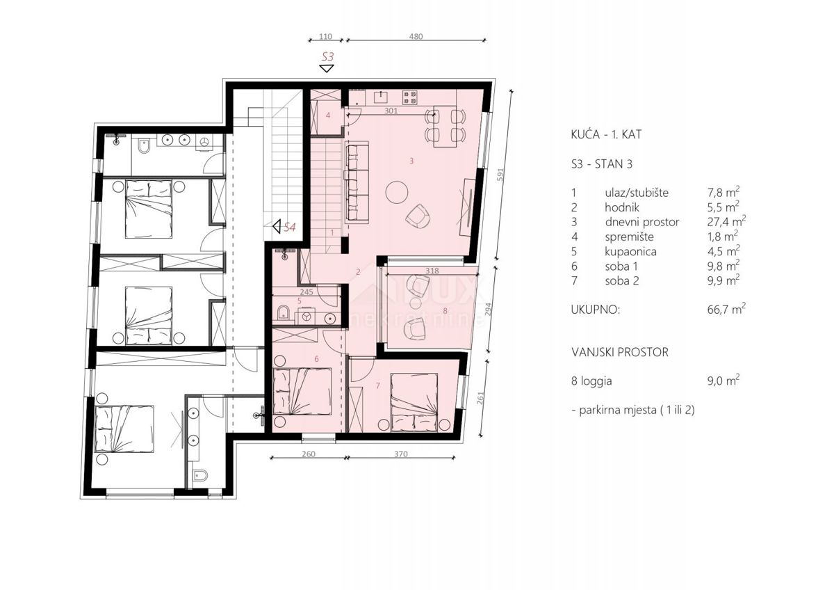
| Površina | 66 m2 |
| Število sob | 3 |
| Število kopalnic | 1 |
| Oddaljenost od morja | 300 m |
OTOK PAG, MANDRE, odlično 2 sobno stanovanje v moderni in kvalitetni novogradnji. Prodamo čudovito 2 sobno stanovanje S-3 v prvem nadstropju moderne in kvalitetne stanovanjske stavbe s samo štirimi stanovanji. Sestavljen je iz odprtega dnevnega prostora s kuhinjo in jedilnico, dveh spalnic, kopalnice in shrambe. Ta sodoben projekt je v postopku izdaje gradbenega dovoljenja za začetek gradnje. V tej zgodnji fazi čakanja na gradbeno dovoljenje še vedno obstaja možnost preureditve notranjih prostorov po željah kupca v dogovoru s prodajalcem. Pri sami gradnji bodo uporabljeni le najboljši materiali in oprema, ki so trenutno na trgu. Zagotovljeno je talno ogrevanje in klimatska naprava v vseh prostorih. Stanovanju pripadata dve lastniški parkirni mesti. Odlično razmerje med ceno in kvaliteto naredi to nepremičnino posebno. Cenjene stranke, agencijska provizija se obračunava v skladu s Splošnimi pogoji poslovanja www.dux-nekretnine.hr/opci-uvjeti-poslovanja
ID: 1051084