Stanovanje - MALINSKA - 380.000 EUR
| Lokacija | MALINSKA, KRK, Primorsko-goranska |
| Cena € | 380.000 |
| Površina | 46 m2 |
| Število sob | 2 |
| Površina parcele | 111 m2 |
| Število kopalnic | 2 |
| Bližina prevoza | DA |
| Oddaljenost od morja | 250 m |
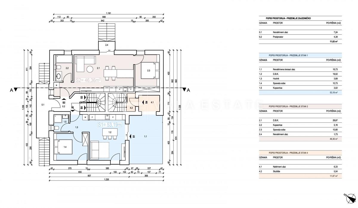
Nepremičnine otok Krk, Malinska - prodaja se novi apartma v visokem pritličju moderne stanovanjske stavbe s površino 46 m2. Sestavljen je iz vhodnega prostora, kopalnice, spalnice in odprtega dnevnega prostora, ki združuje dnevno sobo, kuhinjo in jedilnico, z neposrednim dostopom do prostorne terase in zasebnega vrta velikosti 111 m2 z bazenom in prostorom za sončenje. Apartma je klimatiziran s kakovostno invertersko klimatsko napravo, vgrajena so nova PVC troslojno zunanje mizarstvo, kakovostni talni oblogi in sanitarna oprema, ima talno ogrevanje v vseh sobah in varnostna vhodna vrata. Pripada mu eno parkirno mesto na skupnem dvorišču hiše z možnostjo namestitve polnilne postaje za električna vozila. Od morja in urejenih plaž je oddaljeno le 250 m, kar omogoča hiter in enostaven dostop do vseh ugodnosti, potrebnih za bivanje in počitnice. Središče Malinske je dosegljivo v le nekaj minutah vožnje z avtomobilom ali s prijetnim sprehodom ob morju. Zaradi svoje lokacije je nepremičnina primerna za lastno uporabo ali za turistični najem, vsa dokumentacija je urejena. Predviden zaključek del in vselitev je do konca leta 2026. Stavba je v popolni rekonstrukciji, ki vključuje nove električne, vodovodne in strojne inštalacije, novo zunanje mizarstvo (troslojni PVC), varnostna vhodna vrata, novo notranje mizarstvo večjih dimenzij, vrhunske talne obloge in keramiko, novo hidro in toplotno izolacijo ter fasado, obnovo strehe in konstrukcijsko ojačitev ter ureditev okolice. Projekt združuje avtentične elemente tradicionalne obalne arhitekture z dodelanim sodobnim dizajnom in kakovostnimi materiali, kar ustvarja prostor trajne vrednosti, funkcionalnosti in udobnega bivanja skozi vse leto. Vsi apartmaji imajo delni ali odprt pogled na morje in se prodajajo v etažnih stanovanjih na ključ, z visokim standardom zaključne obdelave. Zunanji prostori so zasnovani s poudarkom na funkcionalnosti in estetiki – terase, hortikultura in kamniti detajli še dodatno poudarjajo značaj stavbe. Agencija Vala Estate Malinska vam bo omogočila varen in transparenten prenos lastništva ter vso potrebno dokumentacijo.
ID: 1280983