Hiša - MALINSKA - 910.000 EUR
| Lokacija | MALINSKA, KRK, Primorsko-goranska |
| Cena € | 910.000 |
| Površina | 237 m2 |
| Število sob | 6 |
| Površina parcele | 880 m2 |
| Število kopalnic | 4 |
| Oddaljenost od morja | 3500 m |
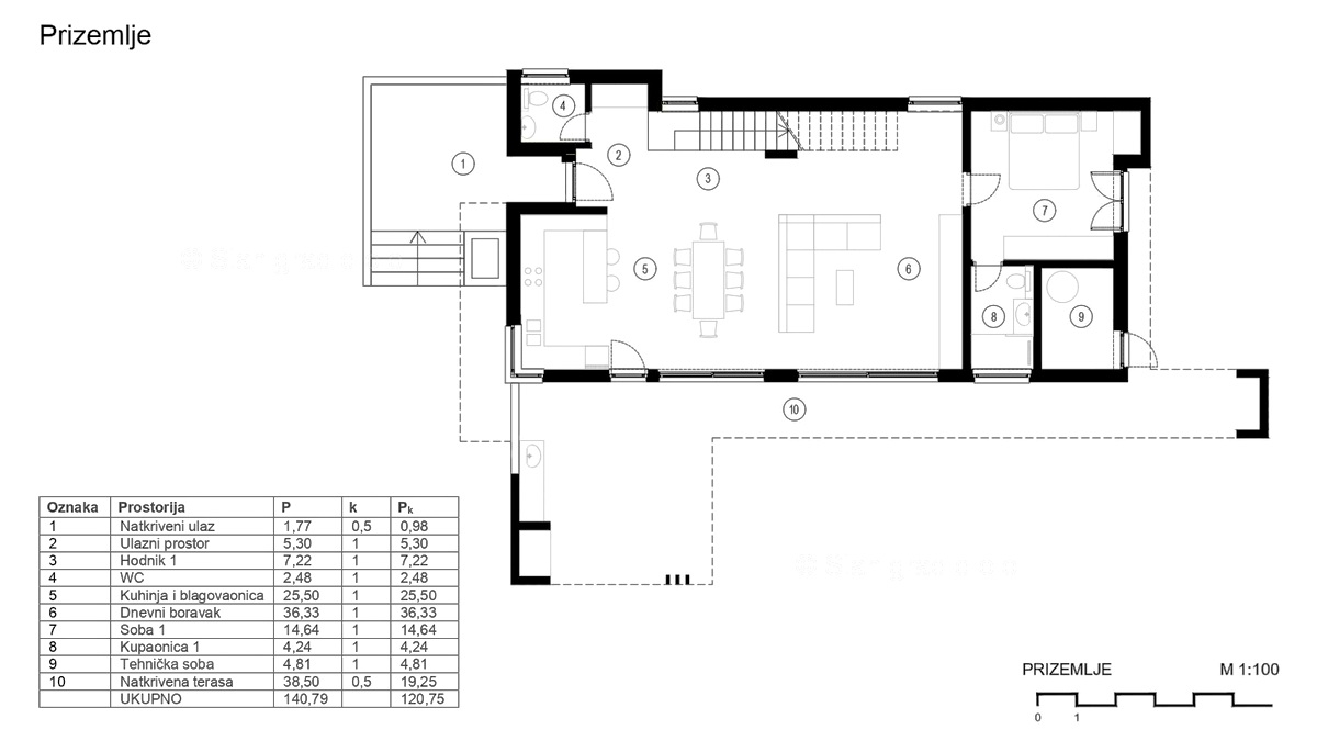
Iz široke ponudbe nepremičnin na severnem Jadranu pri agenciji Stan Grad Immobilien izstopa impresivna moderna vila v gradnji, ki se nahaja v priljubljeni turistični regiji na otoku Krk. Nepremičnina je postavljena na mirni lokaciji v okolici mesta Malinska, nedaleč od morja. Strukturno gre za samostojno, dvonadstropno hišo z obsežnim dvoriščem in bazenom. Hiša zajema skupno uporabno površino 215,19 m². V pritličju se nahajajo vhodni prostor, hodnik, WC, kopalnica, soba z izhodom na neprekrivno teraso, tehnična soba, kuhinja z jedilnico ter prostorna dnevna soba z izhodom na pokrito teraso, ki vključuje zunanjo kuhinjo in prostor za žar. V nadstropju vile so tri prostorne spalnice, od katerih ima ena svojo lastno kopalnico z walk-in tušem. Vse tri spalnice imajo izhod na zunanjo teraso, preostali dve spalnici pa delita skupno kopalnico. K nepremičnini spada tudi dobro organizirano dvorišče z gospodarskim poslopjem skupne površine 22,5 m². V tem objektu je 15 m² rezerviranih za SPA vsebine v pritličju, ki vključujejo savno, jacuzzi in wellness prostor za sprostitev, preostalih 7,5 m² pa je namenjenih skladišču v kleti objekta. Preostali del popolnoma urejenega dvorišča z okoli 504 m² dopolnjuje velik ogrevan bazen velikosti 46 m² s sončno teraso ter lounge prostorom za sprostitev s pečjo v sredini. Na dvorišču je urejeno dovolj prostora za parkiranje najmanj dveh vozil. Nepremičnina se odlikuje z visoko kakovostno gradnjo in vrhunsko opremo. Vila bo opremljena z visokokakovostnimi okni, talnimi oblogami iz kakovostne keramike in kamna, vrhunskimi sanitarijami, stropno klimatsko napravo in talnim ogrevanjem s toplotno črpalko. Zunanjost bo lepo urejena z mediteranskimi rastlinami in zelenimi površinami. Ta nepremičnina je v lasti fizične osebe, pri prenosu lastništva pa mora kupec plačati 3 % davka na promet nepremičnin. Lastnik hiše jamči popolno lastniško in tehnično dokumentacijo ter možnost hitrega prenosa lastništva na kupca. Vabimo vas, da nas obiščete v našem pisarniškem prostoru na otoku Krk. Če nam zaupate, vam bo agencija Stan Grad Immobilien z veseljem pomagala pri prenosu lastniških pravic na to nepremičnino ter prenosu računov za komunalne storitve in priključke na vaše ime.
ID: 929408