Hiša - MALINSKA - 490.000 EUR
| Lokacija | MALINSKA, KRK, Primorsko-goranska |
| Cena € | 490.000 |
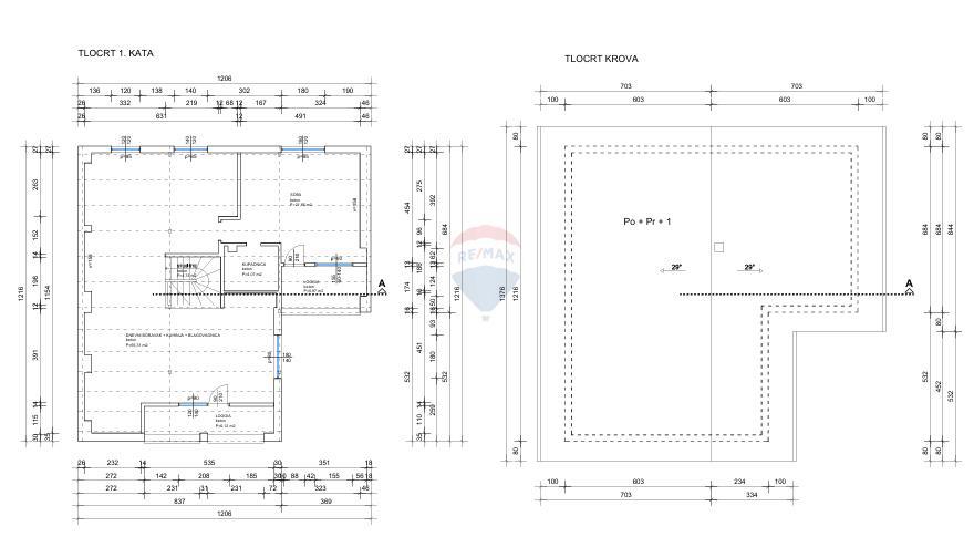
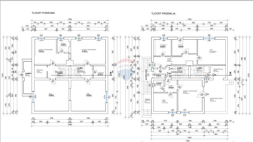
| Površina | 398 m2 |
| Število sob | 10 |
| Površina parcele | 550 m2 |
| Število kopalnic | 5 |
| Oddaljenost od morja | 0 m |
V mirni in privlačni lokaciji v Malinski na otoku Krku se nahaja prostorna samostojna hiša, le 400 metrov od plaže. Hiša se razprostira na treh nadstropjih – klet, pritličje in prvo nadstropje – s skupno površino 398 m² na parceli velikosti 550 m². Hiša ima pet apartmajev, od katerih sta dva trenutno nedokončana, kar ponuja edinstveno priložnost za dokončanje in prilagoditev po lastnih željah ali investicijskih načrtih. Lokacija v mirni ulici, blizu morja, naredi to nepremičnino idealno za turistični najem, luksuzno družinsko bivanje ali investicijo z visokim potencialom donosa. Dva nedokončana apartmaja omogočata bodočim lastnikom, da ju dokončajo po lastnem okusu, s čimer se še dodatno poveča vrednost in privlačnost hiše. To je redka priložnost za nakup nepremičnine, ki združuje mir, zasebnost in bližino plaže z investicijskim potencialom na eni izmed najbolj zaželenih turističnih destinacij na otoku Krku.
ID: 1217296