Hiša - MALINSKA - 487.000 EUR
| Lokacija | MALINSKA, KRK, Primorsko-goranska |
| Cena € | 487.000 |
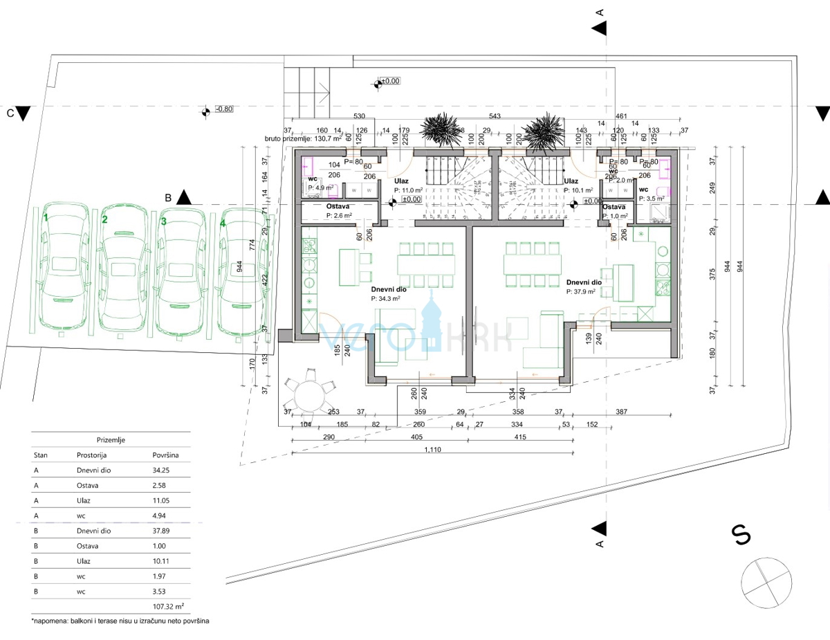
| Površina | 122 m2 |
| Število sob | 4 |
| Površina parcele | 110 m2 |
| Število kopalnic | 3 |
| Bližina prevoza | DA |
| Oddaljenost od morja | 0 m |
Malinska, otok Krk, center, v ponudbi je atraktivna dvojna hiša sodobne zasnove. Lokacija 600 m od morja in plaže je posebna prednost, saj je stanovanjska cona mirna in lahko dostopna iz centra. Hiša je razporejena na pritličje in nadstropje s skupno površino 122,81 m2. V pritličju je odprt dnevni prostor s kuhinjo, jedilnico, shrambno sobo in kopalnico. Pred tem prostorom je pokrita terasa. V prvem nadstropju so trije spalni prostori, od katerih ima eden lastno kopalnico, preostala dva pa si delita drugo kopalnico. Izhod iz glavne spalnice je na pokrito teraso velikosti 5 m2 z razgledom na morje. Na urejenem zemljišču velikosti 110 m2 je možnost izgradnje bazena velikosti 30 m2 s sončno teraso in tehničnim prostorom. Gradnja bo potekala v letih 2025/2026, predvideni so kakovostni materiali in oprema (multi-split klimatska naprava, talno gretje v kopalnicah, hodniku in pritličju, parketi v spalnicah, italijanska keramika, PVC stavbno pohištvo, električni dvig rolet, protivlomna vrata, mreže proti komarjem, 10 cm izolacije ter priprava za strešne sončne panele, alarm in video nadzor). Na urejenem zemljišču sta parkirno mesto in manevrski prostor za dva avtomobila (25 m2). Na enem parkirnem mestu bo priprava za polnilno postajo za električno vozilo. Odlična priložnost za naložbo v popolnoma nov dom ob morju. Dobrodošli na ogled.
ID: 1243107