Stanovanje - MAKARSKA - 302.000 EUR
| Lokacija | MAKARSKA, Splitsko-dalmatinska |
| Cena € | 302.000 |
| Površina | 81 m2 |
| Število sob | 3 |
| Število kopalnic | 2 |
| Oddaljenost od morja | 800 m |
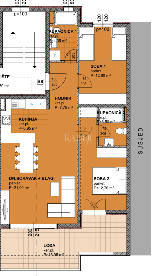
Kaiser Immobilien predstavlja: Moderno dvosobno stanovanje z veliko ložo v središču Makarske Na zelo iskani lokaciji v središču Makarske se nahaja to čudovito, udobno dvosobno stanovanje. Z veliko ložo, odlično razporeditvijo in bližino vseh mestnih ugodnosti in plaž ta nepremičnina predstavlja popolno priložnost za razkošno mestno življenje ob morju ali kot vrhunsko naložbo za turistični najem. O NEPREMIČNINI: To moderno stanovanje ponuja popolno mešanico funkcionalnosti in udobja, z jasno ločenim dnevnim in spalnim prostorom za maksimalno zasebnost in udobje. Oznaka: Stanovanjska enota S8 Skupna neto uporabna površina: 81,56 m² RAZPOREDITEV STANOVANJA: Dnevna soba in jedilnica: Prostoren "odprt prostor" velikosti 21,00 m², idealen za druženje in sprostitev. Kuhinja: Funkcionalna kuhinja velikosti 6,95 m², povezana z dnevnim prostorom. Spalnica 1: Udobna spalnica velikosti 12,60 m². Spalnica 2: Druga prostorna spalnica velikosti 12,70 m². Kopalnica 1: Glavna kopalnica velikosti 4,35 m². Kopalnica 2: Dodatna kopalnica velikosti 3,50 m², kar je izjemno udobje in zagotavlja dodatno udobje. Hodnik: Vhodna dvorana velikosti 7,75 m². Loža: Impresivna pokrita loža velikosti 16,95 m² (preračunano 12,71 m²), ki služi kot zunanja dnevna soba. POSEBNE PREDNOSTI: Velika loža (16,95 m²): Prostorna loža je idealen kraj za uživanje na prostem, jutranjo kavo ali večerna druženja, saj dnevno sobo razširja na zunanji prostor. Dve spalnici in dve kopalnici: Ta razporeditev, ki je redkost v stanovanjih te velikosti, ponuja izjemno udobje in praktičnost, idealna za družino ali za sprejemanje gostov. Odprt koncept: Sodobna zasnova združuje kuhinjo, jedilnico in dnevno sobo v en sam tekoč in prijeten prostor. Zunanje parkirno mesto 5000 evrov Shramba 3000 evrov Garaža 1500 evrov na m² LOKACIJA: Stanovanje se nahaja na eni najboljših lokacij v Makarski. Bližina mestnega središča, obale, restavracij, trgovin in čudovitih plaž Makarske pomeni, da so vsi objekti na dosegu roke, brez potrebe po avtomobilu. To stanovanje je odlična priložnost za tiste, ki iščejo kakovostno, moderno nepremičnino na odlični lokaciji, bodisi za celoletno bivanje bodisi kot zelo donosno naložbo v turističnem središču Dalmacije. Agencijska provizija za kupca znaša 3 % + DDV in se plača v primeru nakupa nepremičnine, ob sklenitvi prvega pravnega dokumenta. Ogled nepremičnine je možen le ob predhodnem podpisu pogodbe o posredovanju pri prometu z nepremičninami. Če si želite nepremičnino ogledati osebno, se obrnite na: Joška Bašića E-pošta: josko@kaiser-immobilien.hr Tel.: +385-91-511-2993 http://kaiser-immobilien.hr/
ID: 1237026