Parcela - LIGANJ - 145.000 EUR
| Lokacija | LIGANJ, LOVRAN, Primorsko-goranska |
| Cena € | 145.000 |
| Površina | 1371 m2 |
| Oddaljenost od morja | 5000 m |
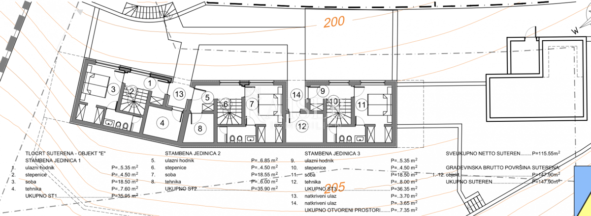
Kaiser Immobilien predstavlja atraktivno zemljišče v velikosti 1.371 m², ki se nahaja na pobočjih Učke, nad Lovranom, z izjemnim panoramskim razgledom na Kvarnerski zaliv, Reko in Lovran. Za zemljišče je bilo izdano pravnomočno gradbeno dovoljenje, visokokakovosten arhitekturni projekt pa predvideva tri stanovanjske stavbe v vrsti – dve po 140 m² in eno po 125 m². Zaradi konfiguracije terena so stavbe zasnovane vertikalno, bivalni prostori pa so razporejeni na več nivojih, z privlačnimi zunanjimi površinami, ki se harmonično zlivajo z naravnim okoljem. Teren je strm, projekt pa je arhitekturno prilagojen topografiji, da se zagotovi funkcionalnost prostora in neoviran, spektakularen razgled. Posebnost nepremičnine je očarljiv panoramski razgled, ki dobesedno jema dih – celoten Kvarner kot na dlani. Dostop je enostaven, cesta vodi neposredno do terena, vsi priključki in potrebna infrastruktura pa so na voljo v neposredni bližini. To zemljišče predstavlja edinstveno priložnost za realizacijo luksuznega večstanovanjskega projekta na eni najbolj privlačnih lokacij v Lovranu. Za več informacij in ogled: mob. +385 91 540 4646 Kaiser Immobilien – vaš partner za vrhunske nepremičnine na Hrvaškem.
ID: 1272209