Vse nepremičnine
Hiše
Stanovanja
Parcele
Poslovni prostori
Regija
...
Zagrebška
Krapinsko-zagorska
Sisačko-moslavačka
Karlovška
Varaždinska
Koprivniško-križevska
Bjelovarsko-bilogorska
Primorsko-goranska
Ličko-senjska
Virovitiško-podravska
Požeško-slavonska
Brodsko-posavska
Zadarska
Osiješko-baranjska
Šibeniško-kninska
Vukovarsko-sremska
Splitsko-dalmatinska
Istrska
Dubrovniško-neretvanska
Međimurska
Mesto Zagreb
Mesto
...
NOVIGRAD
POREČ
VIŠNJAN
UMAG
VIŽINADA
BALE
ŽMINJ
MEDULIN
KANFANAR
BARBAN
ROVINJ
BUJE
BUZET
LABIN
GRAČIŠĆE
MARČANA
PAZIN
SVETVINČENAT
GROŽNJAN
KRŠAN
LUPOGLAV
CEROVLJE
TINJAN
LANIŠĆE
RAŠA
MOTOVUN
BRTONIGLA
SVETA NEDELJA
KAŠTELIR - LABINCI
OPRTALJ
SVETI LOVREČ
PULA
FAŽANA
FUNTANA
VODNJAN
LIŽNJAN
PIĆAN
KAROJBA
SVETI PETAR U ŠUMI
TAR-VABRIGA
VRSAR
Mesto
...
BARTIĆI
BREG
DUGA LUKA
GONDOLIĆI
KAPELICA
KRANJCI
LABIN
MARCELJANI
PRESIKA
RABAC
RIPENDA KOSI
RIPENDA KRAS
RIPENDA VERBANCI
SALAKOVCI
VINEŽ
Tip
Vse
Hiše
Stanovanja
Parcele
Poslovni prostori
Cena
od
do
Oddaljenost od morja (m)
od
do
Sort
Novejši
Starejši
Cenejši
Dražji
Poišči
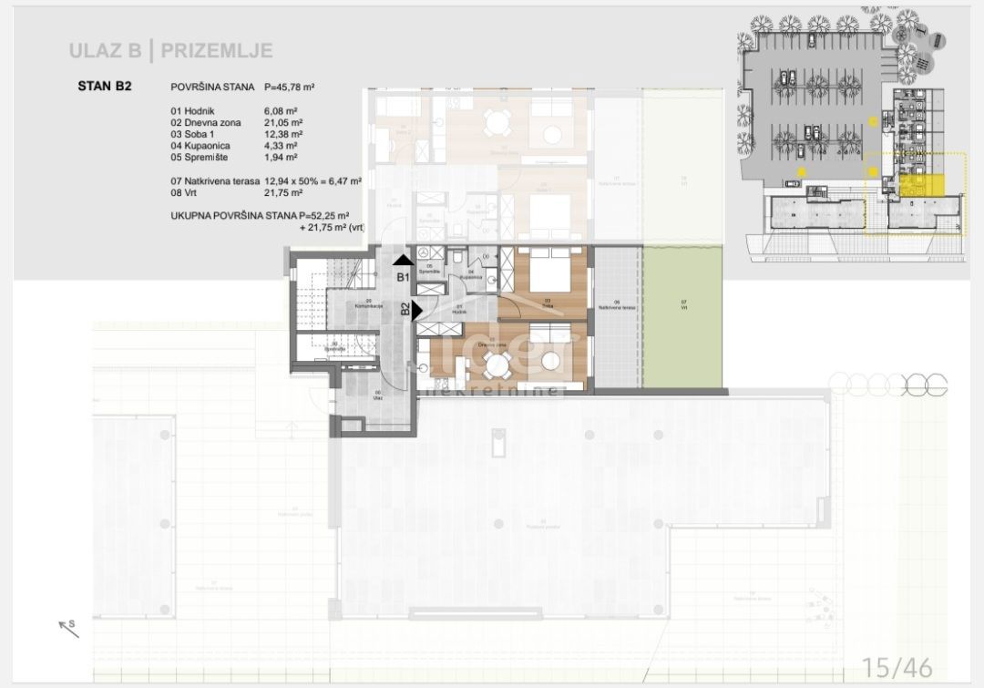
Stanovanje - LABIN - 179.000 EUR
Previous
Next
Lokacija
LABIN, Istrska
Cena €
179.000
Površina
52 m
2
Število sob
2
Število kopalnic
2
Oddaljenost od morja
3000 m
ID: 901377
Pošlji sporočilo
Ime
E-mail
Telefon
4 + 2 =
Sporočilo
Pošlji
Opusti