Hiša - LABIN - 780.000 EUR
| Lokacija | LABIN, Istrska |
| Cena € | 780.000 |
| Površina | 346 m2 |
| Število sob | 5 |
| Površina parcele | 2642 m2 |
| Število kopalnic | 5 |
| Oddaljenost od morja | 7000 m |
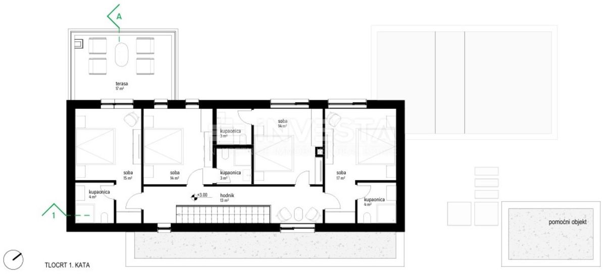
Labin okolica, čudovita vila s bazenom in strešno teraso – Villa E Predstavljamo Vilo E, del ekskluzivnega projekta petih modernih vil, ki se nahajajo v mirnem in idiličnem okolju blizu Labina. Ta impresivna vila z prostorno parcelo in vrhunskimi vsebinami ponuja popolno kombinacijo luksuza, zasebnosti in funkcionalnosti ter je idealna kot družinska hiša ali naložba v turistični najem. Osnovne značilnosti: Bruto površina: 346 m² Neto uporabna površina: 304 m² Površina parcele: 2.642 m² Urejena okolica: 825 m² (703 m² zelene površine in 122 m² tlakovanih teras) Parkirišče: 138 m² Zunanji prostor Zemljišče je skrbno zasnovano in opremljeno za največje udobje: Bazensko območje velikosti 9 x 5,3 m z nizkim otroškim delom in globljim delom za sprostitev in uživanje. Pokrita zunanja kuhinja na terasi, idealna za druženja in družinske obroke. Zunanji tuš za dodatno udobje ob bazenu. Pomožni objekt v velikosti 12 m², ki služi kot skladišče z možnostjo predelave. Strešna terasa velikosti 17 m², ki nudi miren prostor za sprostitev s delnim pogledom na naravo. Notranji prostor Villa E se razprostira v dveh nadstropjih: Prvo nadstropje: Prostoren odprt dnevni prostor povezan s kuhinjo in jedilnico, z izhodom na dve pokriti terasi. Shramba ob kuhinji za boljšo organizacijo prostora. Prostor za savno ali fitnes z neposrednim izhodom na teraso. WC za goste. nadstropje: Štiri elegantne spalnice, vsaka s pripadajočo kopalnico. Ena od sob ima izhod na strešno teraso velikosti 17 m², idealno za sprostitev v zasebnih trenutkih. Tehnična oprema Bazensko območje: Vodna površina 48 m², razdeljena na otroški plitvi in globlji del. Energetska učinkovitost: Sončne celice z močjo 5,46 kWp za zmanjšanje porabe energije. Ogrevanje in hlajenje: Inverterski klimatski sistem in talno ogrevanje preko fan-coil sistema. Prilagoditev zaključnih materialov: Možnost izbire zaključnih materialov po željah bodočih lastnikov. Lokacija in vsebine Villa E se nahaja na izjemno mirni in iskanem območju v neposredni bližini vseh potrebnih vsebin: trgovin, šol, pošte, zdravstvenih domov, športnih objektov in restavracij. Poleg tega, da nudi idealne pogoje za bivanje, predstavlja tudi izvrstno investicijsko priložnost za turistični najem z hitrim donosom vloženih sredstev. Zaključek Villa E, kot del ekskluzivnega projekta petih vil, je popolna kombinacija sodobnega oblikovanja, prostornosti in vrhunskih tehničnih rešitev. Prostoren vrt, bazen, strešna terasa in premišljeno zasnovana notranjost naredijo to vilo izjemno nepremičnino za bivanje ali investicijo. Zaključek gradnje: junij 2025. Za dodatne informacije ali dogovor o ogledu nas kontaktirajte!
ID: 1133186