Hiša - LABIN - 747.000 EUR
| Lokacija | LABIN, Istrska |
| Cena € | 747.000 |
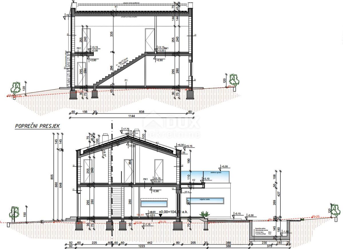
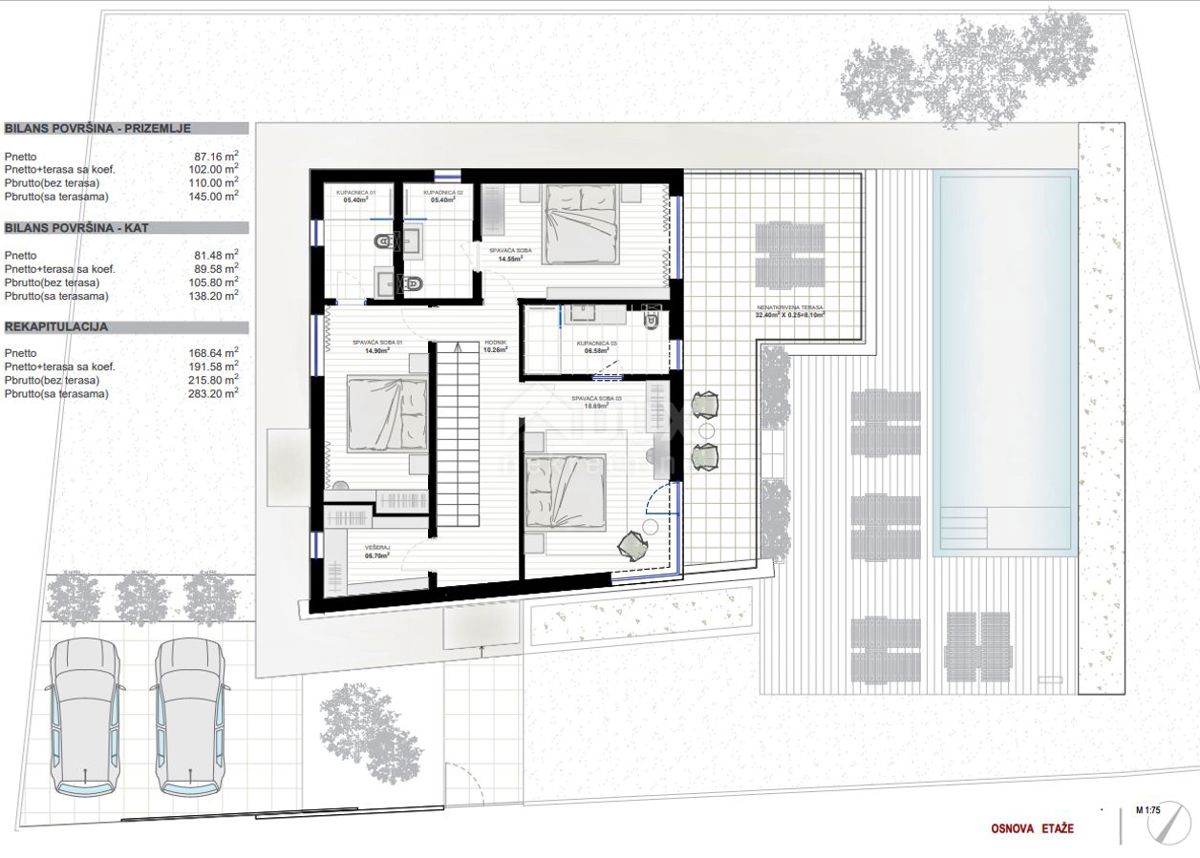
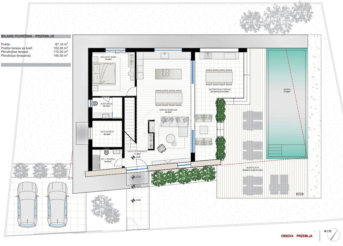
| Površina | 283 m2 |
| Število sob | 5 |
| Površina parcele | 601 m2 |
| Število kopalnic | 5 |
| Oddaljenost od morja | 8000 m |
ISTRA, LABIN - Sodobno zasnovana hiša z bazenom Na jugovzhodni obali Istre, kjer se zeleni griči srečajo z morjem, kjer se srečata narava in dediščina, sta dve mesti podobne velikosti, vendar z različnimi, a medsebojno dopolnjujočimi značaji - Labin in Rabac. Slikovito mesto Labin se dviga na hribu visokem 320 metrov, le pet kilometrov od belih prodnatih plaž v Rabcu. Prepleten z bogato zgodovino in rudarstvom, ki je zaznamovalo to regijo, je Labin, ki je bil za kratek čas razglašen za samostojno republiko, danes fascinantno mesto nasprotij; staro in novo, zgodovina in sedanjost, turizem in umetnost. Nedaleč od mesta Labin je naprodaj sodobno zasnovana hiša z bazenom. Hiša v idiličnem naselju je bila zasnovana v skladu s stroko, zakonskimi predpisi in prostorsko dokumentacijo ter zgrajena po najvišjih standardih stanovanjske gradnje. S svojo ukročeno arhitekturo ne moti okolja, temveč ustvarja sinergijo naravnega okolja, tradicionalne istrske arhitekture in modernega dizajna. Tradicijo simbolizirata kamen in dvokapnica, sodoben izraz pa steklena stena velikega formata. Oblikovna preprostost tradicionalne arhitekture je privedla do oblikovanja kompaktnega tlorisa in prijetno zračnega prostora. Sodoben interier, v katerem se blage in svetle zemeljske barve prepletajo z elegantno črnino, je razdeljen na dve etaži s skupno neto površino 191,58 m² in izžareva eleganco in preprostost ter zagotavlja visoko stopnjo udobja. Pritličje je sestavljeno iz odprtega koncepta, ki združuje dnevno sobo, jedilnico in kuhinjo z izhodom na prostorno pokrito teraso z letno kuhinjo. Tloris pritličja dopolnjuje spalnica z lastno kopalnico, WC za goste in kurilnica. V zgornjem nadstropju so tri spalnice z lastnimi kopalnicami, pralnica in prostorna terasa. Dvorišče je popolnoma ograjeno in elegantno urejeno s travo in mediteranskimi rastlinami, osrednje mesto pa zavzema 37 m² velik bazen s prostorom za sončenje. Ta odlično integrirana nepremičnina je izjemna priložnost za udobno družinsko življenje kot tudi naložbena naložba v turistični najem. Cenjene stranke, agencijska provizija se obračunava v skladu s Splošnimi pogoji poslovanja: www.dux-nekretnine.hr/opci-uvjeti-poslovanja
ID: 1068364