Hiša - LABIN - 340.000 EUR
| Lokacija | LABIN, Istrska |
| Cena € | 340.000 |
| Površina | 130 m2 |
| Število sob | 3 |
| Površina parcele | 634 m2 |
| Število kopalnic | 3 |
| Oddaljenost od morja | 8000 m |
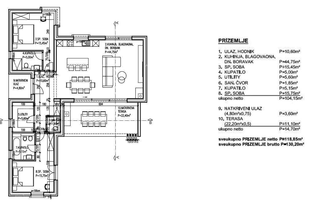
ISTRA, LABIN - Hiša z bazenom Na jugovzhodni obali Istre, na mestu, kjer se zeleni griči srečajo z morjem, kjer se združita narava in dediščina, se nahajata dve mesti podobne velikosti, vendar z različnimi, a medsebojno dopolnjujočimi značaji - Labin in Rabac. Slikovito mestece Labin se dviga na hribu visokem 320 m, le pet kilometrov od belih prodnatih plaž v Rabcu. Prepleten z bogato zgodovino in rudarstvom, ki je zaznamovalo to regijo, je Labin, ki je bil za kratek čas razglašen za samostojno republiko, danes fascinantno mesto nasprotij; staro in novo, zgodovina in sedanjost, turizem in umetnost. V bližini mesta Labin se prodaja hiša z bazenom. Nepremičnina predstavlja spoj moderne arhitekture in naravnega okolja, kakovost gradnje pa zagotavlja dolgoročno zadovoljstvo in kvaliteto bivanja. Hiša je zasnovana kot ena stanovanjska enota, ki se razteza skozi eno etažo z jasno definiranim tlorisom, ki je razdeljen na bivalni in spalni del. Bivalni del sestavljajo kuhinja, jedilnica in dnevna soba z izhodom na pokrito teraso z letno kuhinjo, nočni del pa dve spalnici z lastnima kopalnicama. Tloris dopolnjujejo hodnik, WC za goste in shramba. Navedena cena se nanaša na kvalitetno gradnjo stanovanjskega objekta, ki zajema pripravljalna dela, izkop in postavitev temeljev, izdelavo zunanjih in predelnih sten, krovska in pločevinarska dela ter zunanja tesarska, fasaderska in inštalacijska dela. Zaključna dela v notranjosti niso vključena v ceno. Možnost nakupa nepremičnine v zaključni fazi gradnje brez pohištva z urejenim vrtom s popravkom cene. Odlična lokacija ter prostorska organiziranost notranjosti in zunanjosti te nepremičnine dajejo priložnost za udobno družinsko življenje ali investicijsko investicijo v turistični najem. Cenjene stranke, agencijska provizija se obračunava v skladu s Splošnimi pogoji poslovanja: www.dux-nekretnine.hr/opci-uvjeti-poslovanja
ID: 1145425