Hiša - LABIN Vprašaj za ceno
| Lokacija | LABIN, Istrska |
| Cena € | Cena na upit |
| Površina | 500 m2 |
| Število sob | 6 |
| Površina parcele | 7500 m2 |
| Število kopalnic | 7 |
| Oddaljenost od morja | 5000 m |
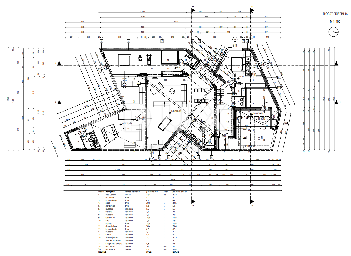
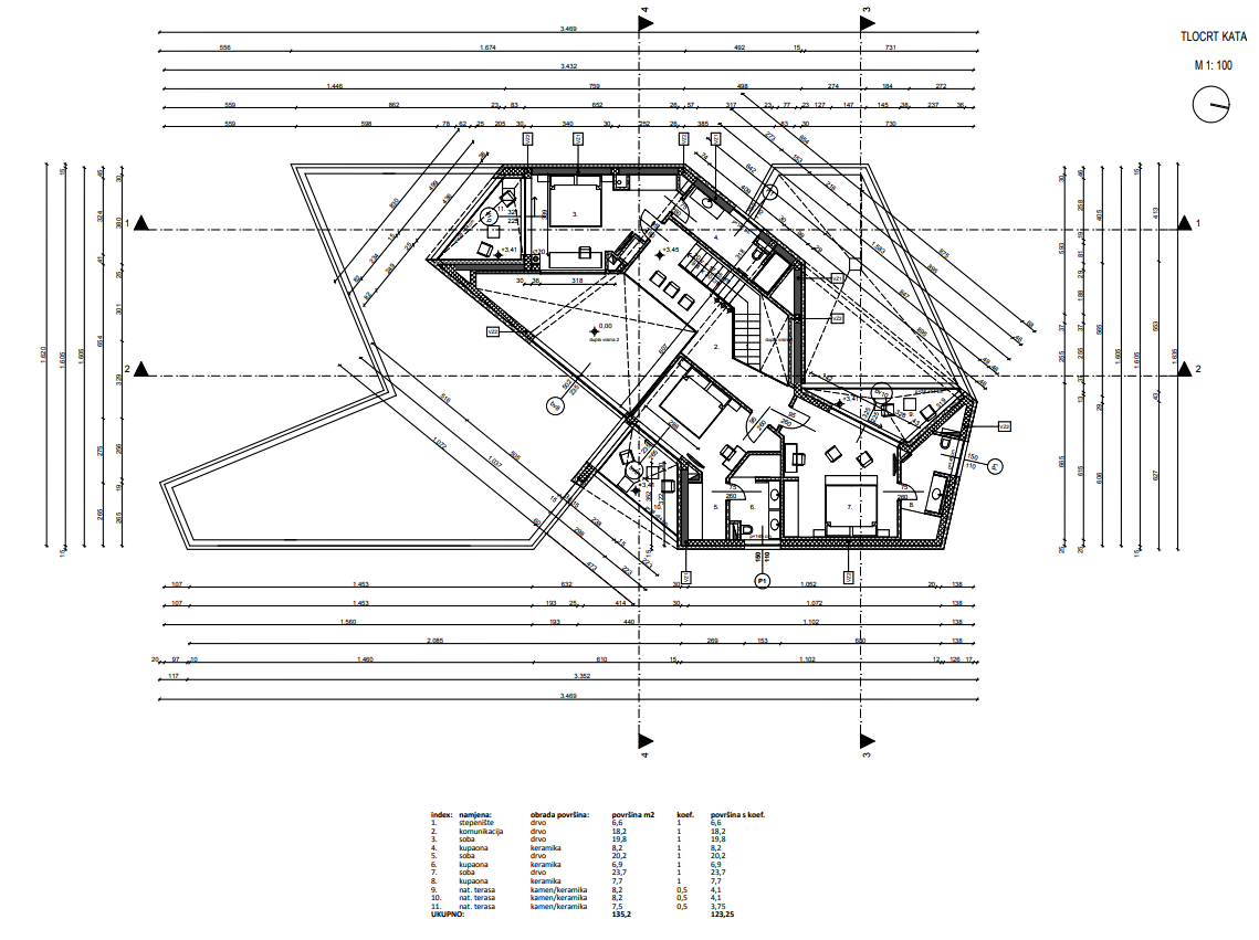
ISTRA, LABIN - Moderna vila, obdana z naravo Na jugovzhodni obali Istre, kjer se zeleni griči srečajo z morjem, kjer se narava in dediščina združujeta, se nahajata dve mesti podobne velikosti z različnimi, a medsebojno dopolnjujočimi se značaji - Labin in Rabac. Slikovito mesto Labin se dviga na 320 m visokem hribu, le štiri kilometre od belih prodnatih plaž Rabca. Prepleten z bogato zgodovino in rudarstvom, ki je zaznamovalo to območje, je Labin, ki je bil na kratko razglašen za neodvisno republiko, danes fascinantno mesto nasprotij; starega in novega, zgodovine in sedanjosti, turizma in umetnosti. Nedaleč od mesta Labin se prodaja moderna vila, obdana z naravo. Nepremičnina predstavlja harmonijo prostora, potreb, funkcij, gradnje in lepote, mikrolokacija pa ponuja pristno doživetje majhnega istrskega mesta, intimnost in olajšanje od vsakega napornega napora in hrupa, hkrati pa je blizu morja in urbanih ugodnosti mesta Labin. Poleg lokacije, ki zagotavlja popolno udobje in zasebnost, nepremičnino odlikuje tudi kakovost gradnje, ki zagotavlja dolgoročno zadovoljstvo in kakovost bivanja. Vila se s svojo arhitekturo zlije z naseljem in pokrajino v smislu oblike in barve, kar ustvarja sinergijo naravnega okolja in sodobnega oblikovanja. Opredeljena je kot ena stanovanjska enota, katere površina je razporejena v dveh okusno opremljenih in dobro opremljenih nadstropjih funkcionalnega tlorisa. Pritličje sestavlja prostoren odprt koncept, ki združuje kuhinjo, jedilnico in dnevno sobo z dostopom do prostorne pokrite terase, na kateri se nahajajo letna kuhinja, zunanje stranišče in shramba. Tloris pritličja dopolnjujejo telovadnica s fitnes opremo, spalnica z lastno kopalnico, stranišče za goste, pralnica in tehnični prostor s shrambo. Prvo nadstropje sestavljajo hodnik na galeriji in tri spalnice z lastnimi kopalnicami in zasebnimi terasami. Dvorišče je ambientalno in hortikulturno urejeno, popolno harmonijo pa zagotavlja bazen s prostorom za sončenje. Odlična lokacija in prostorska organizacija notranjosti in zunanjosti te nepremičnine ponujata priložnost za udobno družinsko življenje ali investicijo v turistično dejavnost oddajanja nepremičnin. Spoštovane stranke, agencijska provizija se obračunava v skladu s Splošnimi poslovnimi pogoji: www.dux-nekretnine.hr/opci-uvjeti-poslovanja
ID: 1213676