Parcela - KRK - 269.000 EUR
| Lokacija | KRK, Primorsko-goranska |
| Cena € | 269.000 |
| Površina | 575 m2 |
| Oddaljenost od morja | 0 m |
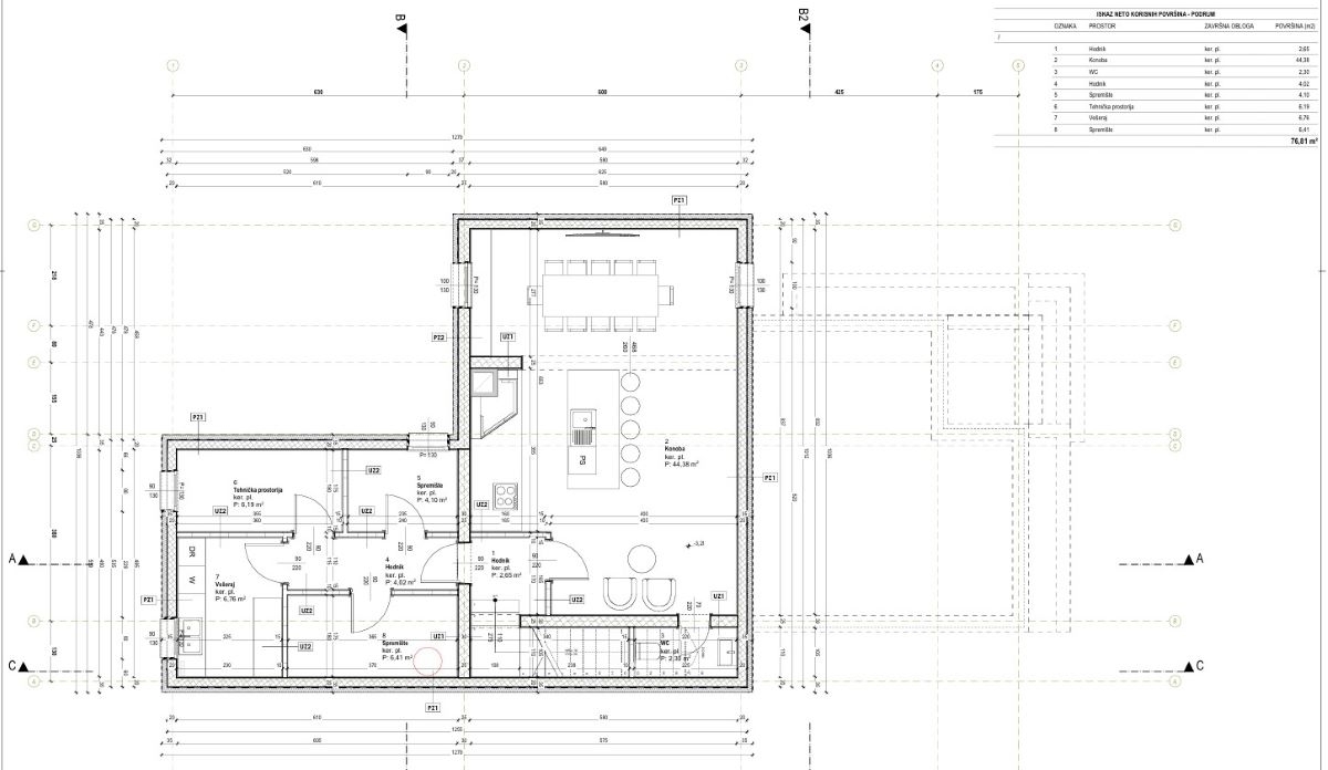
Gradbeno zemljišče z gradbenim dovoljenjem in projektom, otok Krk, pogled na morje Na mirni in atraktivni lokaciji na otoku Krku je v ponudbi agencije KRKIMMO nekretnine naprodaj gradbeno zemljišče površine 575 m² z veljavnim gradbenim dovoljenjem in popolno projektno dokumentacijo za gradnjo moderne družinske vile z bazenom. Zemljišče je pravilne oblike in se nahaja v prijetnem in mirnem okolju, od koder se odpira lep pogled na morje in naravo. Ta nepremičnina predstavlja odlično priložnost za gradnjo družinske hiše ali počitniške vile, prav tako pa je primerna kot investicija za turistično oddajanje. Po glavnem projektu je predvidena gradnja samostojne družinske hiše s kletjo, pritličjem in nadstropjem, s skupno bruto površino približno 309,5 m². V kleti so predvideni hodnik, WC, dve shrambi, tehnični prostor, pralnica ter konoba, ki lahko služi kot prostor za druženje, rekreacijo ali dodatno uporabo objekta. Pritličje je zasnovano kot funkcionalen in prostoren bivalni del, ki vključuje vhodni hodnik, stopnišče, shrambo, WC, spalnico z lastno kopalnico ter dnevno sobo s kuhinjo in jedilnico. Iz dnevnega prostora je predviden izhod na pokrito teraso, ki je idealna za sprostitev in uživanje v mediteranskem okolju. V nadstropju se nahaja hodnik ter tri udobne spalnice, vsaka s svojo kopalnico in izhodom na teraso, s katere se odpira lep pogled na morje. Na zemljišču je predvidena izgradnja bazena velikosti 24 m², sončne terase ter treh parkirnih mest, kar omogoča gradnjo moderne in funkcionalne vile, primerne za celoletno bivanje ali turistično oddajanje. Zemljišče se nahaja v mirnem delu kraja Brzac, obdano z naravo in družinskimi hišami, na lokaciji, ki nudi zasebnost in prijetno bivalno okolje, hkrati pa je dobro povezano z ostalimi deli otoka Krka. Nakup gradbenega zemljišča z že pridobljenim gradbenim dovoljenjem in projektno dokumentacijo omogoča hitrejši začetek gradnje, zato je ta nepremičnina še posebej zanimiva za investitorje in kupce, ki želijo svoj projekt realizirati brez dolgotrajnih postopkov pridobivanja dovoljenj. Za dodatne informacije, projektno dokumentacijo ali dogovor za ogled zemljišča nas prosimo kontaktirajte. Posredniška provizija za kupca znaša 3 % + DDV od dogovorjene kupoprodajne cene. KRKIMMO nepremičnine Kvarnerska ulica 6, Malinska T: +385 98 977 9705 E-mail: info@krkimmo.com www.krkimmo.com
ID: 1270650