Hiša - KRK - 850.000 EUR
| Lokacija | KRK, Primorsko-goranska |
| Cena € | 850.000 |
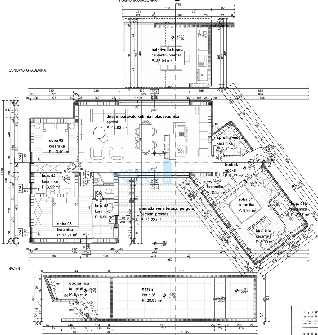
| Površina | 163 m2 |
| Število sob | 4 |
| Površina parcele | 700 m2 |
| Število kopalnic | 3 |
| Bližina prevoza | DA |
| Oddaljenost od morja | 0 m |
Otok Krk, mesto Krk, širša okolica, moderna hiša s bazenom in pogledom na morje Moderna in stilsko urejena hiša na posebej atraktivni lokaciji. Dizajn, koncept in oprema podpirajo sodoben življenjski slog ter omogočajo zasebnost v neposredni bližini narave. Sestavljena je iz treh spalnic, od katerih ima vsaka svojo kopalnico, odprtega dnevnega prostora, jedilnice in kuhinje, hodnika, shrambnega prostora in WC-ja. Hišo bogati prostorna pokrita terasa velikosti 32 m2 ter infinity bazen s slano vodo velikosti 30 m2, s sončno teraso in pergolo. Orientacija proti jugu in lega ob zeleni coni, 2 km od morja, naredi to hišo idealno rešitev za goste ali lastnike, ki cenijo sproščeno mediteransko vzdušje. Hiša je opremljena s kakovostnimi keramičnimi ploščicami, pohištvom in napravami. Vgrajeno je talno gretje, klimatizirana je, okolica pa je bogata z mediteranskim rastlinjem.
ID: 1164064