Hiša - KRK - 260.000 EUR
| Lokacija | KRK, Primorsko-goranska |
| Cena € | 260.000 |
| Površina | 197 m2 |
| Število sob | 8 |
| Površina parcele | 342 m2 |
| Število kopalnic | 2 |
| Oddaljenost od morja | 1000 m |
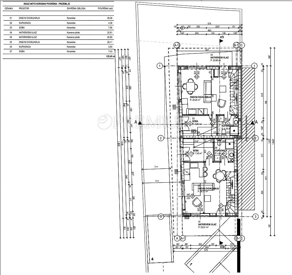
Okolica mesta Krk – samostojna hiša s projektom in gradbenim dovoljenjem Naprodaj je samostojna hiša v okolici mesta Krk, idealna kot investicija, z veljavnim gradbenim dovoljenjem in projektom rekonstrukcije. Nepremičnina se nahaja na parceli velikosti 401 m², hiša pa obsega pritličje in prvo nadstropje, s skupno bruto površino 197 m². Trenutno se pritličje uporablja kot shramba, v prvem nadstropju pa se nahajajo dve spalnici, kopalnica, kuhinja z jedilnico in dnevnim prostorom. V skladu s projektom rekonstrukcije je predvidena samostojna hiša z dvema stanovanjskima enotama, etažnosti pritličje in prvo nadstropje, s strešnima terasama, s skupno površino 277 m². Vsaka stanovanjska enota je zasnovana kot dvoetažno stanovanje s funkcionalno in jasno ločenim dnevnim in spalnim delom. V pritličju so predvideni vhodni prostor, dnevni prostor s kuhinjo in jedilnico, kopalnica ter ena spalnica, v prvem nadstropju pa tri spalnice, dve kopalnici in hodnik, s pripadajočimi balkoni. V strešni etaži ima vsaka enota lastno strešno teraso, zasnovano kot zasebni zunanji prostor za sprostitev in bivanje na prostem. S strešnih teras je predviden pogled na morje. Na parceli sta zagotovljeni po dve parkirni mesti za vsako stanovanjsko enoto. Hiša se nahaja na mirni lokaciji, v bližini vseh potrebnih vsebin, le 1 km od morja.
ID: 1251625