Hiša - KRK - 1.985.000 EUR
| Lokacija | KRK, Primorsko-goranska |
| Cena € | 1.985.000 |
| Površina | 450 m2 |
| Število sob | 10 |
| Površina parcele | 418 m2 |
| Število kopalnic | 6 |
| Bližina prevoza | DA |
| Blizu plaže | DA |
| Oddaljenost od morja | 0 m |
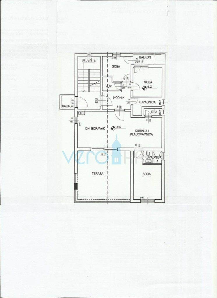
Krk, Prodamo moderno dvonadstropno hišo 450 m2 s 418 m2 vrta v prvi vrsti do morja. Hiša je v naravi stavbna s tremi etažami, ki so povezane z notranjim stopniščem in je orientirana na jugovzhod, proti morju. Vsako nadstropje ima vhodni prostor, tri spalnice, tri kopalnice, shrambo, kuhinjo in dnevno sobo v enem prostoru, balkon in teraso. Iz vsakega nadstropja je tudi odprt pogled na morje. Lokacija tega objekta je izjemne vrednosti in zato edinstvena naložbena priložnost!
ID: 874731