Stanovanje - KOŽINO - 439.000 EUR
| Lokacija | KOŽINO, ZADAR, Zadarska |
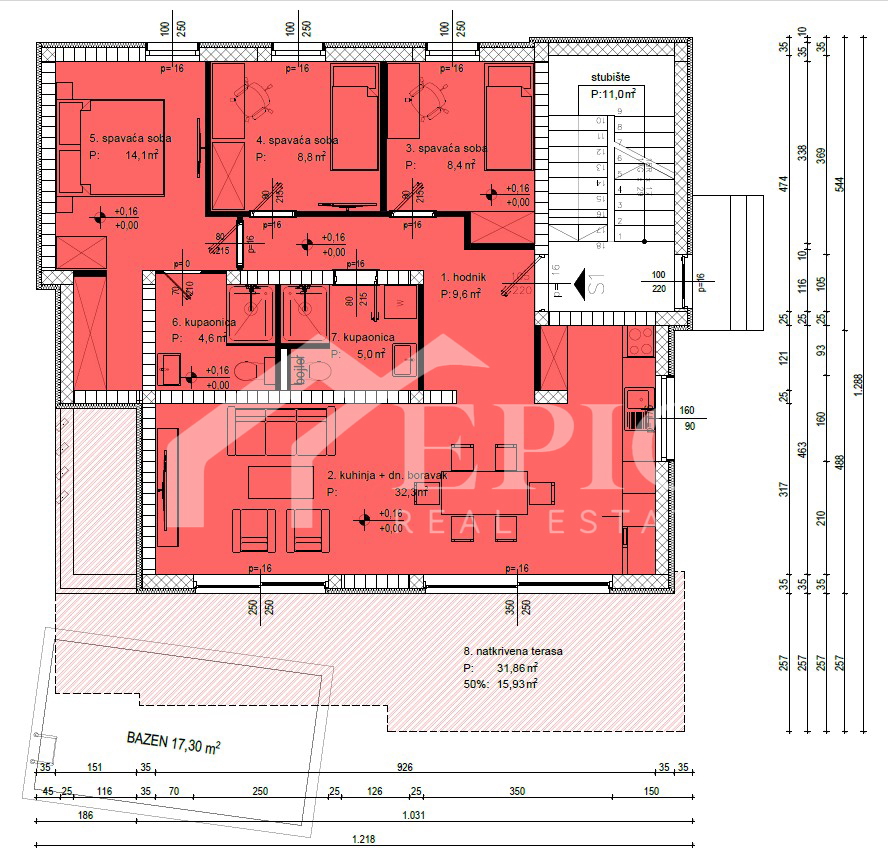
| Cena € | 439.000 |
| Površina | 135 m2 |
| Število sob | 4 |
| Število kopalnic | 2 |
| Blizu plaže | DA |
| Oddaljenost od morja | 0 m |
V ponudbi imamo novogradnjo v priljubljenem predmestju Zadra, od plaže oddaljeno zgolj 70 metrov. Stanovanje je umeščeno v pritličje čudovite zgradbe sodobnega oblikovanja, ki ponuja izjemno priložnost za razkošno in udobno bivanje. Ta elegantna zgradba je sestavljena iz treh stanovanj, razporejenih na treh nadstropjih, pri čemer je vsak detajl skrbno načrtovan, da zadovolji visoke standarde sodobnega stanovanja. Ob vstopu v stanovanje vas pričaka prostoren in svetel notranji prostor, ki izžareva prefinjenost. Glavni spalni prostor, velik 11,9 m2, je opremljen z lastno garderobo in zasebno kopalnico velikosti 4,6 m2. Ta zasebna oaza nudi izjemno udobje in intimo. Poleg glavne spalnice stanovanje ponuja še dve prijetni spalni sobi velikosti 8,8 m2 in 8,4 m2, idealni za družino ali goste, ter dodatno kopalnico velikosti 5,0 m2, opremljeno z modernimi sanitarijami. Sredinski del stanovanja tvori prostoren odprt prostor, ki združuje kuhinjo, jedilnico in dnevno sobo, skupaj velik 32,30 m2. Ta prostor je zasnovan za družabna srečanja in družinske trenutke ter nudi idealno vzdušje za skupno kuhanje, obedovanje in sprostitev. Iz dnevne sobe je izhod na pokrito teraso velikosti 31,86 m2, ki je popolna za uživanje na svežem zraku v vseh letnih časih. Posebna značilnost tega stanovanja je prostorna vrtna površina 105,71 m2, ki vključuje bazen pred teraso velikosti 17,28 m2. Ta zunanji prostor ponuja izjemne možnosti za sprostitev, rekreacijo in druženje na prostem ter zagotavlja občutek zasebnosti in razkošja. Stanovanje vključuje tudi shrambni prostor v kletnih prostorih zgradbe, velik 6,89 m2, ter dve zunanji parkirni mesti, kar zagotavlja dodatno praktičnost in udobje. Moderna zgradba, v kateri je stanovanje, je zgrajena z uporabo vrhunskih materialov priznanih proizvajalcev, kar zagotavlja varnost in dolgoživost nepremičnine. V stanovanju je vgrajena vrhunska oprema, vključno s toplinsko fasado, talnim gretjem v vseh prostorih, klimatskimi napravami v vseh sobah ter visokokakovostno zunanjo stavbno pohištvo s troslojnim steklom, roletami na električni pogon in mrežami proti insektom. Te lastnosti zagotavljajo maksimalno energetsko učinkovitost in udobje bivanja. Stanovanje v pritličju predstavlja idealen dom za tiste, ki iščejo razkošje, udobje in sodoben življenjski slog. Vsaka soba v stanovanju je načrtovana z natančnostjo do detajlov in funkcionalnostjo, zaradi česar je to stanovanje pravi dragulj na trgu nepremičnin. Stanovanje v pritličju se nahaja v naselju Kožino, ki je del mesta Zadar v Zadarski županiji. Kožino je znano po svojem mirnem in slikovitem okolju, kar ga naredi idealno mesto za družinsko življenje ali za tiste, ki iščejo miren pobeg od mestnega vrveža. Bližina Zadra omogoča enostaven dostop do vseh potrebnih storitev, vključno z trgovinami, restavracijami, šolami in kulturnimi znamenitostmi. Dokumentacija in lastništvo sta urejena. Ogled možen po predhodnem dogovoru. Vse ostale informacije na povpraševanje.
ID: 1167431