Stanovanje - KOSTRENA - 884.100 EUR
| Lokacija | KOSTRENA, Primorsko-goranska |
| Cena € | 884.100 |
| Površina | 210 m2 |
| Število sob | 5 |
| Površina parcele | 350 m2 |
| Število kopalnic | 3 |
| Bližina prevoza | DA |
| Oddaljenost od morja | 0 m |
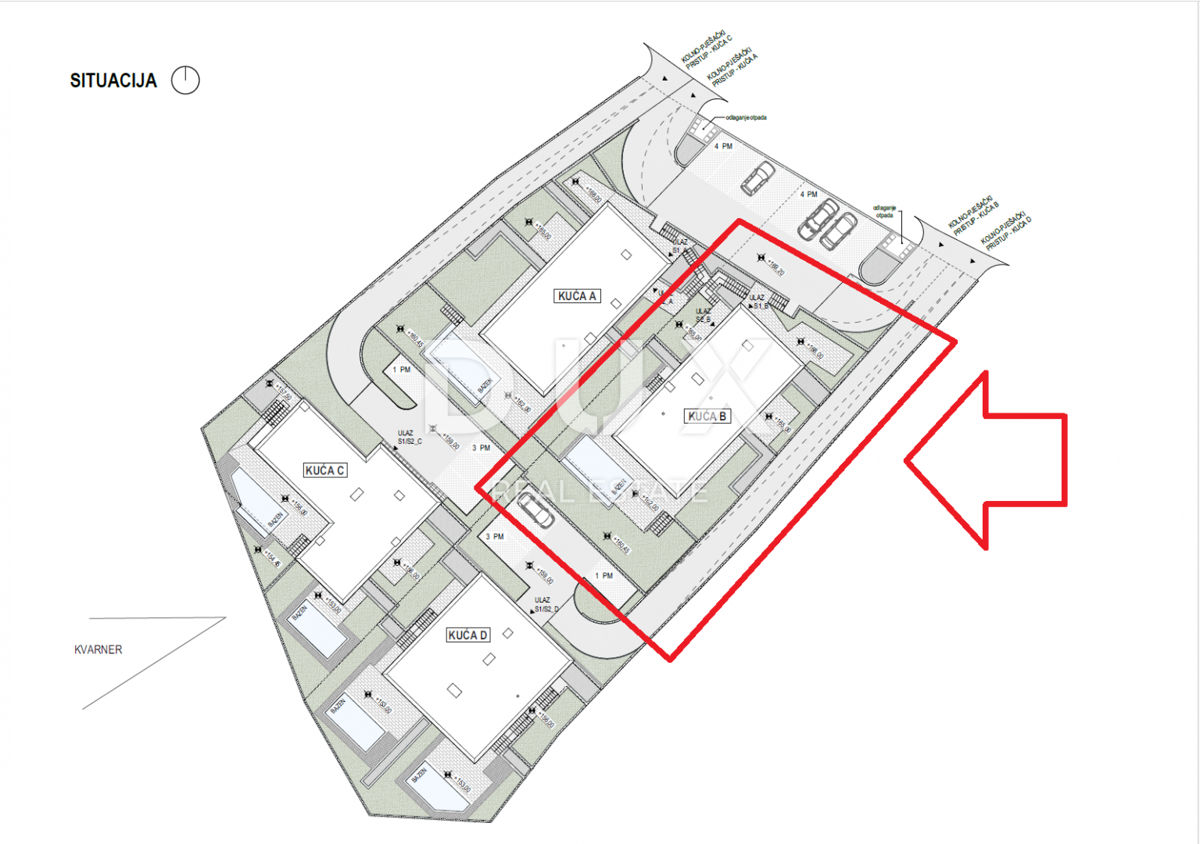
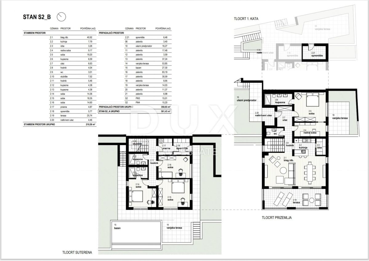
RIJEKA, KOSTRENA - ekskluzivno dupleks stanovanje 210,50 m2 novogradnja s čudovitim razgledom na morje in bazen + vrt 350,93 m2 - S2-B Ponujamo vam nepremičnino, ki vam ponuja sodoben dizajn in eleganco, udobje in vrhunsko opremo, nahaja pa se na čudoviti mirni lokaciji v bližini javnega prevoza, šol, vrtcev, nakupovalnih središč in deset minut vožnje od Reke. Kompleks 4 stanovanjskih stavb s skupno 8 stanovanji se nahaja severno od Jadranske magistrale na območju "Zelena Kostrena", od koder je čudovit razgled na celoten Kvarner. V neposredni bližini je 10 kilometrov urejenih pohodniških, kolesarskih in fitnes poti, ki potekajo skozi najvišje dele Kostrene od vrha Solin do vrha Sopalj. Dostop do hiš je urejen z zgornje ceste, kjer je predvidena ureditev in širitev obstoječe ceste. Vsaka hiša ima štiri zunanja parkirna mesta oziroma dve parkirni mesti na stanovanjsko enoto. Vsaka hiša je sestavljena iz dveh stanovanj. Stanovanja na zgornjih dveh parcelah se nahajajo eno nad drugim, stanovanja na spodnjih dveh parcelah pa se nahajajo drugo ob drugem. Vsako stanovanje ima del vrta. HIŠA B stanovanje S2 - B: BIVALNI PROSTORI: - dnevna soba / jedilnica 40,92 - kuhinja 7,79 - shramba 3,26 - delovna soba 9,17 - soba 19,20 - kopalnica 6,59 - vhod 6,63 - hodnik 4,04 - stranišče 3,01 - stopnišče 7,52 - hodnik 5,46 - kopalnica 4,38 - kopalnica 4,38 - soba 14,36 - soba 18,35 - soba 14,60 - pralnica 4,87 - shramba 5,77 - terasa 25,74 - pokrit vhod 4,46 SKUPAJ BIVALNIH PROSTOROV: 210,50 m² PRIPADNI PROSTORI: - shramba 6,48 - zelenje 3,40 - vhodna dvorana 16,27 - zelenje 17,48 - zelenje 3,59 - zelenje 37,24 - zunanja terasa 53,85 - bazen 27,30 - zelenje 83,19 - zelenje 30,59 - zelenje 8,95 - zunanja terasa 14,03 - zelenje 11,37 - zelenje 6,98 - parkirno mesto 3 15,01 - parkirno mesto 4 15,20 SKUPAJ PRIPADNI PROSTORI: 350,93 m² SKUPAJ STANOVANJE S2-B: 561,43 m² To luksuzno stanovanje je zasnovano za maksimalno udobje. OPREMA: Hiša, v kateri se nahaja stanovanje, je dobro grajena in luksuzno opremljena, vsi vgrajeni materiali, talne in stenske obloge so najvišjih standardov. - 10 cm debela fasadna izolacija - talno ogrevanje - toplotne črpalke - vrhunsko aluminijasto stavbno pohištvo. Stanovanje ima lasten vrt in 2 parkirni mesti. CENA: Navedena cena se nanaša na popolnoma dokončano nepremičnino na ključ, brez pohištva. Cena vključuje DDV, kupec je oproščen plačila davka na nepremičnine. V primeru nakupa od podjetja, registriranega na Hrvaškem, je po prodaji možno celotno vračilo DDV. Čista in urejena nepremičnina. Zagotovo lepa nepremičnina za luksuzno družinsko življenje, primerna pa je tudi kot naložba v obliki elitnega turizma. UNIKATNA NEPREMIČNINA, KI JE VSEKAKO VREDNA VAŠE POZORNOSTI NA ODLIČNI LOKACIJI!!! KOSTRENA Kostrena je staro, priljubljeno obmorsko mesto, prvič omenjeno v začetku 15. stoletja. Svojo prvo občinsko samostojnost je pridobila leta 1874, vendar jo je obdržala zelo kratek čas, le dve leti. Razdeljena je na dva dela, sv. Lucijo in sv. Barbaro, po imenih dveh cerkva, ki stojita na njenem območju. Kostrena se nahaja v neposredni bližini mesta Reka, uokvirjena z zalivom Martinšćica in Bakarskim zalivom. Polotok Kostrena je dolg približno 10 kilometrov in se rahlo spušča proti obali. Po vsej dolžini so čudovite plaže, ki jih poleti obišče na tisoče kopalcev. Najbolj znane in najbolj obiskane so tiste v zalivu Žurkovo, nato Smokvinovo, Svežanj, Spužvina, Podražica, Nova voda in Perilo. Kostrena sestavlja približno dvajset naselij, od katerih so mnoga dobila ime po družinah, danes pa so najbolj naseljena Vrh Martinšćice, Glavani, Sv. Lucija, Rožmanići, Doričići in Paveki. Značilno kraško območje z mediteranskim rastlinjem in znamenito kostrensko gromačo ter milo podnebje, ki ga včasih zamenjajo močni sunki burje, so značilnosti te regije. Spoštovane stranke, provizija agencije se obračunava v skladu s Splošnimi pogoji poslovanja: www.dux-nekretnine.hr/opci-uvjeti-poslovanja Spoštovani potencialni kupci, najemniki in zakupniki, ogled nepremičnine, ki vas zanima in za katero imate interes, je možen le in izključno s podpisom Pogodbe o posredovanju v nepremičninah, z namenom zaščite lastnika nepremičnine pred obiski neprijavljenih oseb ter v skladu z Zakonom o varstvu podatkov in Zakonom o posredovanju v nepremičninah. Ob ogledu vsake nepremičnine mora potencialni kupec/najemnik/zakupnik izpolniti in podpisati Pogodbo o posredovanju z nepremičninami, ki navaja naslednje: - osnovne podatke o potencialnem kupcu/najemniku/zakupniku - osnovne podatke o agenciji - višino agencijske provizije Agencijska provizija za kupca znaša 3 % (+25 % DDV) od skupne dogovorjene kupnine. Agencijska provizija za najemnika znaša eno mesečno najemnino (+25 % DDV).
ID: 1249853