Stanovanje - KOSTRENA - 770.000 EUR
| Lokacija | KOSTRENA, Primorsko-goranska |
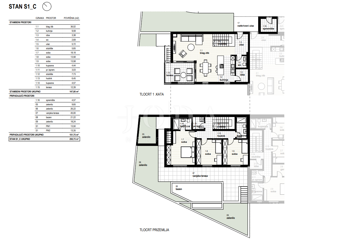
| Cena € | 770.000 |
| Površina | 147 m2 |
| Število sob | 4 |
| Površina parcele | 151 m2 |
| Število kopalnic | 4 |
| Bližina prevoza | DA |
| Oddaljenost od morja | 1200 m |
Prodajamo luksuzno dvoetažno stanovanje s skupno površino 147 m² v zelenem in mirnem delu Kostrene. Stanovanje se nahaja v novi stavbi s čudovitim pogledom na morje in vključuje zasebni bazen, terase, urejen vrt in vrhunsko tehnično opremo. Stanovanje je sestavljeno iz: - dnevne sobe in jedilnice s kuhinjo - treh spalnic, garderobne sobe, kleti, shrambe - dveh kopalnic, dveh dodatnih stranišč, hodnika in terase Stanovanje vključuje naslednje pripadajoče prostore: - zasebni bazen - dve terasi in urejen vrt - dveh zunanjih parkirnih mest - shrambe (8 m²) Nepremičnina je opremljena z: - talnim ogrevanjem s toplotno črpalko - klimatsko napravo - aluminijastim stavbnim pohištvom - varnostnimi vrati in vrhunskimi zaključnimi materiali Prodaja se na ključ, brez pohištva. Prodajalec je zavezanec za DDV.
ID: 1210616