Stanovanje - KOSTRENA - 583.300 EUR
| Lokacija | KOSTRENA, Primorsko-goranska |
| Cena € | 583.300 |
| Površina | 138 m2 |
| Število sob | 4 |
| Površina parcele | 72 m2 |
| Število kopalnic | 3 |
| Bližina prevoza | DA |
| Oddaljenost od morja | 0 m |
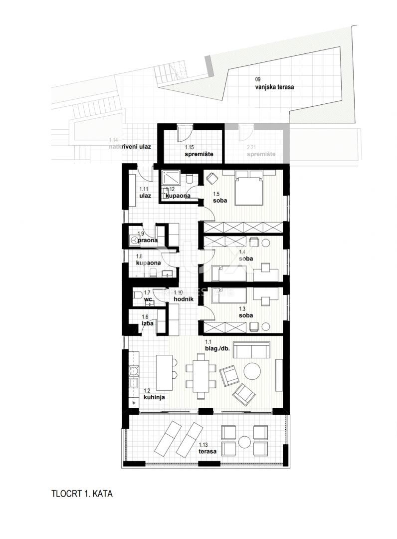
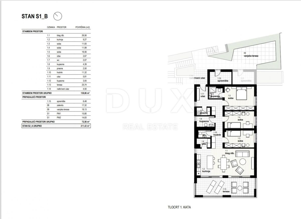
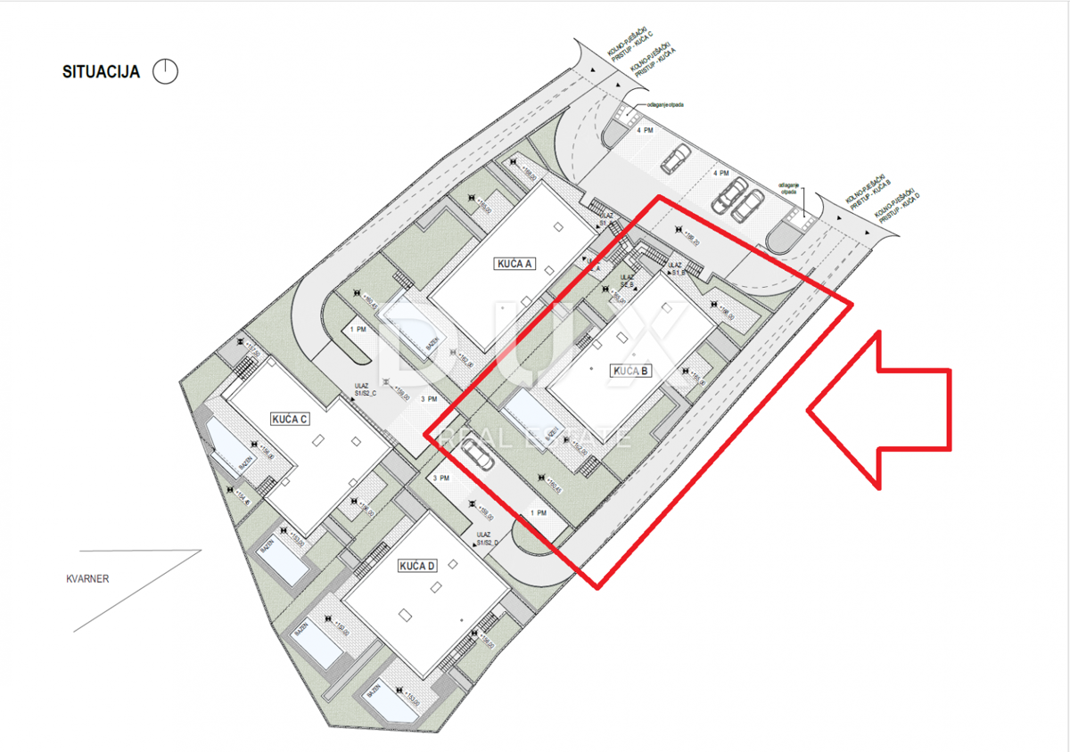
RIJEKA, KOSTRENA - ekskluzivno stanovanje 138,86 m2 novogradnja s čudovitim pogledom na morje + vrt 72,56 m2 - S1-B Ponujamo vam nepremičnino, ki vam ponuja sodoben dizajn in eleganco, udobje in vrhunsko opremo, nahaja pa se na čudoviti mirni lokaciji v bližini javnega prevoza, šol, vrtcev, nakupovalnih središč in deset minut vožnje od Reke. Kompleks 4 stanovanjskih stavb s skupno 8 stanovanji se nahaja severno od Jadranske magistrale na območju "Zelena Kostrena", od koder je čudovit razgled na celoten Kvarner. V neposredni bližini je 10 kilometrov urejenih pohodniških, kolesarskih in fitnes poti, ki potekajo skozi najvišje dele Kostrene od vrha Solin do vrha Sopalj. Dostop do hiš je urejen z zgornje ceste, kjer je predvidena ureditev in širitev obstoječe ceste. Vsaka hiša ima štiri zunanja parkirna mesta oziroma dve parkirni mesti na stanovanjsko enoto. Vsaka hiša je sestavljena iz dveh stanovanj. Stanovanja na zgornjih dveh parcelah se nahajajo eno nad drugim, stanovanja na spodnjih dveh parcelah pa se nahajajo eno poleg drugega. Vsako stanovanje ima del vrta. HIŠA B stanovanje S1 - B: BIVALNI PROSTORI: - dnevna soba/jedilnica 26,56 - kuhinja 9,27 - spalnica 11,93 - spalnica 11,99 - spalnica 16,56 - omara 2,67 - stranišče 2,07 - kopalnica 4,39 - pralnica 2,50 - hodnik 11,32 - vhod 5,81 - kopalnica 3,55 - terasa 25,74 - pokrit vhod 4,50 SKUPAJ BIVALNIH PROSTOROV: 138,86 m² PRIDARJENI PROSTORI: - shramba 6,48 - zelenica 17,32 - zunanja terasa 18,13 - parkirno mesto 1 15,80 - parkirno mesto 2 14,83 SKUPAJ PRIPADNIH PROSTOROV: 72,56 m² SKUPAJ STANOVANJE S1-B: 211,42 m² To luksuzno stanovanje je zasnovano za maksimalno udobje. OPREMA: Hiša, v kateri se nahaja stanovanje, je dobro grajena in luksuzno opremljena, vsi vgrajeni materiali, talne in stenske obloge so najvišjih standardov. - 10 cm debela izolacija fasade - talno ogrevanje - toplotne črpalke - vrhunsko aluminijasto stavbno pohištvo. Stanovanje ima lasten vrt in 2 parkirni mesti. CENA: Navedena cena se nanaša na popolnoma dokončan objekt na ključ, brez pohištva. Cena vključuje DDV, kupec je oproščen plačila davka na nepremičnine. V primeru nakupa od podjetja, registriranega na Hrvaškem, je po prodaji možno celotno vračilo DDV. Čista in urejena nepremičnina. Zagotovo lepa nepremičnina za luksuzno družinsko življenje, primerna pa je tudi kot naložba v obliki elitnega turizma. EDINSTVENA NEPREMIČNINA, KI JE VSEKAKO VREDNA VAŠE POZORNOSTI NA ODLIČNI LOKACIJI!!! KOSTRENA Kostrena je staro priljubljeno obmorsko mesto, prvič omenjeno v začetku 15. stoletja. Svojo prvo občinsko samostojnost je pridobila leta 1874, vendar jo je obdržala zelo kratek čas, le dve leti. Razdeljena je na dva dela, sv. Lucijo in sv. Barbaro, po imenih dveh cerkva, ki stojita na njenem območju. Kostrena se nahaja v neposredni bližini mesta Reka, uokvirjena z zalivom Martinšćica in Bakarskim zalivom. Polotok Kostrena je dolg približno 10 kilometrov in se rahlo spušča proti obali. Po celotni dolžini so čudovite plaže, ki jih poleti obišče na tisoče kopalcev. Najbolj znane in najbolj obiskane so tiste v zalivu Žurkovo, nato Smokvinovo, Svežanj, Spužvina, Podražica, Nova voda in Perilo. Kostrena obsega približno dvajset naselij, od katerih so mnoga dobila imena po družinah, danes pa so najbolj naseljena Vrh Martinšćice, Glavani, Sv. Lucija, Rožmanići, Doričići in Paveki. Značilno kraško območje z mediteranskim rastlinjem in znamenito kostrensko gromačo ter milo podnebje, ki ga včasih zamenjajo močni sunki burje, so značilnosti te regije. Spoštovane stranke, provizija agencije se obračunava v skladu s Splošnimi pogoji poslovanja: www.dux-nekretnine.hr/opci-uvjeti-poslovanja Spoštovani potencialni kupci, najemniki in zakupniki, ogled nepremičnine, ki vas zanima in za katero imate interes, je možen le in izključno s podpisom Pogodbe o posredovanju v nepremičninah, da bi lastnika nepremičnine zaščitili pred obiski neprijavljenih oseb ter v skladu z Zakonom o varstvu podatkov in Zakonom o posredovanju v nepremičninah. Ob ogledu vsake nepremičnine je potencialni kupec/najemnik/zakupnik dolžan izpolniti in podpisati Pogodbo o posredovanju v prometu z nepremičninami, v kateri so navedeni naslednji podatki: - osnovni podatki o potencialnem kupcu/najemniku/zakupniku - osnovni podatki o agenciji - višina agencijske provizije Agencijska provizija za kupca znaša 3 % (+25 % DDV) od skupne dogovorjene kupnine. Agencijska provizija za najemnika znaša ena mesečna najemnina (+25 % DDV).
ID: 1249858