Stanovanje - KOSI - 199.000 EUR
| Lokacija | KOSI, VIŠKOVO, Primorsko-goranska |
| Cena € | 199.000 |
| Površina | 75 m2 |
| Število sob | 3 |
| Število kopalnic | 1 |
| Oddaljenost od morja | 0 m |
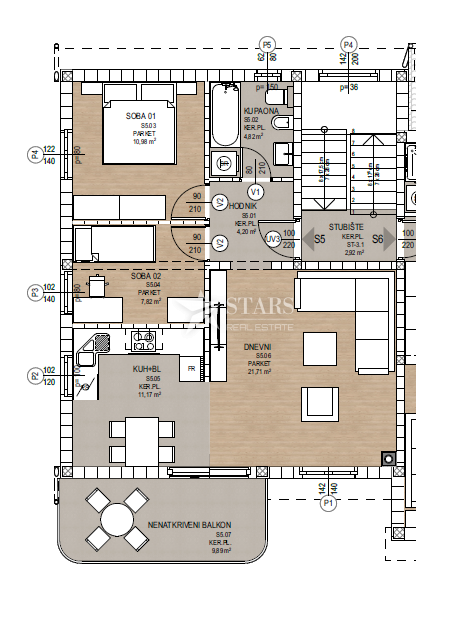
Viškovo – Kosi Stanovanje S5 – Dvosobno stanovanje z dnevno sobo V prodaji je dvosobno stanovanje z dnevno sobo (S5), ki se nahaja v drugem katu sodobne stanovanjske stavbe(A) na mirni lokaciji v Kosih, obdano z zelenjem in s čudovitim razgledom na Kvarnerski zaliv. Stanovanje je trostransko orientirano, izjemno svetlo in funkcionalno razporejeno. Dnevna soba in jedilnica imata izhod na prostoren balkon, iz dnevne sobe pa se odpira odprt pogled na morje. Kuhinja je nameščena v praktičnem kotnem delu prostora, kopalnica pa ima predviden prostor za pralni in sušilni stroj. Obe spalnici sta pravilne oblike in dobro osvetljeni. Vse sobe omogočajo naravno prezračevanje. Oprema in specifikacije: -talno ogrevanje v celotnem stanovanju -klimatska naprava v dnevni sobi -kopalnica s prostorom za pralni in sušilni stroj -shramba v kleti -dve parkirni mesti ob stavbi Projekt in roki: -začetek gradnje: 01/2026 -zaključek del: 06/2027 -prodaja po sistemu »na ključ« -kupec ne plača davka na promet nepremičnin -možnost vračila 50 % DDV ob nakupu prve nepremičnine Cena: 199.000 € Možnost obročnega plačila (s popustom 10.000 €): -1.obrok – 30 % (po sklenitvi predpogodbe) -2.obrok – 30 % (ob zaključku faze roh-bau) -3.obrok – 30 % (po vgradnji stavbnega pohištva in 1. fazi inštalacij) -4.obrok – 10 % (ob pridobitvi uporabnega dovoljenja) Za več informacij in dogovor za ogled nepremičnine kontaktirajte agenta neposredno.
ID: 1235711