Stanovanje - KANFANAR - 339.000 EUR
| Lokacija | KANFANAR, Istrska |
| Cena € | 339.000 |
| Površina | 123 m2 |
| Število sob | 3 |
| Število kopalnic | 2 |
| Blizu plaže | DA |
| Oddaljenost od morja | 0 m |
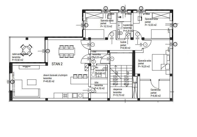
Prodamo stanovanja v objektu, katerega gradnja se je pričela v 9. mesecu 2023. Projekt sestavljata dva povezana objekta s skupno 8 stanovanji, 3 stanovanja v enem in 5 v drugem objektu. Stavbe se nahajajo v mirnem predelu Kanfanarja, obkrožene z luksuznimi vilami stran od prometnih cest. Trisobno stanovanje S2 se nahaja v 1. nadstropju stavbe s skupno 3 stanovanji, po eno stanovanje v vsaki etaži, ima bivalno površino 123,30 m2 in je sestavljeno iz naslednjih prostorov: dnevna soba + kuhinja + jedilnica - 45,82 m2 predsoba - 3,23 m2 hodnik - 6,96 m2 WC - 2,68 m2 kopalnica - 4,35 m2 spalnica 1 - 10,15 m2 spalnica 2 - 12,03 m2 spalnica 3 - 16,20 m2 soba/shramba - 4,16 m2 garderobna soba - 6,80 m2 pokrita terasa - 10,92 m2 Stanovanju pripada 1 parkirno mesto. Kakovostna keramika je v vseh prostorih, razen v spalnicah in vhodnem delu, kjer bodo položene vrhunske vinilne talne obloge. Gradnja se je začela v začetku jeseni 2023, dokončanje pa je predvideno konec leta 2024. Sprejemamo rezervacije! +385 91 611 5706 azra@almadominvest.com +385 98 420 885
ID: 1224407