Parcela - KANFANAR - 88.850 EUR
| Lokacija | KANFANAR, Istrska |
| Cena € | 88.850 |
| Površina | 846 m2 |
| Oddaljenost od morja | 8000 m |
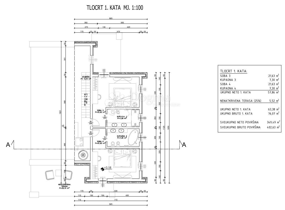
Kanfanar – Stavbno zemljišče 846 m² s projektom in gradbenim dovoljenjem Na mirni lokaciji, na robu manjšega istrskega naselja v bližini Kanfanarja, se nahaja stavbno zemljišče velikosti 906 m². Parcela ima veljavno gradbeno dovoljenje in pripravljen projekt za sodobno vilo z bazenom, kar omogoča takojšen začetek gradnje brez dodatnih administrativnih postopkov. Vsa potrebna infrastruktura je v neposredni bližini – elektrika in voda sta dostopni ob parceli. Z nadstropja bodoče vile se bo ponujal čudovit razgled na morje, kar še povečuje privlačnost lokacije. Nepremičnina predstavlja odlično priložnost za naložbo, primerna za izgradnjo zasebne počitniške vile ali objekta za turistični najem, v okolju, ki združuje mir, naravo in dobro prometno povezanost z ostalo Istro. Za dodatne informacije in dogovor o ogledu nas kontaktirajte.
ID: 1225924