Parcela - KANFANAR - 145.000 EUR
| Lokacija | KANFANAR, Istrska |
| Cena € | 145.000 |
| Površina parcele | 727 m2 |
| Oddaljenost od morja | 0 m |
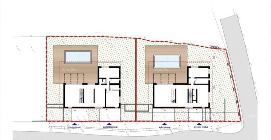
Na prodajo je gradbeno zemljišče z gradbenim dovoljenjem – Kanfanar Prodaja se gradbeno zemljišče na mirnem obrobju kraja Kanfanar, ki se nahaja na samem koncu gradbene cone. Parcela ima dostop z asfaltirane ceste, je ravna in idealna za gradnjo. Oddaljena je le 3 km od izvoza z avtoceste za Rovinj, zaradi svoje odlične geografske lege pa so vse destinacije v Istri – od severa do juga polotoka – dostopne v 40 minutah vožnje. Za parcelo je bila izdelana projektna dokumentacija za gradnjo vile s bazenom, gradbeno dovoljenje pa je že izdano, kar omogoča takojšnje začetek gradnje. Obstaja možnost nakupa tudi dodatne parcele, ki se nahaja poleg te parcele. Za dodatne informacije, prosimo, kontaktirajte: Azra +385 91 611 5706 +385 98 420 885 azra@almadominvest.com
ID: 1232471