Hiša - KANFANAR - 890.000 EUR
| Lokacija | KANFANAR, Istrska |
| Cena € | 890.000 |
| Površina | 330 m2 |
| Število sob | 6 |
| Število kopalnic | 6 |
| Oddaljenost od morja | 0 m |
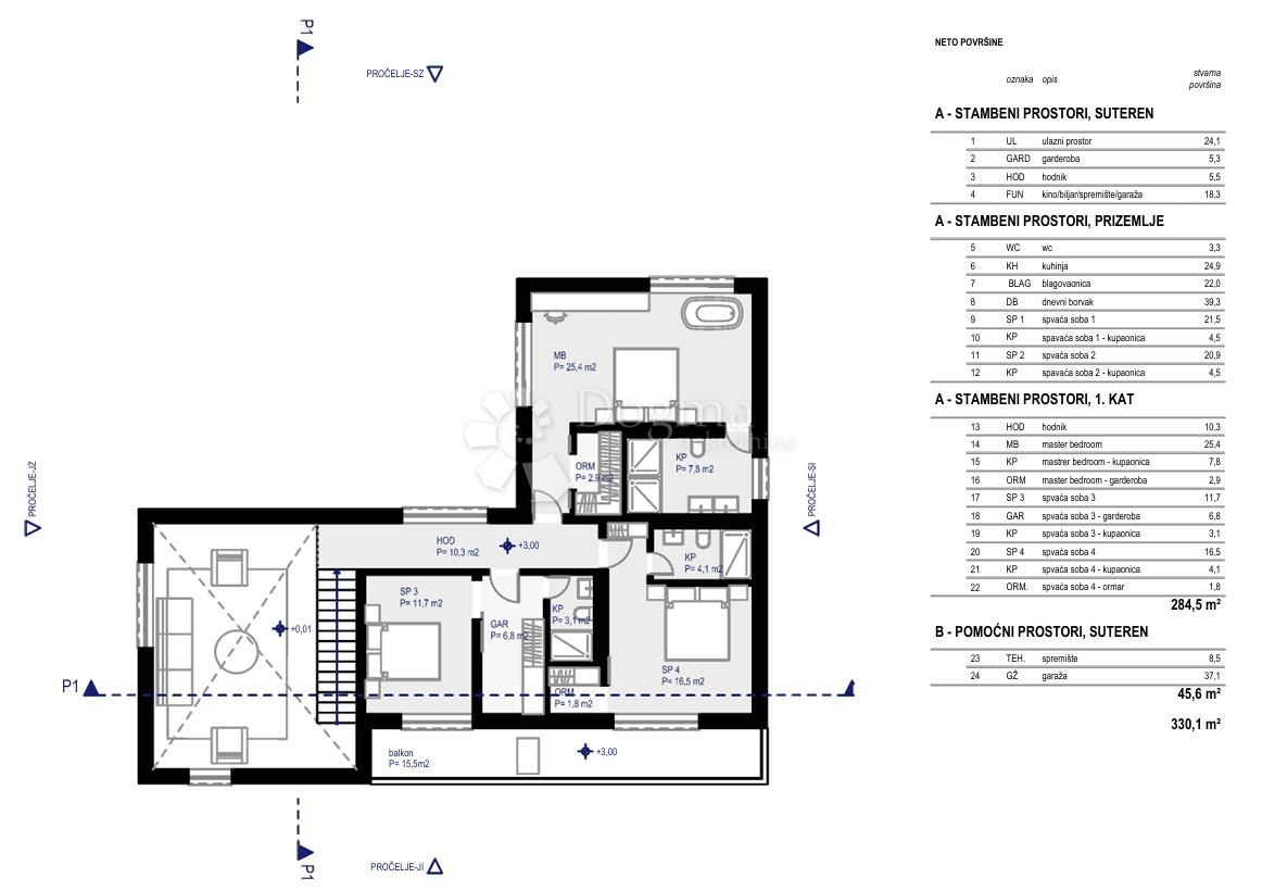
Posredujemo pri prodaji dveh čudovitih novozgrajenih vil z bazenom, v mirnem predelu Kanfanarja, v Istri. Naselje Kanfanar ponuja mirno in sproščeno vzdušje, daleč od vrveža večjih mest. Je odličen kraj za uživanje v naravi, sprehod ali kolesarjenje ter doživetje čarov podeželske Istre. Kanfanar je znan tudi po kmetijskih dejavnostih, predvsem pridelavi oljčnega olja in vinogradništvu. Zaradi rodovitne prsti in ugodnega podnebja je regija primerna za gojenje vinske trte in pridelavo visokokakovostnih vin. Obiskovalci lahko raziskujejo lokalne kleti in okusijo znana istrska vina. Predviden rok za dokončanje gradnje je konec leta 2026. Samostojna vila bo stala na ravni parceli pravilne oblike v izmeri 728 m². Vila bo sestavljena iz kleti, pritličja in nadstropja. KLET: Vhod 24,1 m², garderoba 5,3 m², hodnik 5,5 m², garaža 18,3 m². PRITLIČJE: WC 3,3 m², kuhinja 24,9 m², jedilnica 22 m², dnevna soba 39,3 m², dve spalnici (21,5 m², 20,9 m²) s kopalnico 4,5 m². PRVO NADSTROPJE: Hodnik 10,3 m², glavna spalnica 25,4 m² s kopalnico 7,8 m² in garderobno sobo 2,9 m², dve prostorni spalnici z lastno kopalnico in garderobo. Možnost prodaje del v obstoječem stanju z ustrezno prilagoditvijo cene. Za vse dodatne informacije ali dogovor za ogled me lahko kontaktirate. ILIJA RAČUNICA Mob./Whatsapp: +385 91 4957 567 E-pošta: ilija.racunica@dogma-nekretnine.com
ID: 1169545