Hiša - KALDANIJA - 310.000 EUR
| Lokacija | KALDANIJA, BUJE, Istrska |
| Cena € | 310.000 |
| Površina | 109 m2 |
| Število sob | 5 |
| Oddaljenost od morja | 3000 m |
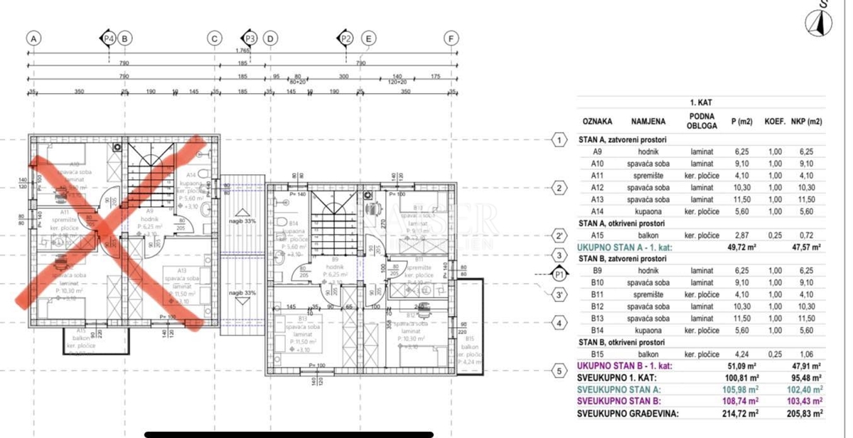
Kaiser Immobilien predstavlja stanovanje v dvojčku v majhni vasici v bližini Savudrije, blizu Portoroža in Slovenije. Umag je oddaljen 6 km, Savudrija 7 km, Portorož 13 km, morje pa 3 km. Stanovanje B predstavlja polovico dvojčka v gradnji s površino 109 m2 (105 m2 stanovanja + 4 m2 balkona). Neto uporabna površina stanovanja je 103 m2. Stanovanje ima v pritličju kuhinjo s površino 12 m2, dnevno sobo s površino 21 m2, kopalnico s površino 5 m2 in shrambo s površino 5 m2. V prvem nadstropju so 3 spalnice s površino 9 m2, 10 m2 in 12 m2, kopalnica s površino 6 m2 in shramba s površino 4 m2. V prvem nadstropju je balkon s površino 4 m2. Izjemno praktična in funkcionalna razporeditev bo zadovoljila vse potrebe za vsakdanje življenje ali turistično bivanje. Nepremičnina se bo kmalu začela graditi, prodaja se na ključ, predviden zaključek del pa je konec leta 2026. Kupec nepremičnine ima možnost, da se s prodajalcem dogovori o vseh podrobnostih glede ureditve dvojčka ali stanovanja, dinamike plačila, kar omogoča veliko fleksibilnosti in možnosti prilagoditve glede na želje kupca. Kupcu pripada tudi del vrta stanovanja. Odlična priložnost za nakup nepremičnine po pošteni ceni, ki jo je mogoče uporabiti za stanovanje ali turistični najem. Posredniška provizija za kupca znaša 3 % + DDV. Provizija krije vse storitve, povezane z nakupom, in se plača le v primeru nakupa nepremičnine, ob sklenitvi prvega pravnega posla. Za dodatne informacije in za ogled nepremičnine nas kontaktirajte: Damir Mlacović e-pošta: damir@kaiser-immobilien.hr tel: +385-98-339-933
ID: 1253980