Parcela - GRAČIŠĆE - 74.000 EUR
| Lokacija | GRAČIŠĆE, Istrska |
| Cena € | 74.000 |
| Površina | 1375 m2 |
| Oddaljenost od morja | 0 m |
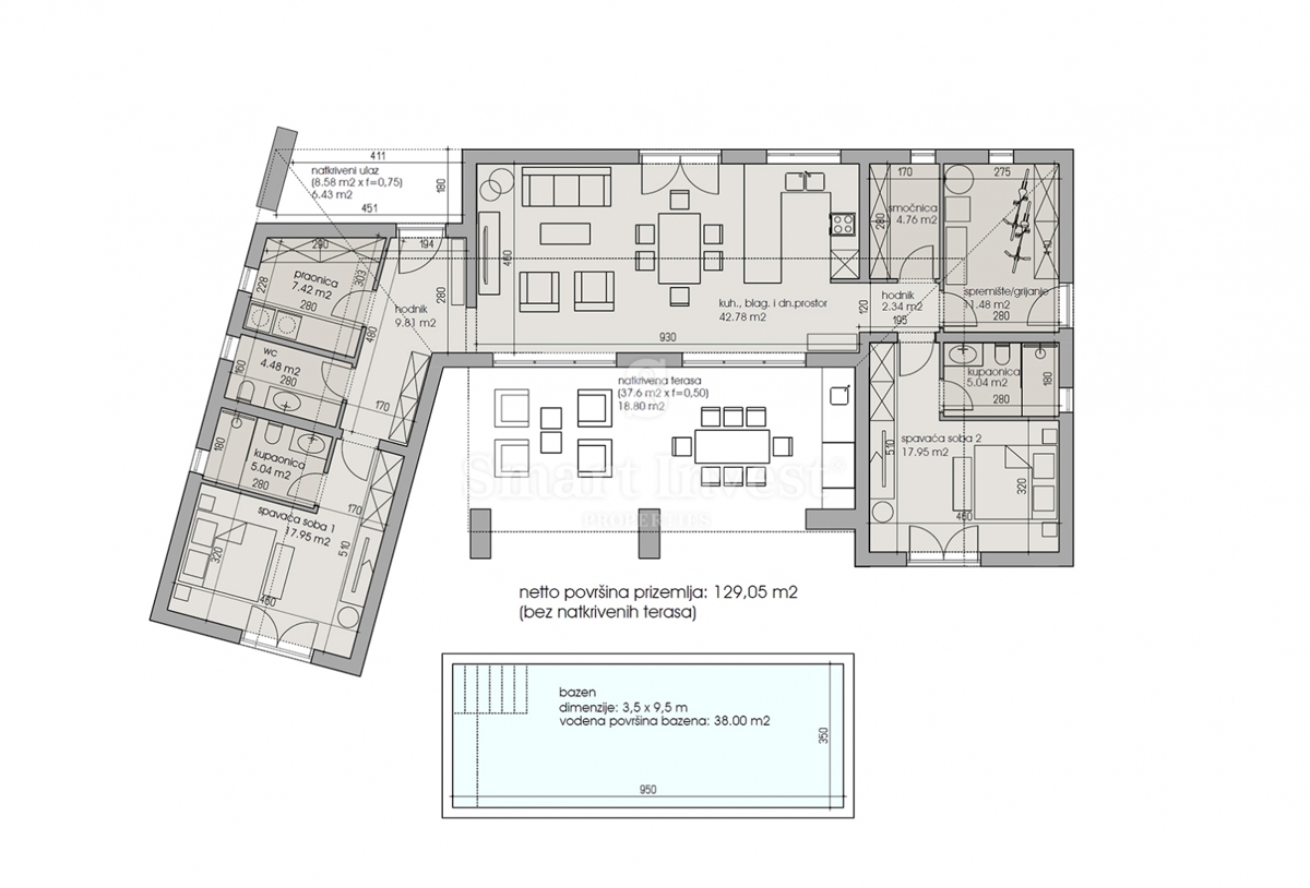
NAPRODAJ, ZAZIDLJIVO ZEMLJIŠČE Z IDEJNIM PROJEKTOM, PAZIN, 1.375 m² Naprodaj je zazidljivo zemljišče z izdelanim idejnim projektom moderne hiše v mediteranskem slogu. Projekt združuje sodobno arhitekturo in tradicionalne elemente z uporabo naravnih materialov, kot so kamen, les in beton. Velike steklene površine in preproste linije omogočajo popolno vizualno povezavo notranjosti s pokrajino in načrtovanim bazenom. Vloge za pridobitev posebnih pogojev priključitve so že oddane. Kupcu je na voljo tudi storitev pridobitve gradbenega dovoljenja in spremljanja gradnje. V tem primeru se plačilo končane hiše izvaja po fazah gradnje. IDEJNI PROJEKT – OBLIKOVANJE Načrtovana hiša ima odprte prostore, veliko naravne svetlobe in terase, ki se povezujejo z okolico, kar jo naredi idealno za mirno in udobno bivanje. RAZPOREDITEV (PO IDEJNEM PROJEKTU) Pritličje: Odprt dnevni prostor s kuhinjo in jedilnico Gospodarski prostor s straniščem Spalnica z lastno kopalnico Velike drsne steklene stene proti pokriti terasi in bazenu Nadstropje: Dve spalnici, vsaka z lastno kopalnico Predvideni materiali in zaključna obdelava: Parket v bivalnih prostorih Keramične ploščice v kopalnicah NAČRTOVANE LASTNOSTI IN OPREMA Ogrevanje in hlajenje: toplotna črpalka, talno ogrevanje v kopalnicah, fan-coil enote Kamin: odprti kamin v dnevni sobi Bazen: 38 m², kamniti rob, mozaična obloga, kamnita terasa za sončenje Oddaljenost od morja: 28 km Priložnost! Cena: 75.000 EUR. Za dodatne informacije pokličite +385 99 320 0011.
ID: 1259430