Parcela - GARICA - 89.000 EUR
| Lokacija | GARICA, KRK, Primorsko-goranska |
| Cena € | 89.000 |
| Površina | 484 m2 |
| Oddaljenost od morja | 0 m |
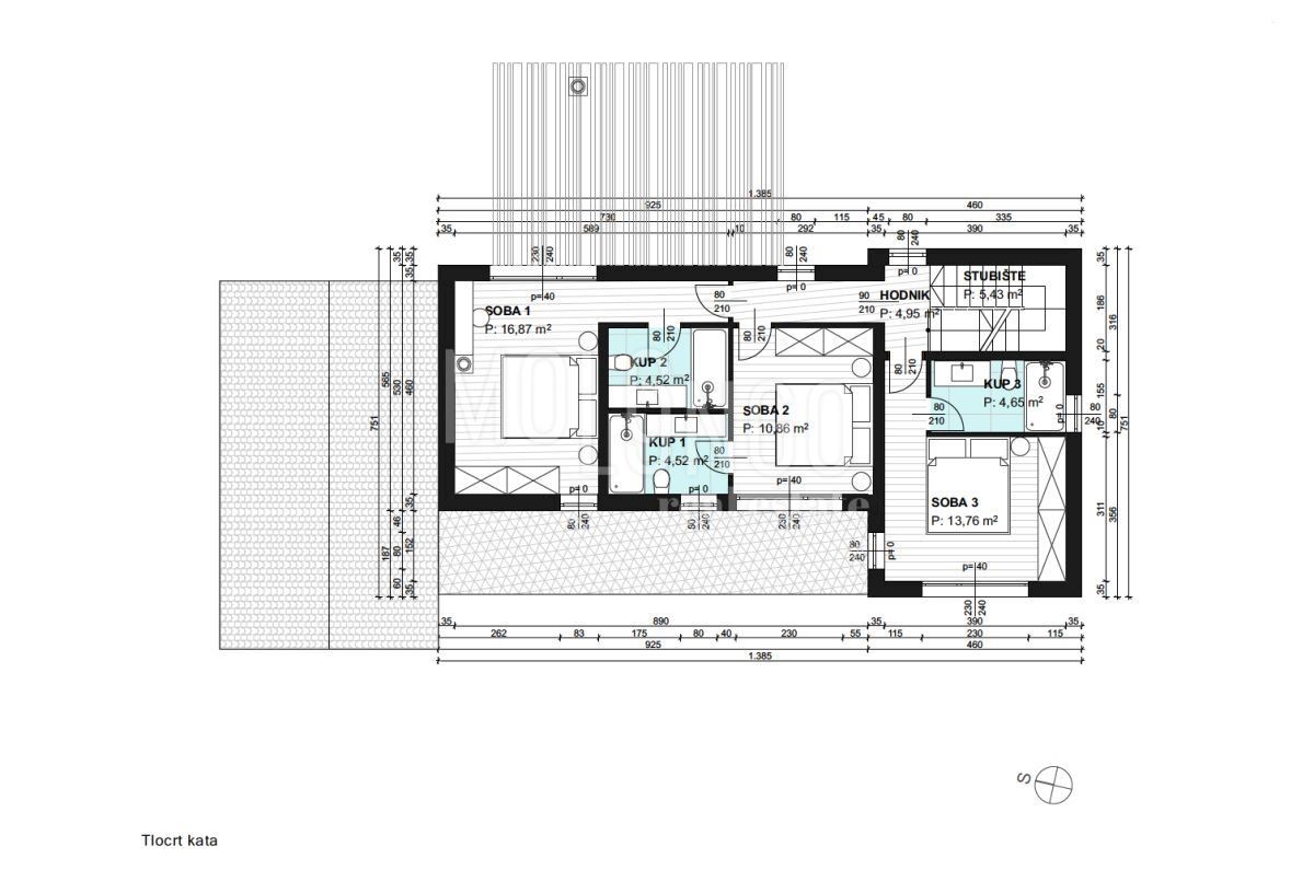
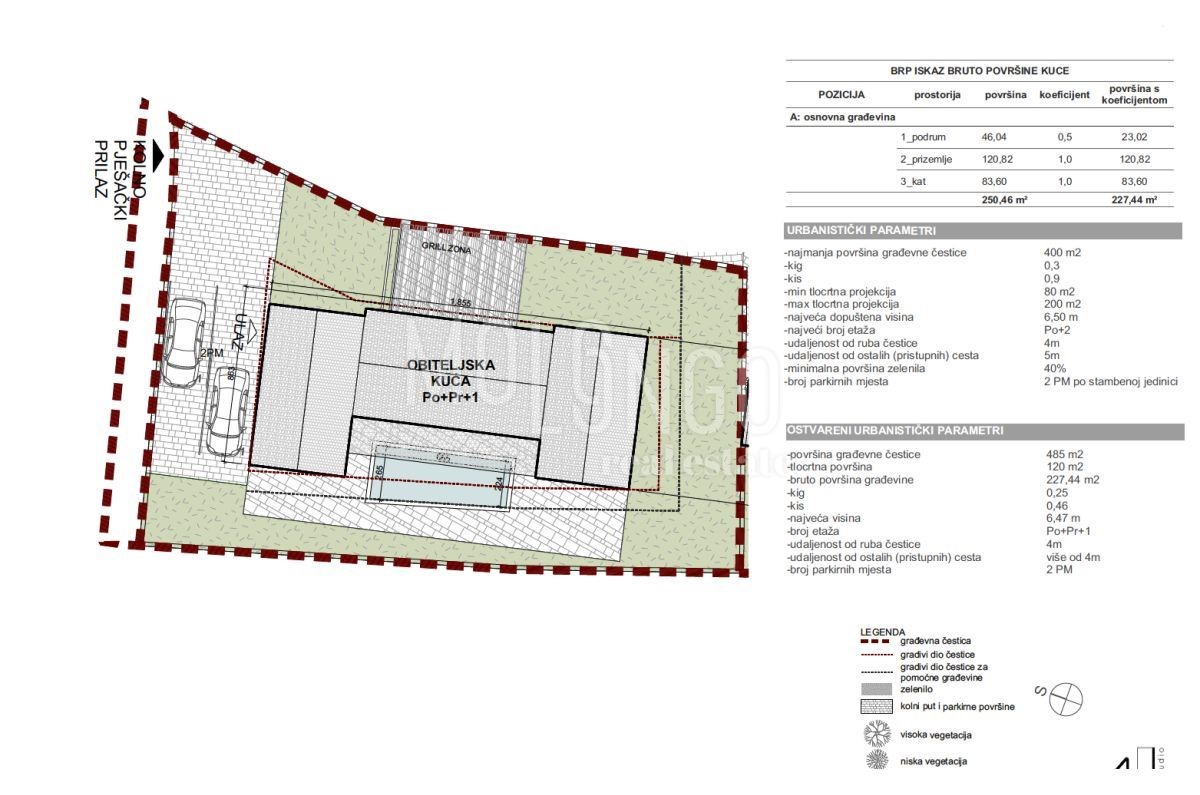
Zemljišče obsega skupno površino 484 m2 in zagotavlja dovolj prostora za udobno gradnjo. Pomembno je omeniti, da je zemljišče že oddano z dokumentacijo, ki olajša in pohitri postopek pridobitve gradbenega dovoljenja. To prihrani čas in vire, potrebne za načrtovanje in odobritev gradnje. Glede na razpoložljivo dokumentacijo je že predvidena gradnja atraktivne urbane mediteranske vile. Vila bo obsegala 227,44 m2 in bo opremljena z bazenom, wellnessom in vrtom, ki bo obogaten z mediteranskimi rastlinami. To daje bodočemu lastniku priložnost, da uživa v luksuznem bivalnem prostoru z dodatnimi ugodnostmi. Nahaja se na mirni lokaciji obdani z zelenjem in družinskimi vilami. Od morja in centra Vrbnika je oddaljen 4 km, kar zagotavlja idealno razmerje med zasebnostjo in bližino pomembnih vsebin in lepot otoka. Za vse informacije kontaktirajte agenta
ID: 1030974