Parcela - GARICA - 130.000 EUR
| Lokacija | GARICA, KRK, Primorsko-goranska |
| Cena € | 130.000 |
| Površina | 1050 m2 |
| Oddaljenost od morja | 5000 m |
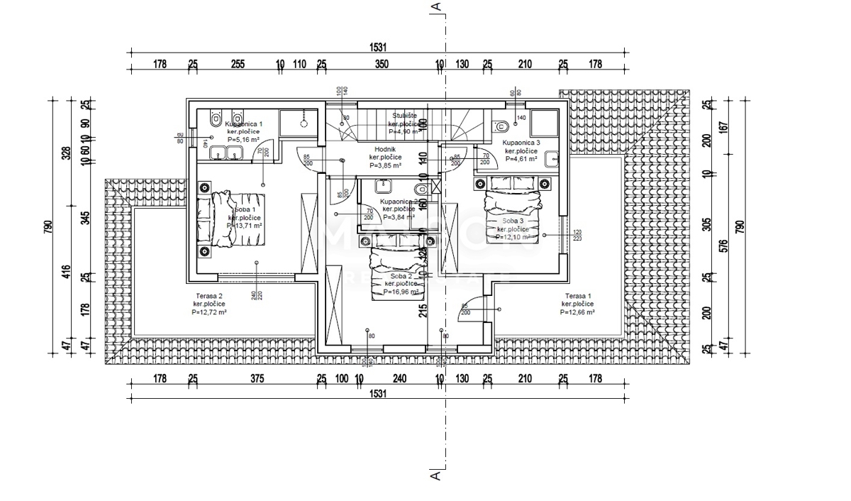
Na prodaju je građevinsko zemljište površine 1.050 m² s pravomoćnom građevinskom dozvolom i plaćenim komunalnim doprinosima, smješteno na izrazito mirnoj lokaciji u centralnom dijelu otoka Krka, u okolici Vrbnika. Riječ je o lokaciji koja nije namijenjena svima, već kupcima koji svjesno traže mir, privatnost i odmak od turističke gužve, a kojima je važniji način življenja nego blizina mora. Zemljište je uredno održavano, pravilnog oblika, s osiguranim pristupnim putem te kompletnom infrastrukturom koja se nalazi neposredno uz parcelu. Centralna pozicija na otoku omogućuje jednostavan i brz pristup svim dijelovima Krka, dok sama lokacija jamči tišinu, zelenilo i ugodno okruženje tijekom cijele godine. Vlasništvo je uredno, dokumentacija čista, a zahvaljujući ishođenoj dozvoli gradnja može započeti odmah, bez dodatnih administrativnih zastoja. Cijena zemljišta vrlo je konkurentna s obzirom na lokaciju, spremnost za gradnju i riješenu dokumentaciju. Prema važećoj građevinskoj dozvoli predviđena je izgradnja samostojeće obiteljske kuće s bazenom, raspoređene na prizemlje i kat. U prizemlju je projektiran ulazni hodnik, prostrani dnevni boravak povezan s kuhinjom i blagovaonicom, WC, vešeraj te strojarnica i spremište, uz izlaz na dvije terase koje povezuju unutarnji i vanjski prostor. Na katu su predviđene tri spavaće sobe, tri kupaonice, hodnik i stubište te dvije terase koje osiguravaju dodatnu privatnost i komfor. Projekt je osmišljen kao funkcionalna i kvalitetna obiteljska kuća za cjelogodišnje stanovanje, ali ujedno predstavlja i vrlo dobru investicijsku priliku.
ID: 1254932