Hiša - FUŽINE - 540.000 EUR
| Lokacija | FUŽINE, Primorsko-goranska |
| Cena € | 540.000 |
| Površina | 424 m2 |
| Število sob | 13 |
| Površina parcele | 838 m2 |
| Število kopalnic | 8 |
| Oddaljenost od morja | 25000 m |
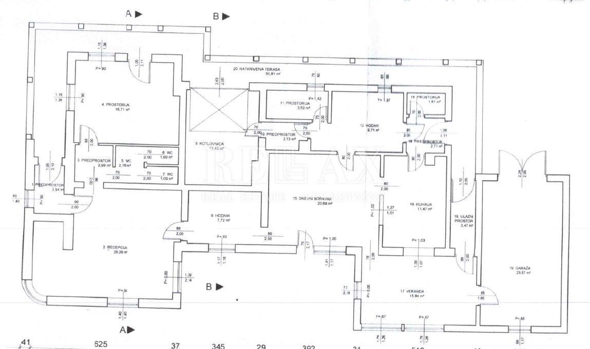
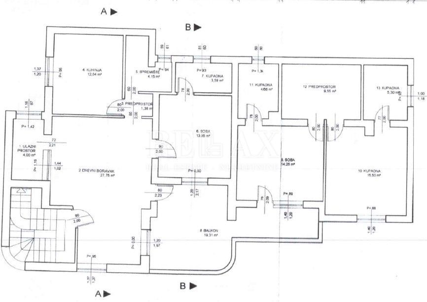
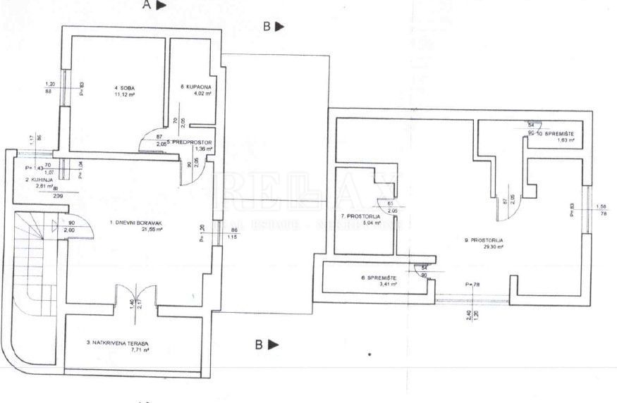
Naprodaj je samostojna hiša s skupno bivalno površino 424,26 m², ki se nahaja v mirnem in zelenem delu Fužin – idealna za vse, ki iščejo tišino, naravo in priložnost za naložbo v gorski turizem. Nepremičnina obsega tri etaže – pritličje, prvo nadstropje in visoko mansardo – ter ponuja izjemen potencial za preureditev po lastnih željah in potrebah. Parcela v velikosti 838 m² nudi dovolj prostora za sprostitev ali dodatne vsebine. Hiša je zasnovana v skladu s tradicionalno arhitekturo Gorskega kotarja, s poudarkom na funkcionalnosti in udobnem bivanju v gorskem okolju. V hiši je pet prostornih spalnic, kar osem sanitarij ter več hodnikov in skupnih prostorov, ki jih odlikuje naravna svetloba zaradi velikih odprtin. Objekt je trenutno v visoki fazi surove gradnje, kar pomeni, da so inštalacije za vodo, elektriko in centralno ogrevanje že izvedene, novi lastnik pa lahko dokonča ureditev po lastnem konceptu. Hiša je jugozahodno orientirana in ponuja odprt pogled na zelenje in gozdno pokrajino, kar zagotavlja popolno zasebnost in mir. Lokacija je izjemno privlačna – le 1 km od centra Fužin in znanega jezera Bajer, v bližini pa so tudi druge naravne znamenitosti, kot sta jama Vrelo ter jezeri Lepenica in Potkoš. Ta nepremičnina je idealna za stalno bivanje, družinsko počitniško hišo ali kot naložba v turistične nastanitve. Priložnost za nakup hiše s karakterjem in potencialom v enem najbolj zelenih delov Hrvaške.
ID: 1236156