Stanovanje - FAŽANA - 290.174 EUR
| Lokacija | FAŽANA, Istrska |
| Cena € | 290.174 |
| Površina | 72 m2 |
| Število sob | 2 |
| Število kopalnic | 2 |
| Oddaljenost od morja | 0 m |
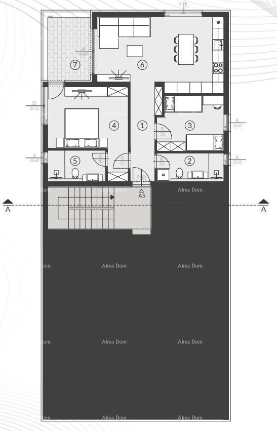
Novo v ponudbi! V čudoviti Fažani ponujamo sodobne stanovanja v novogradnji s bazenom, ki so del atraktivnega projekta, ki obsega štiri stavbe s skupno 23 stanovanji različnih velikosti in razporeditev. Projekt se nahaja na odlični lokaciji – mirno okolje v bližini morja in vseh pomembnih vsebin. Stanovanje A5, velikosti 72,24 m2, se nahaja v 2. nadstropju stavbe s 3 etažami. Stanovanje je sestavljeno iz vhoda, garderobe, dnevne sobe s kuhinjo in jedilnico, 2 spalnic, 2 kopalnic in terase. Oprema in standard: Talno ogrevanje v kopalnicah. Visokokakovostne keramične ploščice. PVC stavbno pohištvo francoskega tipa z roletami in komarniki. Kopalniška oprema priznanih proizvajalcev. Klimatska naprava. Vhodna vrata proti vlomu. Možnost izbire končne talne obloge – keramika, parket ali laminat v spalnicah. 1 parkirno mesto vključeno v ceno. Priprava za polnilne postaje za električna vozila na vsakem parkirnem mestu. Začetek del je predviden za začetek leta 2026, zaključek pa se pričakuje do leta 2028. Ta nepremičnina je idealna za celoletno bivanje, počitek ali kot naložba za turistični najem. Za dodatne informacije, prosimo, kontaktirajte: Azra: +385 91 611 5706 +385 98 420 885 azra@almadominvest.com
ID: 1229711