Stanovanje - FAŽANA - 217.566 EUR
| Lokacija | FAŽANA, Istrska |
| Cena € | 217.566 |
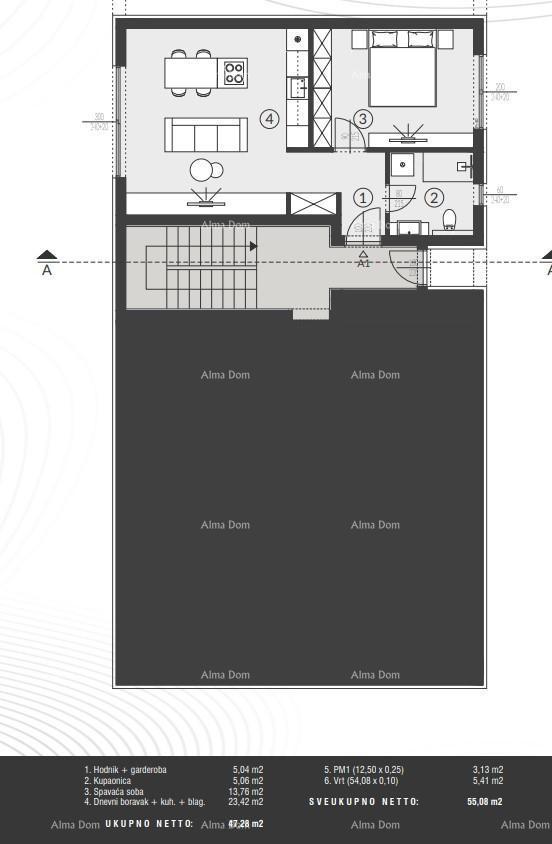
| Površina | 47 m2 |
| Število sob | 1 |
| Površina parcele | 54 m2 |
| Število kopalnic | 1 |
| Oddaljenost od morja | 0 m |
Novo v ponudbi! V čudoviti Fažani vam ponujamo moderna stanovanja v novogradnji z bazenom, ki se nahaja v okviru atraktivnega projekta, ki ga sestavljajo štirje objekti s skupno 23 stanovanji različnih velikosti in razporeditev. Projekt se nahaja na odlični lokaciji - mirno okolje v bližini morja in vseh pomembnih ugodnosti. Apartma A1 se nahaja v pritličju trinadstropne stavbe. Stanovanje obsega vhodno dvorano, garderobo, dnevno sobo s kuhinjo in jedilnico, spalnico, kopalnico. Vrt 5,41 m² – idealen za sprostitev in uživanje. Oprema in standard: Talno ogrevanje v kopalnicah. Visokokakovostne keramične ploščice. PVC stavbno pohištvo francoskega tipa z žaluzijami in komarniki. Kopalniška oprema priznanih proizvajalcev. Klimatska naprava. Vhodna vrata proti vlomu. Možnost izbire končne talne obloge - keramika, parket ali laminat v spalnicah. 1 parkirno mesto vključeno v ceno. Nepremičnina je idealna za celoletno bivanje, počitnice ali kot naložba za turistični najem. Za dodatne informacije se obrnite na: Azra: +385 91 611 5706 +385 98 420 885 azra@almadominvest.com
ID: 1244983