Stanovanje - DUGI RAT - 216.866 EUR
| Lokacija | DUGI RAT, Splitsko-dalmatinska | 
| Cena € | 216.866 | 
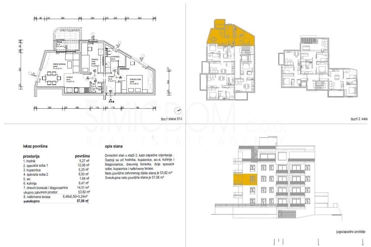
| Površina | 57 m2 | 
| Število sob | 2 | 
| Število kopalnic | 1 | 
| Blizu plaže | DA | 
Prodamo zelo privlačno stanovanje na mirni lokaciji v majhnem mestu blizu Omiša. Stanovanje se nahaja v drugem nadstropju stavbe s skupno petimi nadstropji (pritličje in štiri nadstropja). Neto uporabna površina stanovanja je 57,07 m2 in je sestavljena iz hodnika, dveh spalnic, kopalnice, dodatnega stranišča in kuhinje z dnevno sobo. Na voljo je tudi čudovita pokrita terasa s čudovitim razgledom na morje. Poleg vrhunske opreme stavbe in izbire najkakovostnejših materialov (talno ogrevanje v kopalnicah, klimatska naprava v spalnicah in dnevni sobi, skrbno izbrana keramika, stavbno pohištvo in vrata) stavbo odlikuje tudi zelo moderna in funkcionalna zasnova. Ker je investitor pravna oseba, ni 3-odstotnega davka na nepremičnine. Vse potrebne ugodnosti, kot so trgovine ali plaža, so oddaljene deset minut hoje, dokončanje pa je predvideno za jesen 2026. Lastništvo je urejeno. Standardna poslovna politika naše nepremičninske agencije je, da po podpisu standardne pogodbe o posredovanju s stranko organizira ogled nepremičnine. Podpis te pogodbe je osnovni pogoj za nadaljnje aktivnosti v zvezi z nakupom nepremičnine, ki temeljijo na Zakonu o nepremičninskem posredovanju in Zakonu o varstvu podatkov.
ID: 1229019