Parcela - DONJI STUPNIK - 220.000 EUR
| Lokacija | DONJI STUPNIK, STUPNIK, Zagrebška |
| Cena € | 220.000 |
| Površina | 803 m2 |
| Bližina prevoza | DA |
| Oddaljenost od morja | 0 m |
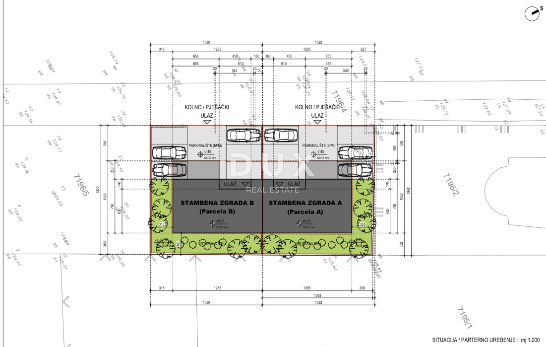
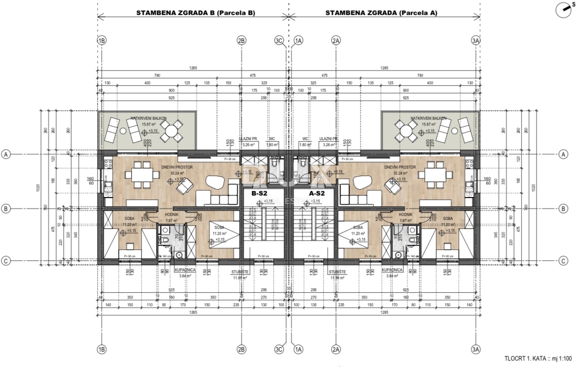
ZAGREBAČKA, DONJI STUPNIK - Odlična naložba - gradbeno zemljišče s projektom in dovoljenjem! Naprodaj sta dve povezani gradbeni parceli s skupno površino 579 m², ki imata pridobljena in veljavna gradbena dovoljenja za gradnjo dveh pol-samostojnih stanovanjskih objektov. Projekt predvideva skupno šest udobnih stanovanj, vsako v velikosti približno 70 m², oziroma skupno 420 m² neto bivalne površine. Gre za projekt, ki je pripravljen za takojšnjo izvedbo, zaradi česar je nepremičnina idealna za investitorje in vse, ki se želijo izogniti dolgotrajnemu postopku pridobivanja dovoljenj in papirjev. Poleg gradbenih parcel cena vključuje dodatnih 224 m² sorazmernega deleža na dostopni cesti, s čimer se skupna površina, prenesena v lastništvo, poveča na 803 m². Dostopna cesta je že urejena in funkcionalna; položeni so vodovodni priključki, cevi za odvodnjavanje meteorne vode in priprava za telefonske inštalacije. Poleg tega je cesta zaključena z drobljenim asfaltom, vzdolž nje pa so nameščeni tudi električni drogovi, vključno s solarno razsvetljavo. Parceli se nahajata na blagem pobočju nad dostopno cesto, ki omogoča odprt in neoviran pogled na Sljeme in Žumberačko goro. Lokacija je izjemno praktična za vsakdanje življenje, saj se v neposredni bližini nahajajo avtobusna postaja, šola, vrtec, zdravstveni dom in nakupovalni center. Cena vključuje dve načrtovani gradbeni parceli, solastniški delež na dostopni cesti, projektno dokumentacijo, pravnomočna gradbena dovoljenja in popolno pripravo infrastrukture v dostopni cesti, vključno z oskrbo z vodo, meteorno kanalizacijo in telefonijo, ter urejeno cesto z nameščenimi električnimi drogovi. Ponudba ne vključuje stroškov priključkov na komunalne sisteme, kot so voda, elektrika in kanalizacija, niti plačila komunalnih in vodnih prispevkov. Ta nepremičnina predstavlja odlično priložnost za gradnjo brez dodatnega čakanja – projekt je pripravljen, dokumentacija je urejena, preostane le še začetek gradnje. Spoštovane stranke, provizija agencije se obračunava v skladu s Splošnimi pogoji poslovanja: www.dux-nekretnine.hr/opci-uvjeti-poslovanja
ID: 1225273