Stanovanje - CRES - 430.000 EUR
| Lokacija | CRES, Primorsko-goranska |
| Cena € | 430.000 |
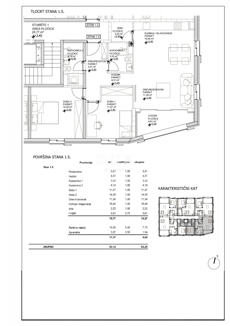
| Površina | 93 m2 |
| Število sob | 3 |
| Število kopalnic | 2 |
| Bližina prevoza | DA |
| Oddaljenost od morja | 50 m |
OTOK CRES, MESTO CRES - Stanovanje z 2 spalnicama + dnevno sobo v vrhunski novogradnji na vrhunski lokaciji, središče mesta 50 metrov od morja. Prodamo dvosobno stanovanje z dnevno sobo z oznako 1,5 v prvem nadstropju vrhunske novogradnje stanovanjske stavbe na fenomenalni in edinstveni lokaciji. Stanovanje je sestavljeno iz vhodne dvorane, utilityja, gostovskega stranišča, kopalnice, odprtega dnevnega prostora s kuhinjo in jedilnico z izhodom na ložo ter dveh spalnic, s skupno neto bivalno površino 75,77 m2. Stanovanju pripada eno garažno parkirno mesto v izmeri 14,30 m2 ter shramba v garaži v izmeri 3,07 m2. Ta čudovita stanovanjsko-poslovna stavba z dvigalom in podzemno garažo je v prvi fazi gradnje in je zasnovana za 14 stanovanjskih enot z enosobnimi in dvosobnimi stanovanji. Stanovanja bodo prodana na ključ, oprema stanovanj bo na visoki ravni, vključno s talnim ogrevanjem, inverterskimi klimatskimi napravami, prvovrstnimi talnimi oblogami in parketi, kopalnicami z walk-in kabino in visokokakovostno sanitarno opremo priznanih proizvajalcev. Redkost v ponudbi, edinstvena lokacija. Spoštovane stranke, agencijska provizija se obračunava v skladu s Splošnimi pogoji poslovanja www.dux-nekretnine.hr/opci-uvjeti-poslovanja
ID: 1247550