Stanovanje - CRES - 405.000 EUR
| Lokacija | CRES, Primorsko-goranska |
| Cena € | 405.000 |
| Površina | 90 m2 |
| Število sob | 3 |
| Število kopalnic | 2 |
| Bližina prevoza | DA |
| Oddaljenost od morja | 50 m |
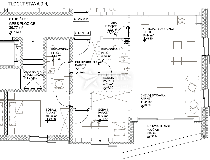
OTOK CRES, MESTO CRES – vrhunska novogradnja v strogem centru, 50 m od morja Na izjemni in redko dostopni lokaciji v samem srcu Cresa, le 50 metrov od morja, se gradi moderna stanovanjsko-poslovna stavba z dvigalom in podzemno garažo. Stanovanje 3.4: Stanovanje z oznako 3.4 ima funkcionalno razporeditev in je sestavljeno iz: -predsobe -hodnika -2 kopalnice -2 spalnice -dnevne sobe -kuhinje in jedilnice -shrambe -strešne terase Stanovanju v lasti pripada eno garažno parkirno mesto kot tudi shramba v garaži, kar dodatno povečuje udobje in praktičnost bivanja. Stavba je sodobno zasnovana in obsega skupaj 14 stanovanjskih enot, funkcionalna enosobna in dvosobna stanovanja. Stanovanja se prodajajo po principu »na ključ«, z opremo visoke kakovosti, ki vključuje: -talno ogrevanje -inverterske klimatske naprave -vrhunske talne obloge in parket -moderne walk-in kopalnice -sanitarno opremo priznanih proizvajalcev Kupec ne plača davka na promet nepremičnin. Lokacija v strogem mestnem središču zagotavlja neposredno bližino vseh vsebin – rive, plaž, trgovin in restavracij – kar to nepremičnino naredi izjemno privlačno tako za celoletno bivanje kot tudi kot varno investicijo za turistični najem. Ta nepremičnina predstavlja pravo redkost na trgu in odlično priložnost za življenje ali investicijo na eni izmed najbolj zaželenih lokacij na otoku Cresu. Za več informacij in dogovor o ogledu kontaktirajte agenta neposredno.
ID: 1262613