Stanovanje - CRES - 335.000 EUR
| Lokacija | CRES, Primorsko-goranska |
| Cena € | 335.000 |
| Površina | 55 m2 |
| Število sob | 2 |
| Oddaljenost od morja | 0 m |
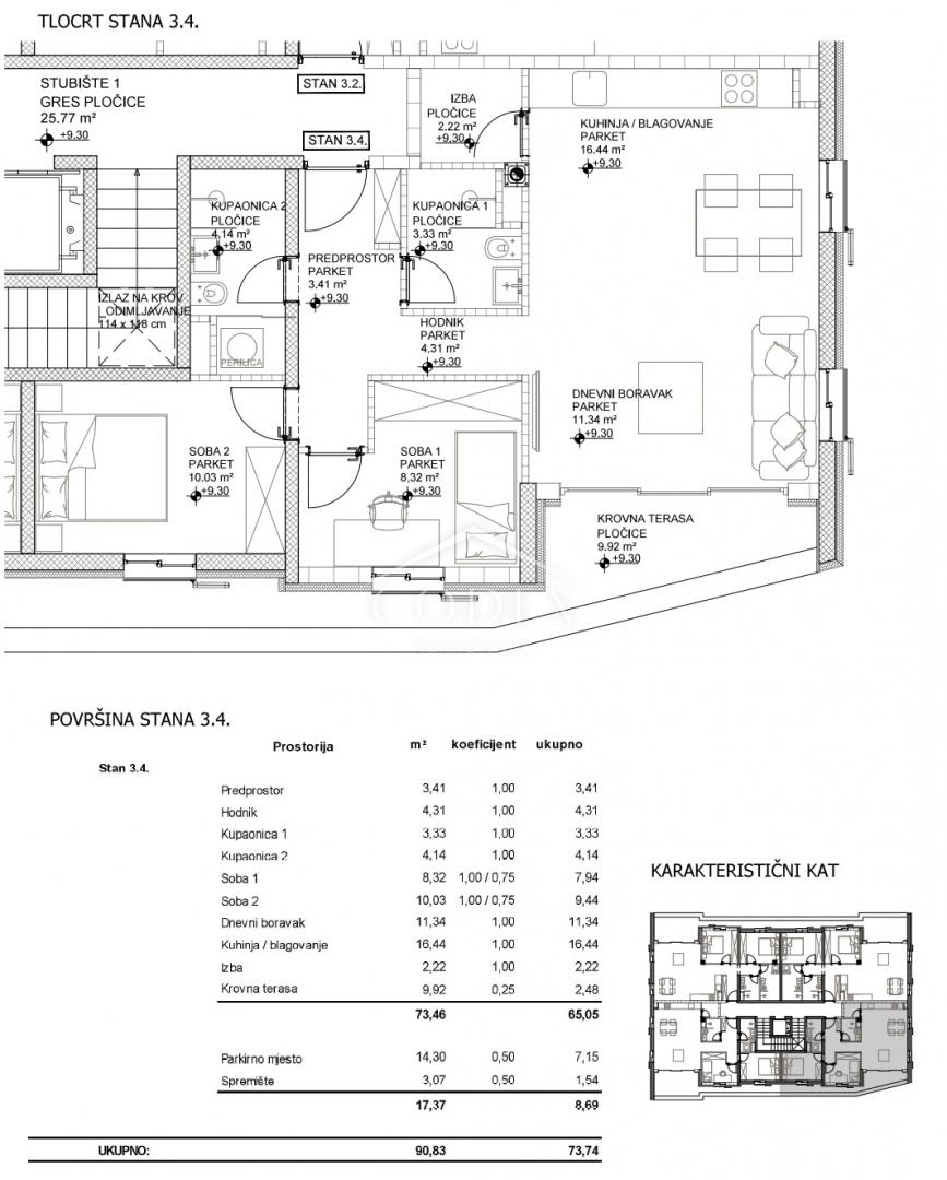
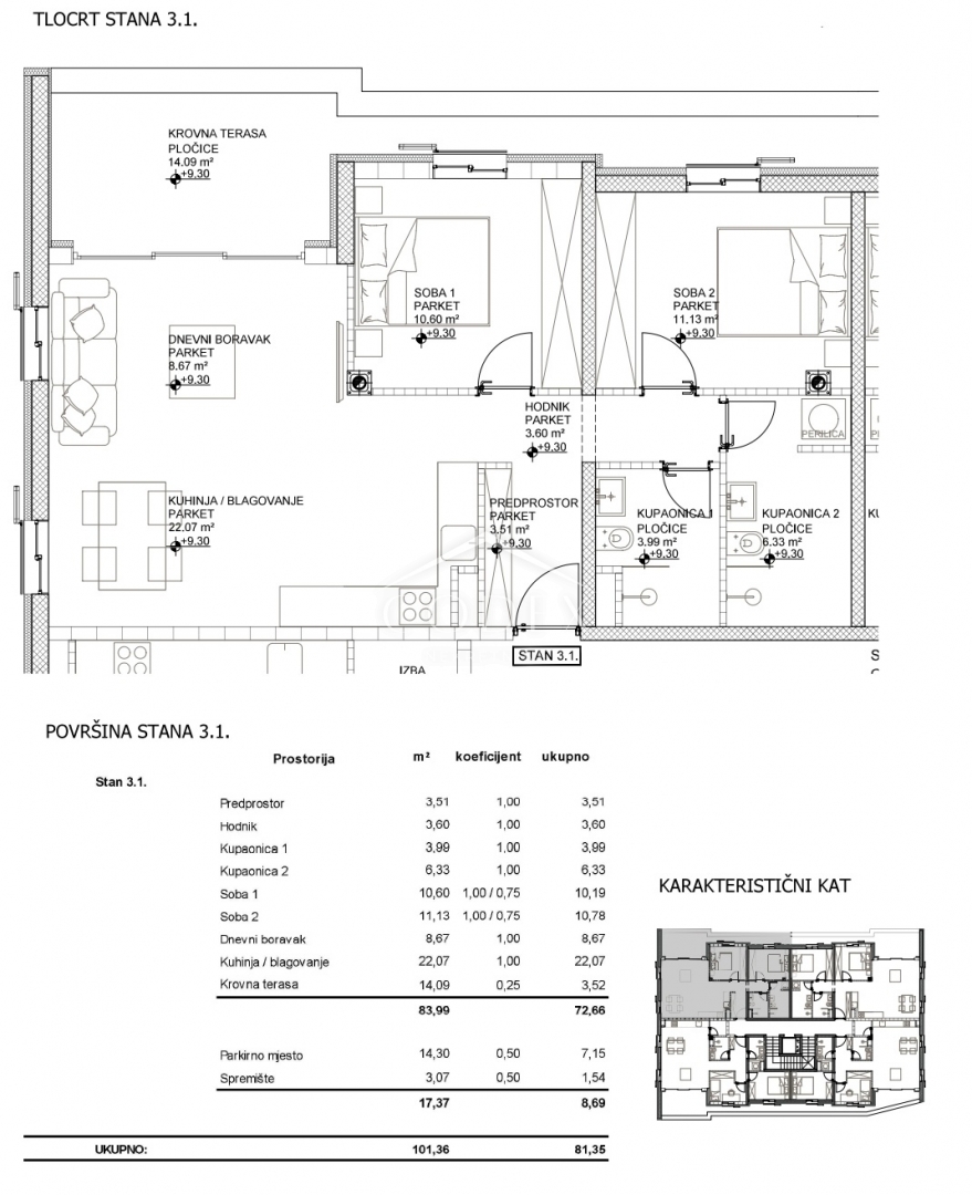
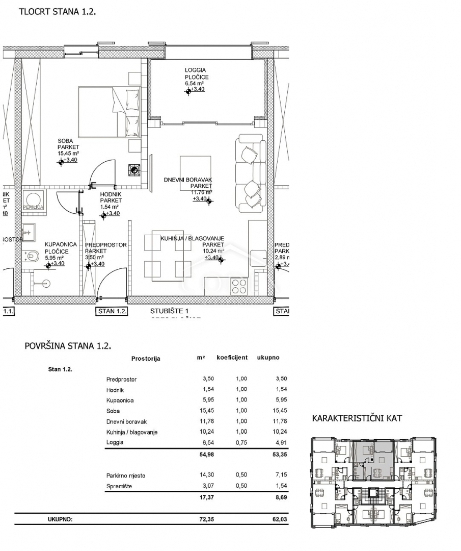
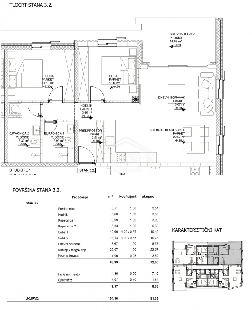
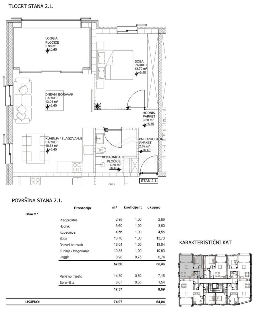
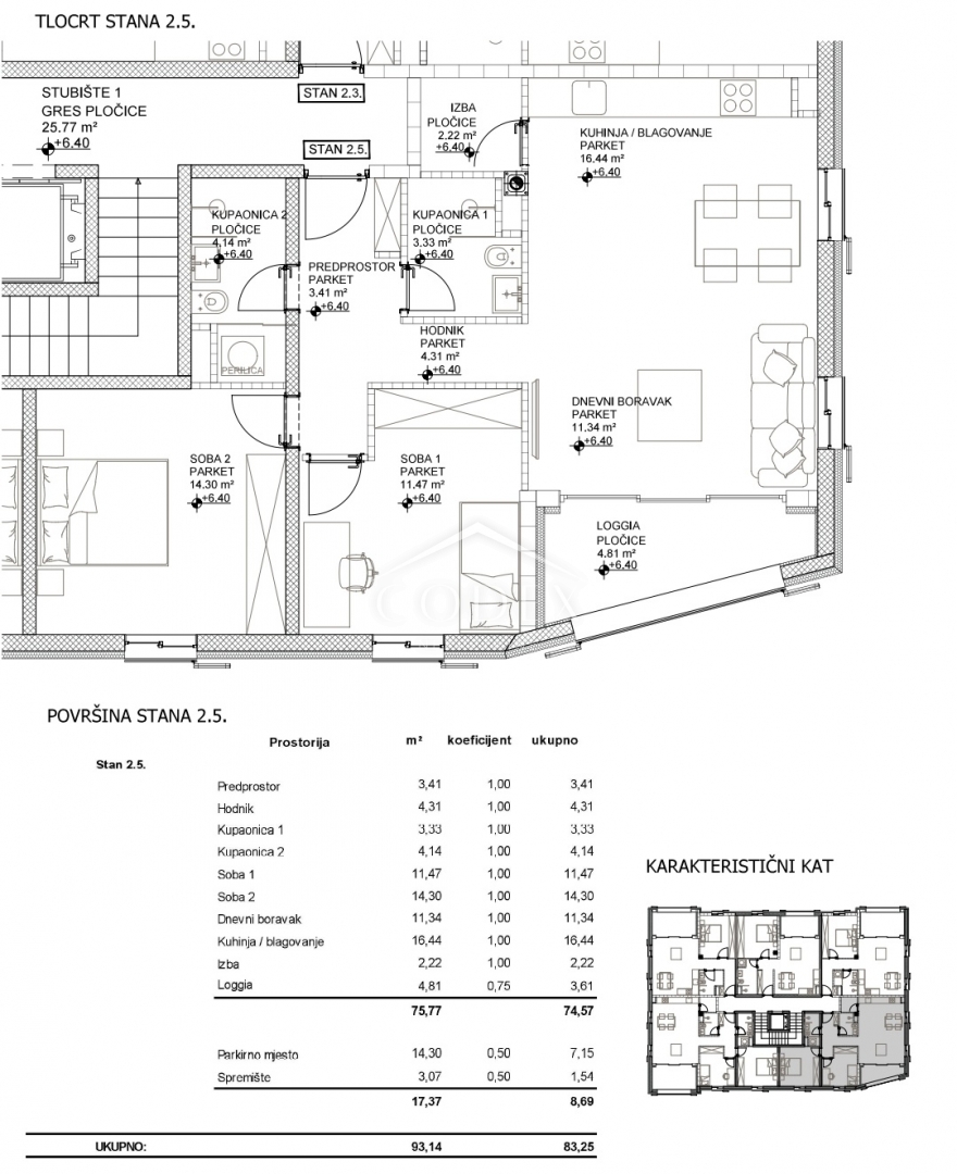
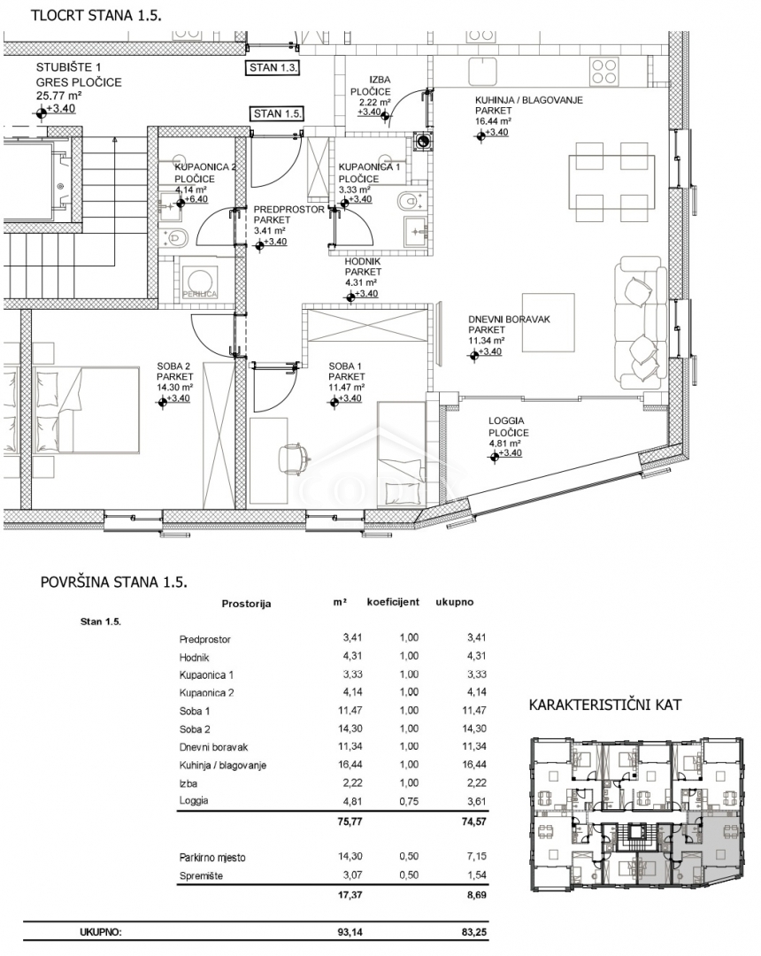
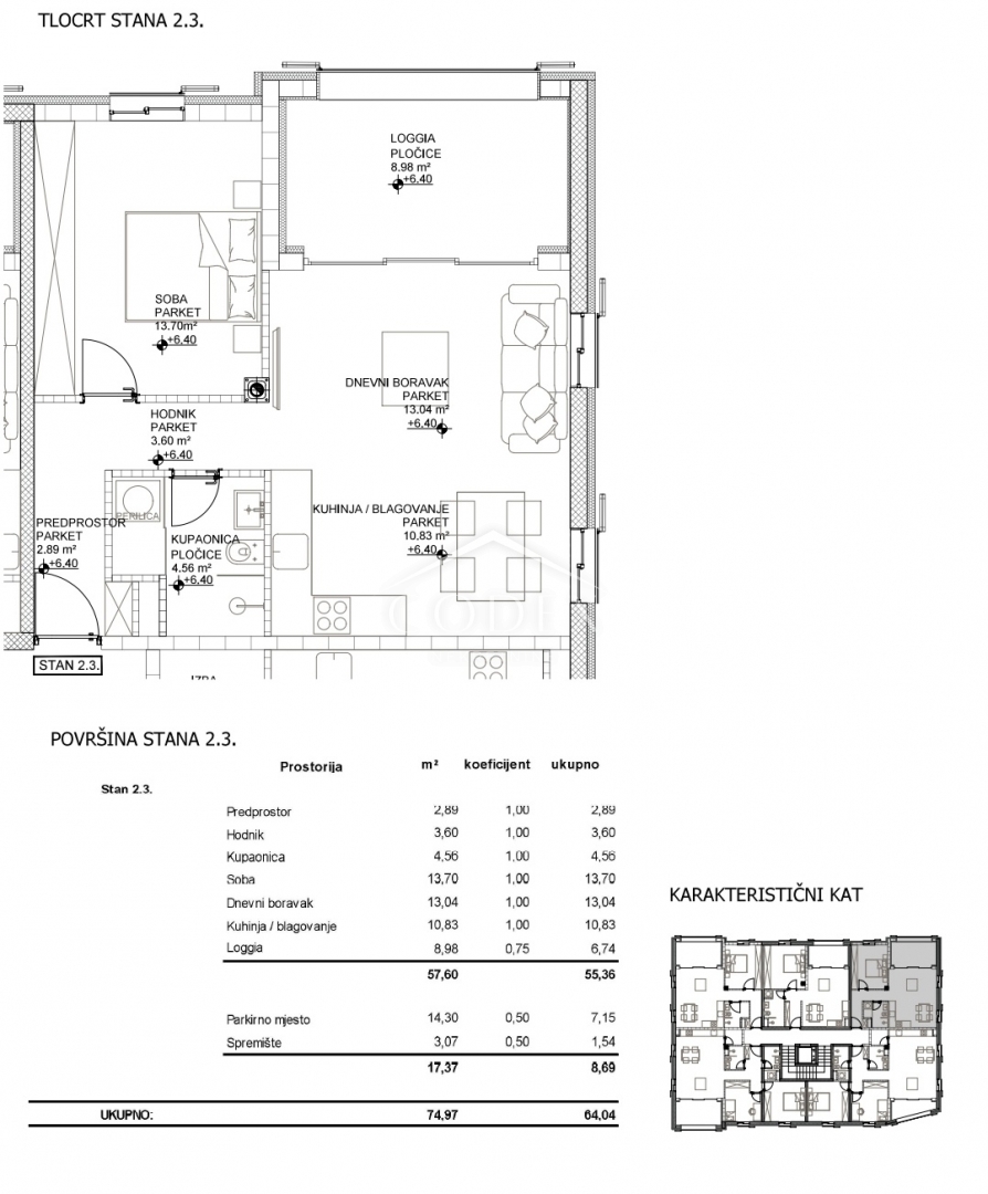
V ponudbi je edina novogradnja v samem starem delu mesta Cres, oddaljena le 50 metrov od morja, kar predstavlja izjemno redkost, ki se na trgu pojavi le enkrat. Projekt obsega skupno 14 sodobnih enosobnih in dvosobnih stanovanj ter 3 poslovne prostore. Stanovanja merijo od 53 m² do 75 m² in so razporejena v treh etažah, in sicer v 1., 2. in 3. nadstropju objekta. Celotna gradnja je izvedena po najvišjih standardih in v celoti prilagojena ambientu starega mestnega jedra, kar ustvarja popolno ravnovesje med avtentičnim mediteranskim šarmom in sodobnim udobjem. Za projektom stoji zanesljiv in preverjen investitor z dolgoletnimi izkušnjami, poznan po visoki kakovosti gradnje, spoštovanju dogovorjenih rokov in transparentnem poslovanju. Cene stanovanj se gibljejo od 325.000 evrov do 450.000 evrov, odvisno od lege stanovanja, nadstropja in njegove velikosti. Nepremičnina je idealna tako za prijetno celoletno bivanje kot tudi za varno turistično naložbo z izjemno dolgoročno vrednostjo. Lokacija v starem mestnem jedru Cresa predstavlja priložnost, ki se ne ponovi, zato ne zamudite možnosti, da postanete del zgodovine, saj takšna novogradnja v samem srcu starega mesta Cresa ne čaka. Agencijska provizija se zaračunava v skladu s Splošnimi pogoji poslovanja, ki so na voljo na spletni strani https://codexnekretnine.hr/o-nama/opci-uvjeti-poslovanja
ID: 1247235