Stanovanje - CRES - 325.000 EUR
| Lokacija | CRES, Primorsko-goranska |
| Cena € | 325.000 |
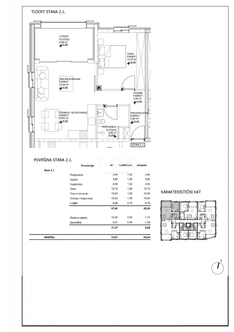
| Površina | 74 m2 |
| Število sob | 2 |
| Število kopalnic | 1 |
| Bližina prevoza | DA |
| Oddaljenost od morja | 50 m |
OTOK CRES, MESTO CRES - Stanovanje z 1 spalnico in kopalnico v vrhunski novogradnji na vrhunski lokaciji, v samem centru mesta, 50 metrov od morja. Prodamo enosobno stanovanje z dnevno sobo, oznako 2.1, v drugem nadstropju vrhunske novogradnje na fenomenalni in neponovljivi lokaciji. Stanovanje je sestavljeno iz vhodne dvorane, dnevne sobe odprtega koncepta s kuhinjo in jedilnico z dostopom do lože, ene spalnice in kopalnice s skupno neto bivalno površino 57,60 m2. Stanovanju v lasti pripada eno garažno parkirno mesto velikosti 14,03 m2, kot tudi shramba v garaži velikosti 3,07 m2. Ta čudovita stanovanjsko-poslovna stavba z dvigalom in podzemno garažo je v prvi fazi gradnje in je zasnovana za 14 stanovanjskih enot z enosobnimi in dvosobnimi stanovanji. Stanovanja bodo prodana na ključ, oprema stanovanj bo na visoki ravni, vključno s talnim ogrevanjem, inverterskimi klimatskimi napravami, prvovrstnimi talnimi oblogami in parketi, kopalnicami z walk-in kabino in visokokakovostno sanitarno opremo priznanih proizvajalcev. Redkost v ponudbi, edinstvena lokacija. Spoštovane stranke, agencijska provizija se obračunava v skladu s Splošnimi pogoji poslovanja www.dux-nekretnine.hr/opci-uvjeti-poslovanja
ID: 1247549