Stanovanje - CRES - 315.000 EUR
| Lokacija | CRES, Primorsko-goranska |
| Cena € | 315.000 |
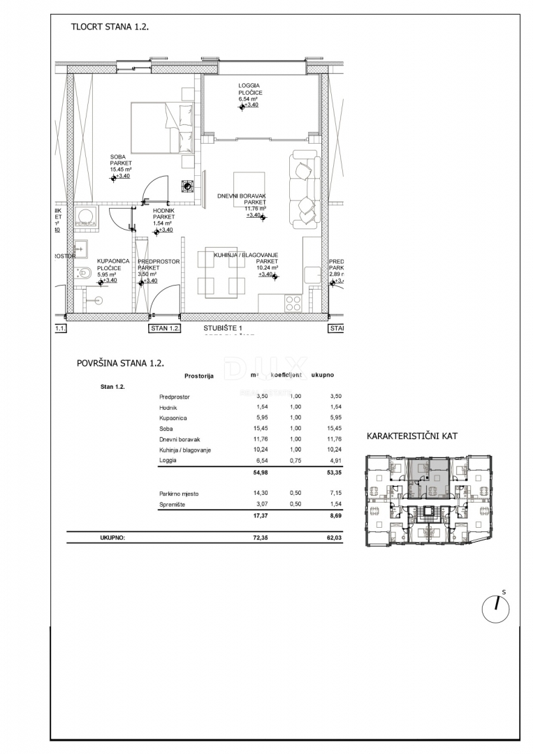
| Površina | 72 m2 |
| Število sob | 2 |
| Število kopalnic | 1 |
| Bližina prevoza | DA |
| Oddaljenost od morja | 50 m |
OTOK CRES, MESTO CRES - Stanovanje z 1 spalnico in kopalnico v vrhunski novogradnji na vrhunski lokaciji, v samem centru mesta, 50 metrov od morja. Prodamo enosobno stanovanje z dnevno sobo, oznake 1.2, v prvem nadstropju vrhunske novogradnje na fenomenalni in neponovljivi lokaciji. Stanovanje je sestavljeno iz predsobe, dnevne sobe odprtega koncepta s kuhinjo in jedilnico z izhodom na ložo, ene spalnice in kopalnice s skupno bivalno površino 54,98 m2. Stanovanju v lasti pripada eno parkirno mesto v garaži ter shramba v garaži. Ta čudovita stanovanjsko-poslovna stavba z dvigalom in podzemno garažo je v prvi fazi gradnje in je zasnovana za 14 stanovanjskih enot z enosobnimi in dvosobnimi stanovanji. Stanovanja bodo prodana na ključ, oprema stanovanj bo na visoki ravni, vključno s talnim ogrevanjem, inverterskimi klimatskimi napravami, prvovrstnimi talnimi oblogami in parketi, kopalnicami z walk-in kabino in visokokakovostno sanitarno opremo priznanih proizvajalcev. Redka ponudba, edinstvena lokacija. Spoštovane stranke, agencijska provizija se obračunava v skladu s Splošnimi pogoji poslovanja www.dux-nekretnine.hr/opci-uvjeti-poslovanja
ID: 1247552